EasyManua.ls Logo

National Instruments PCI-7813 - Page 52

National Instruments PCI-7813
75 pages
Print Icon
To Next Page IconTo Next Page
To Next Page IconTo Next Page
To Previous Page IconTo Previous Page
To Previous Page IconTo Previous Page
Loading...
Chapter 2 Hardware Overview of the NI 78xxR
R Series Intelligent DAQ User Manual 2-30 ni.com
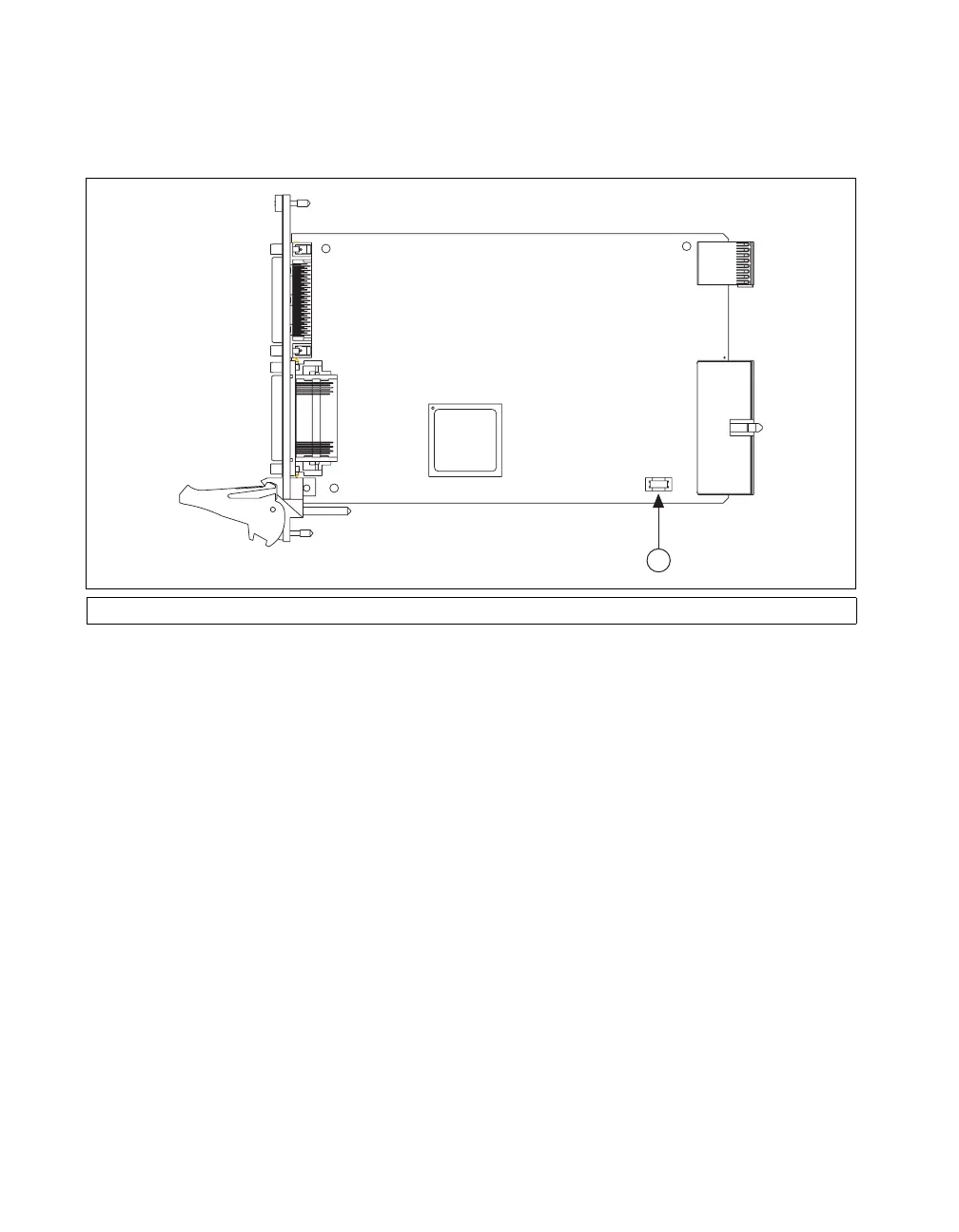
3. Replace the broken fuse while referring to Figure 2-18 for the fuse
locations.
Figure 2-18. NI 784xR/785xR Replacement Fuse Location
4. Reinstall the PCI or PXI device into the computer or PXI chassis.
1 Littelfuse Part Number 0453 004 (NI Part Number 766247-01)
1

Table of Contents

Related product manuals