EasyManua.ls Logo

Newmac CL 170C - Page 65

Default Icon
80 pages
Print Icon
To Next Page IconTo Next Page
To Next Page IconTo Next Page
To Previous Page IconTo Previous Page
To Previous Page IconTo Previous Page
Loading...
FIG. 13 - CÂBLAGE DE LA SÉRIE CL
Le relais de transformateur de centre de ventilateur de 8405A de Honeywell : numéro de partie 2010015.
Le relais de transformateur de centre de ventilateur de 8285A de Honeywell : numéro de partie 2010041.
Le relais de transformateur de centre de ventilateur de 8239B de Honeywell : numéro de partie 2010059.
L’unité doit être conformément installée au Chauffage d’Air et l’Air Chauds Nationaux Conditionnant les Normes d’Association
ou généralement admises équivalentes les normes. La consultation s’approprie provincial, déclarer, ou les codes locaux. Les
règlements gouvernant les conditions d’installation peuvent varier de l’une présentée ici.
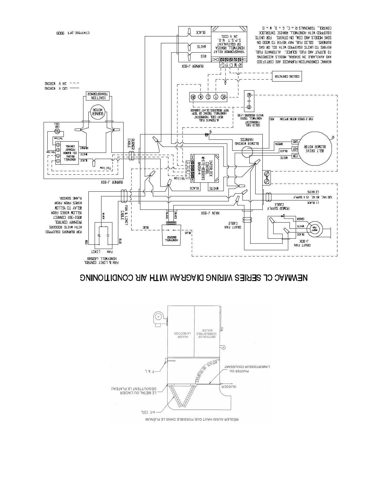
FIG. 12 LE DIAGRAMME D'INSTALLATION ÉLÉCTRIQUE AVEC LE CONDITIONNEMENT D'AIR
FIG. 11 - L'INSTALLATION TYPIQUE DE BOBINE DE COMPTE

Related product manuals