EasyManua.ls Logo

Newmac CL 170C - Page 74

Default Icon
80 pages
Print Icon
To Next Page IconTo Next Page
To Next Page IconTo Next Page
To Previous Page IconTo Previous Page
To Previous Page IconTo Previous Page
Loading...
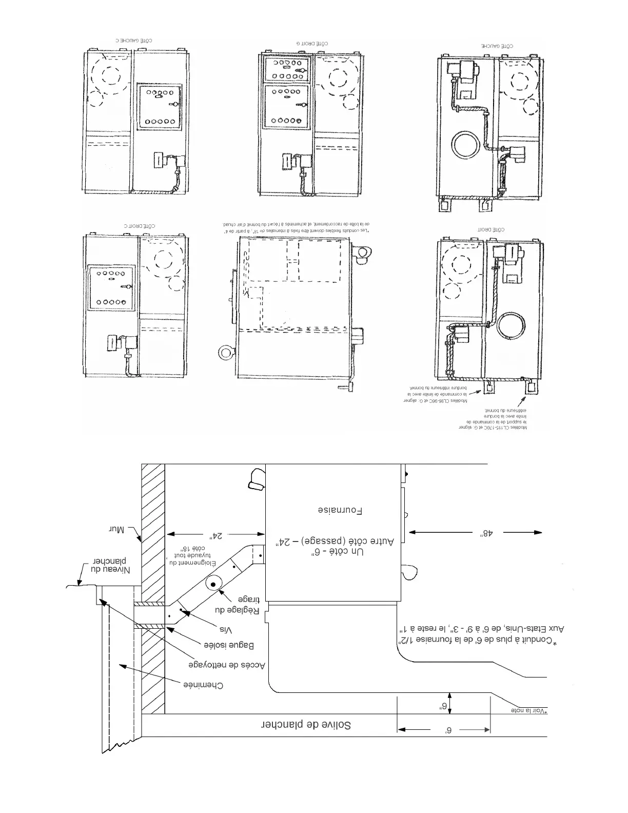
FIG. 7 – RACCORDEMENT DU TUYAU DE FUMÉE ET ESPACE LIBRE MINIMAL
FIG. 8 – EMPLACEMENTS DES COMMANDES
INSTALLATION SUR LA PLAQUE DU BRÛLEUR – APPAREILS COMBINÉS - FIGS. 6A ET 6B
1. Reportez-vous à la Fig. 6A. Enlevez le bouchon d’un diamètre de 5/8» de la plaque du brûleur. Découpez ou limez un
trou dans l’isolant rigide en bre de verre, à l’arrière du trou de 5/8» dans la plaque du brûleur. Le trou doit être assez
large pour que l’écrou de xation du WMO-1 puisse être xé contre l’arrière de la plaque du brûleur. Enlevez un des
écrous de xation du tube de l’assemblage WMO-1. Serrez l’autre écrou autant que possible contre le tube.
2. Reportez-vous à la Fig. 6B. Avec l’assemblage WMO-1 à l’extérieur de la plaque du brûleur, insérez l’extrémité letée du
tube dans le trou de 5/8» dia. dans la plaque du brûleur, installez à nouveau le premier écrou de xation contre le tube
à l’intérieur de la plaque du brûleur. Serrez fermement.
ATTENTION : Mettez l’assemblage WMO-1 hors tension avant de faire la connexion.
3. Reportez-vous à la Fig. 6C. En utilisant un conduit (BX) souple AC90 approprié ou équivalent, faites la connexion du
commutateur WMO-1 en série avec le circuit de limite de l’appareil. Raccordez-le à la boîte de jonction de l’appareil.
4. Vériez le fonctionnement du commutateur WMO-1 avant de terminer l’installation. Le commutateur WMO-1 est
réenclenché en poussant le bouton carré rouge.
VÉRIFICATION DU COMMUTATEUR WMO-1 POUR ÉVENT BLOQUÉ
Remarque : Prenez les précautions nécessaires, car ce test peut produire de la suie, de la fumée ou des gaz. L’appareil doit
être sous surveillance pendant toute la durée du test.
1. Mettez l’appareil hors tension et bloquez le tuyau d’évent en aval (cheminée) de la soupape barométrique.
2. Démarrez l’appareil.
3. Le commutateur WMO-1 normalement doit arrêter le brûleur à huile en moins de 10 minutes.
4. Après le test, mettez l’appareil hors tension et laissez-le se refroidir.
5. Enlevez le blocage du tuyau d’évent.
6. enclenchez le commutateur WMO-1 en poussant sur le bouton carré rouge jusqu’à ce que vous entendiez un déclic.
7. Assurez-vous que l’appareil est dans un état sécuritaire.
ENTRETIEN ET NETTOYAGE
L’assemblage du commutateur WMO-1 doit être vérié et nettoyé une fois par année et après chaque arrêt du brûleur
déclenché par le commutateur.
PROCÉDURE DE NETTOYAGE
1. Mettez l’appareil hors tension.
2. Enlevez le couvercle du commutateur WMO-1.
3. Enlever les deux vis de xation de la sonde de température thermodisque.
4. Retirez délicatement la sonde d’un côté.
5. En utilisant une brosse douce appropriée ou un chiffon, nettoyez délicatement toute suie de la surface de la sonde et
à l’intérieur du tube de 5/8» dia.
6. Remettez la sonde en place et xez-la fermement avec les vis de xation.
7. Vériez l’état des connexions et si elles sont bien xées.
8. Vériez que le tube de 5/8» dia. et les écrous de xation sont bien xés.
9. Remettez le couvercle en place et xez-le avec les vis de xation.
10. Vériez le fonctionnement du commutateur WMO-1, tel que décrit plus haut.
DÉPANNAGE
Si, pour une raison quelconque, le commutateur WMO-1 arrête l’appareil en fonction, il faut en vérier la cause et corriger la
situation avant de réenclencher le commutateur et de démarrer l’appareil. Le commutateur de blocage est réenclencen
poussant sur le bouton carré rouge jusqu’à ce qu’on entende un déclic.
FIG.. 6A FIG. 6B FIG. 6C
WMO-1
Hublot
Écrou de fixation
trou de 5/8" dia.
Plaque du brûleur
WMO-1
Tube Horizontal
Hublot
Écrous de fixation
Brûleur
Plaque du brûleur
T
T
F
F
WMO-1
N
Contrôle primaire
Limite
Cellule à
Moteur
Allumage
du brûleur
cadmium
Brûleur
Raccorder le commutateur
WMO-la boîte de
jonction de l'appareil
Appareils combis
de Séries CL :
Raccorder le commutateur
WMO-la boîte de jonction
du contrôle du brûleur

Related product manuals