EasyManua.ls Logo

Nexo GEO M1210

Default Icon
90 pages
To Next Page IconTo Next Page
To Next Page IconTo Next Page
To Previous Page IconTo Previous Page
To Previous Page IconTo Previous Page
Loading...
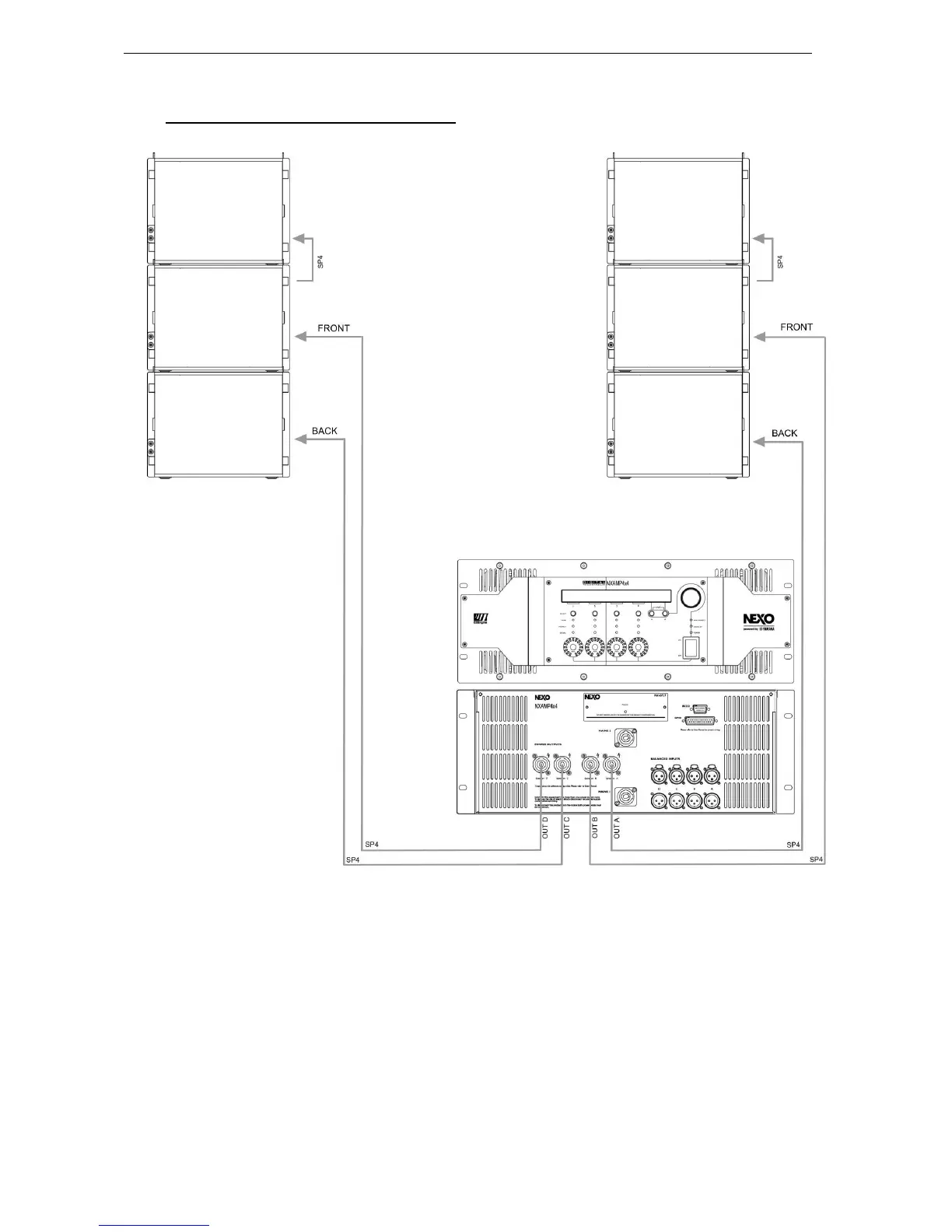
CONNECTION DIAGRAMS Page 19/90
3.10 MSUB18 Cardio Mode / NXAMP4x4

Table of Contents

Other manuals for Nexo GEO M1210

Related product manuals