EasyManua.ls Logo

Nexo GEO S Series

Nexo GEO S Series
95 pages
To Next Page IconTo Next Page
To Next Page IconTo Next Page
To Previous Page IconTo Previous Page
To Previous Page IconTo Previous Page
Loading...
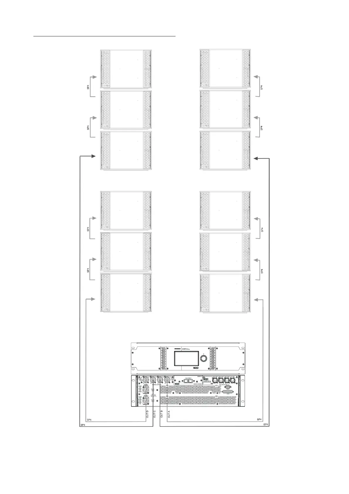
CONNECTION DIAGRAMS
Page 16 / 95 System Manual GEOS12 LS18
3.9 LS18 Omni Mode / NXAMP4x4mk2 (4 channels mode)

Table of Contents

Related product manuals