EasyManua.ls Logo

Nidec Commander C200 - Page 57

Nidec Commander C200
124 pages
Print Icon
To Next Page IconTo Next Page
To Next Page IconTo Next Page
To Previous Page IconTo Previous Page
To Previous Page IconTo Previous Page
Loading...
Unidrive M / HS Frame 7 to 10 Power Installation Guide 57
Safety information Product information Mechanical installation
Electrical installation
Technical data UL listing information
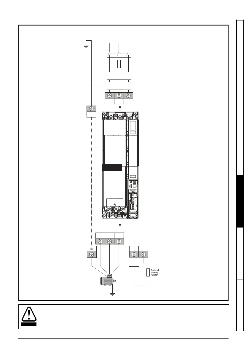
Figure 4-3 Size 9E and 10E power and ground connections
A separate line reactor (INLXXX) must be used for size 9E and 10E. Failure to provide
sufficient reactance could damage or reduce the service life of the drive. Refer to
Table 4-4 Size 7 to 10 Model and Line reactor part number on page 61.
Input connections
Mains
Supply
L1 L2
Line reactor
Optional
EMC filter
Fuses
L3
L1 L2 L3
PE
Supply
ground
UVW
Motor
Optional ground
connection
+DC BR
Thermal
overload
protection
device
Output connections
9E/10E
CAUT ION

Other manuals for Nidec Commander C200

Related product manuals