EasyManua.ls Logo

Nikon coolpix7900 - Page 87

Nikon coolpix7900
111 pages
Print Icon
To Next Page IconTo Next Page
To Next Page IconTo Next Page
To Previous Page IconTo Previous Page
To Previous Page IconTo Previous Page
Loading...
VAA46003-R.3659.A
- E11 E7900 -
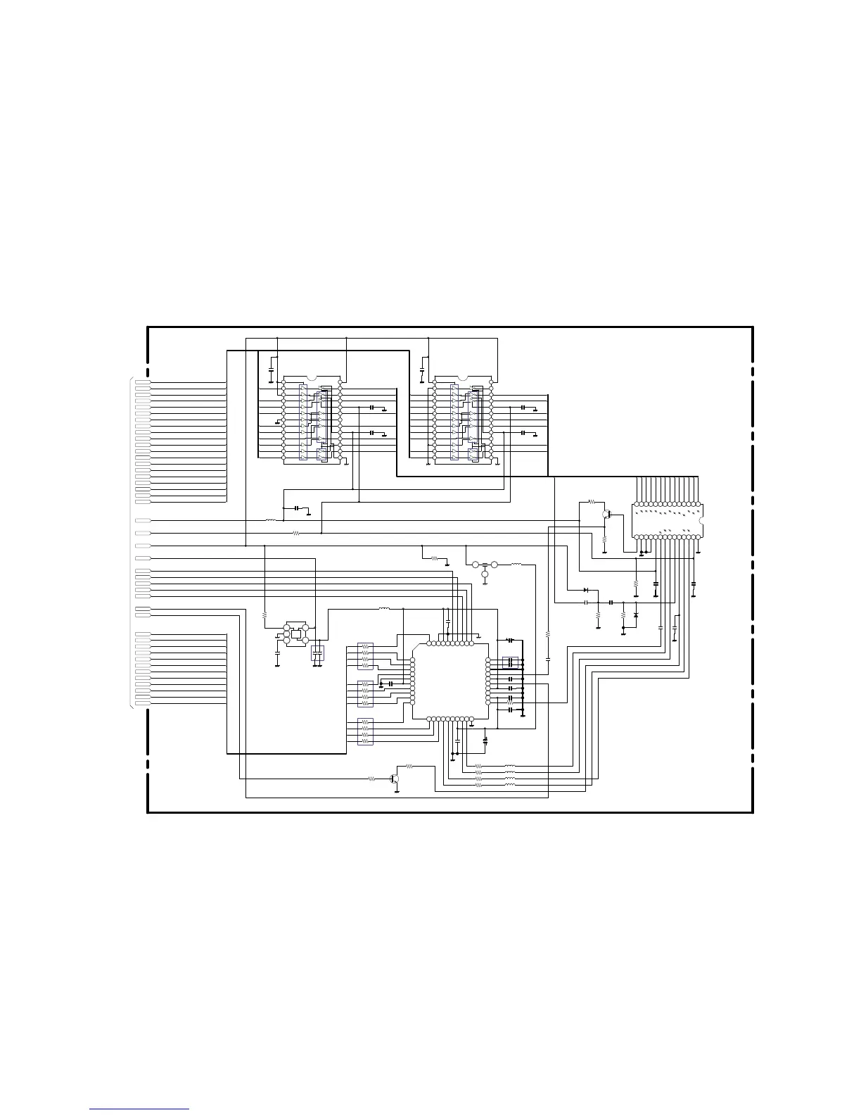
CP1(CAA) 回路図
CP1 (CAA) CIRCUIT DIAGRAM
XSG2B
XSG1B
XV1
XSG1A
VDD
XV1
XV2
XSUB
XSG1
XSG2A
XV3
V6
V4
V1B
V3A
V1A
V3B
MODEL
SUB
V4
VH
VL
V1
V2
VH
VM
XSG2A
XSG1B
XSG1A
XSG2B
XV1
XSUB
XSG1
VDD
XV2
XV1
XV3
V6
V4
V3A
V1B
VL
MODEL
V1
SUB
V2
V1A
V3B
VM
V4
VH
VH
Input Buffer Input Buffer
V 5A
V 5B
V 7
V 6
V 8
V HLD
V 3A
V ST
V 3B
V 1
V 4
V 2
RG
GND
VDD
GND
H 2A
H 1A
VL
GND
H 1B
SUB
H 2B
CSUB
V 9
V 10VOUT
GND
VOUT
IN
3.0V
REG
ON/
OFF
DRVSS
DRVDD
D4
D2
D1
D3
D7
D8
D5
D6
DVDD
RGVSS
TCVSS
TCVDD
RGVDD
RG
CLI
HVSS
HVDD
SCK
SDI
CCD IN
SL
AVSS
AVDD
REFB
REFT
DVSS
HD
VD
D0
CLP/BLK
HBLK
H1
H4
H2
H3
D9
D10
D11
XSUB
XV10
XV2
XSG2C
XV1
XSG1A
XV3
XSG1B
XVS
XVH
XSUB
TO DMA
XV10
XV9
XV8
XV7
XV6
XV5
XV4
XV3
XV2
XV1
XVS
XVH
SUB
XSG3BV10
XV9V2
XV4
XSG2AV1
XSG2B
XV5V3A
XSG3A
XV7V3B
VST
XV6VHLD
XV8
V9
V4
V5A
V5B
V7
V6
V8
+3.45V(A)
+15V(A)
-7.5V(A)
VDD3
CCDEN
TGVD
TGHD
XSG3B
XSG3A
XSG2C
XSG2B
XSG2A
XSG1B
XSG1A
SUB
V10
V1
V2
VST
V8
V6
V7
V9
V5A
V4
V5B
V3B
VHLD
V3A
SUBGT
ADCK
CCDCK
CCDSD
AD0
AD1
AD2
AD3
AD4
AD5
AD6
AD7
AD8
AD9
AD10
AD11
AD0
AD1
AD2
AD3
AD4
AD5
AD6
AD7
AD8
AD9
AD10
AD11
E
C
B
E
C
B
C9002
C9004
IC901
C9003
C9005
IC902
C9007
C9006
L9001
R9036
C9001
XF901
R9005
L9002
IC903
R9033
Q9001
R9032
C9032
C9031
R9037
R9007
IC904
C9019
L9003
CB901
RB902
C9064
RB903
R9065
C9061
CB902
C9062
IC906
R9074
C9073
C9066
C9063
C9068
R9031
C9039
D9002
D9001
C9038
R9034
C9037
C9040
R9038
R9039
RB901
Q9002
L9007
L9006
L9005
L9004
C9065
C9069
R9067
R9068
R9066
R9069
C9067
1;B
0.1;F
CXD3440EN-1
10;B
1;B
CXD3440EN-1
0.01;B
0.1;F
100;K
3.9;1/16J
1;H
CKD610JB0J225MT
470;1/16J
FBMH1608HM102-T
ICX489AQA-SN
2.2K;1/16J
2SC3931
100;1/16J
10;B
10;B
82K;1/16J
0;1/16Z
TK11130CS
1;B
FBMH1608HM102-T
1;B
390
0.1;B
390
0.15;B
1;B
0.1;B
AD9949
10;1/16J
1000P;B
0.1;B
0.1;B
22;10-T
100K;1/16J
0;1/16Z
0.1;B
MA2J727
1SS400
0.1;B
1M;1/16J
1;H
0.1;B
10K;1/16J
1.2K;1/16J
390
2SC5383
BLM15BB100
BLM15BB100
BLM15BB100
BLM15BB100
0.1;B
22;10-T
3.3;1/16J
3.3;1/16J
3.3;1/16J
3.3;1/16J
1000P;B
XSUB
XV10
XV9
XV8
XV7
XV6
XV5
XV4
XV3
XV2
XV1
XVS
XVH
XSG3B
XSG3A
XSG2C
XSG2B
XSG2A
XSG1B
XSG1A
+15V(A)
-7.5V(A)
+3.45V(A)
VDD3
TGHD
TGVD
CCDEN
CCDSD
CCDCK
ADCK
SUBGT
AD0
AD1
AD2
AD3
AD4
AD5
AD6
AD7
AD8
AD9
AD10
AD11
13
12
11
10
9
8
7
6
5
4
3
2
1 26
25
24
23
22
21
20
19
18
17
16
15
14
26
25
24
23
22
21
20
19
18
17
16
15
1413
12
11
10
9
8
7
6
5
4
3
2
1
1
3
2
2827262524232221201918171615
14 13 12 11 10 9 8 7 6 5 4 3 2 1
3
2
1 5
4
10
9
8
7
6
5
4
3
2
1
40 39 38 37 36 35 34 33 32 31
30
29
28
27
26
25
24
23
22
21
20191817161514131211
    











































V. DRIVER V. DRIVER
CCD
H. DRIVER
CDS, AGC, A/D C
C1-41800/SWQ14-WNK
CAA
MODEL: E7900
CIRCUIT DIAGRAM: CP1(CAA)

Related product manuals