EasyManua.ls Logo

Norcold 3163 - Installing the Vent-Air Intake;Exhaust Assembly

Norcold 3163
15 pages
Print Icon
To Next Page IconTo Next Page
To Next Page IconTo Next Page
To Previous Page IconTo Previous Page
To Previous Page IconTo Previous Page
Loading...
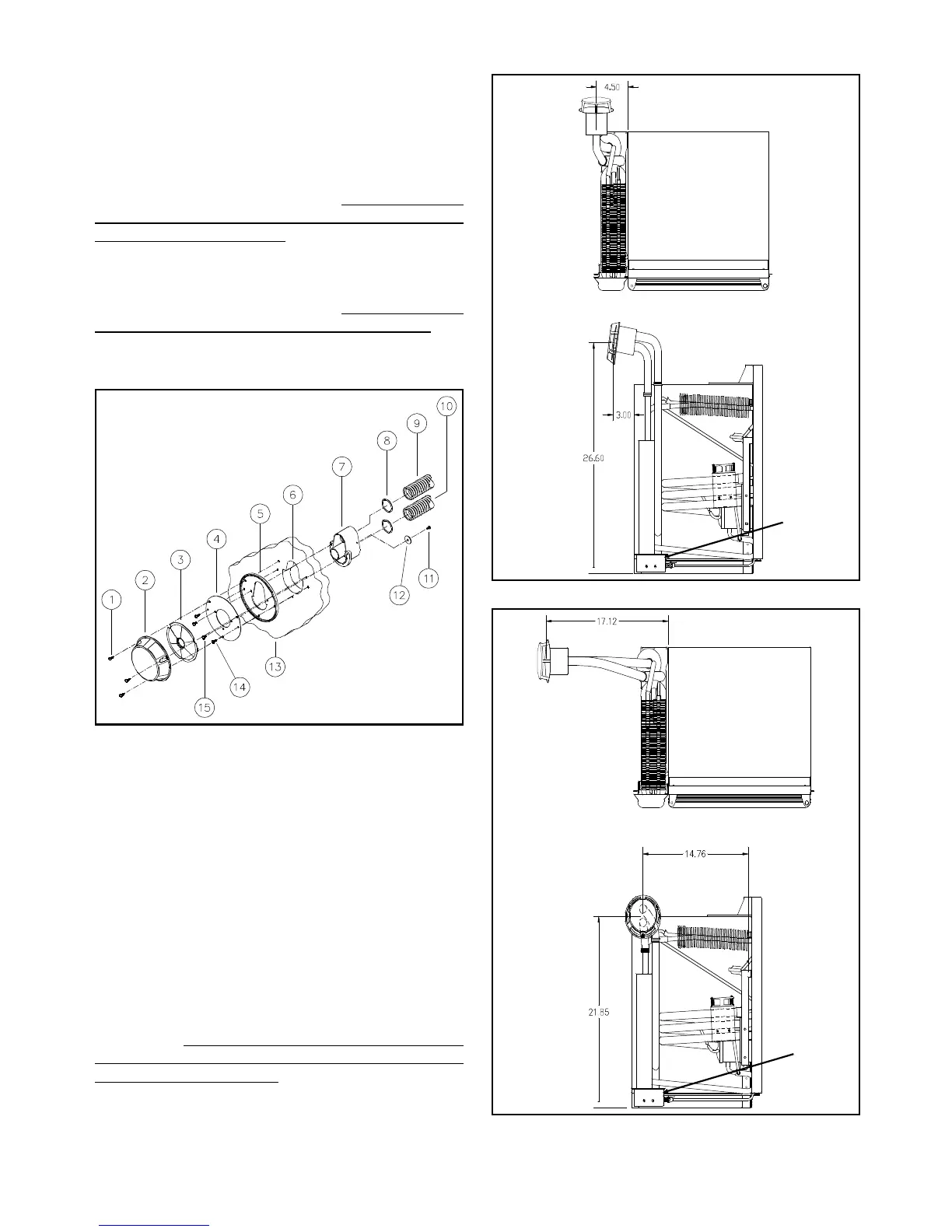
The clearance from the refri
g
erator’s left side
(
facin
g
the front of the refri
g
erator
)
to the vehicles exterior wall
is important. This is the area in which the inlet and outlet
flexible pipin
g
will be connected to the vent terminal
housin
g
durin
g
installation. Provisions must be made
to access
g
as burner observation port for service and
for visual check of the burner flame.
Refer to Figures 3
and 4 for maximum clearances from refrigerator cabi-
net to vehicles exterior wall.
The wall thickness the vent terminal housin
g
will
accommodate is .030" minimum to 1.250" maximum.
Fi
g
ure 2 below illustrates the confi
g
uration of the open-
in
g
for the vent terminal housin
g
.
Do not make the
opening in the vehicle wall larger than required.
The
clearance should be enou
g
h for the terminal housin
g
to
pass throu
g
h the openin
g
. If the openin
g
is too lar
g
e,
the outer
g
asket will not cover the vent housin
g
openin
g
.
It is imperative that the wall openin
g
for the vent
terminal housin
g
not be too low. The flexible pipin
g
(
inlet and outlet pipes
)
must rise from the refri
g
erator to
the terminal housin
g
. There are two specific vent-air
intake assembl
y
kits available to accommodate most
installations.
Figures 3 and 4 illustrate two installations
with the maximum flexible piping lengths and the vent
terminal housing locations.
Burner
Observation
Port
Fi
g
ure 2 Air Intake/Exhaust Assembl
y
Burner
Observation
Port
Fi
g
ure 3-Kit# 617941 Flexible Pipe and Vent Location
Fi
g
ure 4-Kit# 617943 Flexible Pipe and Vent Location
1. Mountin
g
Screw 8. O Rin
g
s
2. Vent Cover 9. Intake Pipin
g
3. Outer Disk 10. Exhaust Pipin
g
4. Inner Disk 11. Lockin
g
Washer Screw
5. Rubber Gasket 12. Lockin
g
Washer
6. Vent Terminal 13. Vehicle Exterior Wall
Housin
g
Cut-Out 14. Mountin
g
Screw
7. Vent Terminal 15. Mountin
g
Screw
Housin
g
4

Other manuals for Norcold 3163

Related product manuals