EasyManua.ls Logo

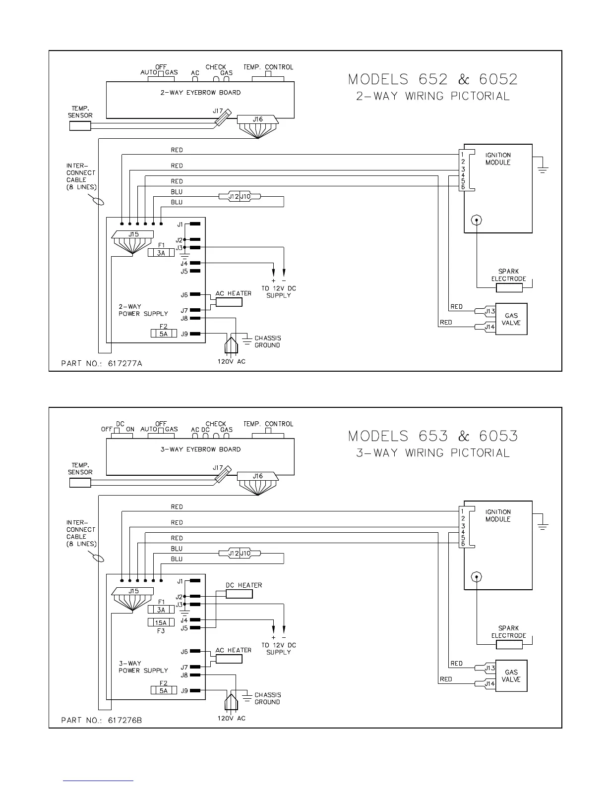
Norcold 600 - Wiring Pictorials; Models 652 & 6052 2-Way Wiring Pictorial; Models 653 & 6053 3-Way Wiring Pictorial

Norcold 600
41 pages
Print Icon
To Next Page IconTo Next Page
To Next Page IconTo Next Page
To Previous Page IconTo Previous Page
To Previous Page IconTo Previous Page
Loading...
40