EasyManua.ls Logo

Norcold N305X - Plan de Câblage

Norcold N305X
28 pages
Print Icon
To Next Page IconTo Next Page
To Next Page IconTo Next Page
To Previous Page IconTo Previous Page
To Previous Page IconTo Previous Page
Loading...
Manuel d’utilisation 13
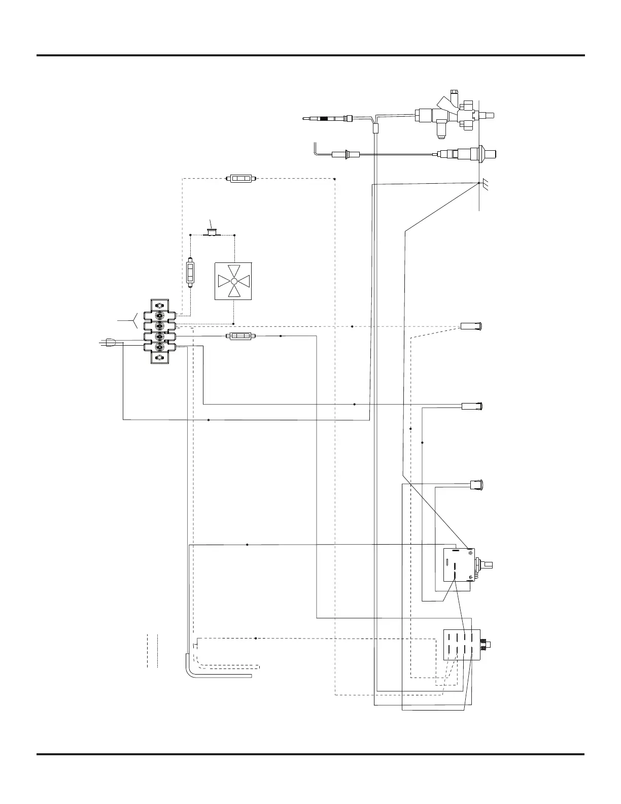
Plan de câblage
4a
4b
2a
2b
3b
3a
1a
1b
6
3
4
3 Amp Fuse
Fusible 3 A
Selector Switch
Sélecteur
AC Thermostat
Thermostat CA
Flame Meter
Détecteur de flamme
AC Power Indicator
Indicateur de ‘ alimentation CA
DC Power Indicator
Indicateur d'alimentation CC
LP Gas Control
Contrôle de gaz
propane
Terminal Block
Bloc de
raccordement
RED\
ROUGE
Fan
Thermostat /
Thermostat
Ventilateur
GRN/YEL \ VERT-JUAN
BLK (RIB) /
NOIR (CANN.)
BLU/WHT \ BLUE/BLANC
AC Heater
Élément chauffant CA
DC Heater(3-way models)
Élément chauffant c.c. (modèles à 3
alim)
Thermocouple
Thermocouple
-
WHT / BLANC
BLUE / BLEU
YEL \ JUAN
GRAY \ GRIS
Piezo Lighter
Allumeur
piézoélectrique
Spark Electrode
Electrode d'allumage
+
12VDC
12VCC
Chassi Ground
Masse du chassis
Wiring Pictorial /
Plan de câblage
N305/N306
636535 RevA
06/30/14
Optional wiring, 3-way models only
En option, câblage, modèles de 3 alim. seulement
Optional wiring, fan models only
En option, câblage, modèles de ventilateur seulement
120V AC
120VCA
Fan
Ventilateur
1 Amp Fuse
Fusible 1 A
BLK \ NOIR
20 Amp Fuse
Fusible 20 A
GRN/YEL \ VERT-JUAN
BLK \ NOIR
BLK \ NOIR
BLK \ NOIR
GRAY \ GRIS
BLK \ NOIR
BLK \ NOIR
BLUE / BLEU
RED\
ROUGE
RED\
ROUGE
RED\
ROUGE
RED \ ROUGE
RED \ ROUGE
RED \ ROUGE
RED \
ROUGE
BLK \ NOIR
YEL \ JUAN
YEL \ JUAN
YEL \ JUAN
BLUE / BLEU
RED \ ROUGE
BLK \
NOIR
BLK \ NOIR
WHT / BLANC
GRN/YEL \ VERT-JUAN
BLUE / BLEU

Table of Contents

Related product manuals