EasyManua.ls Logo

NTI TRX150 - Page 18

NTI TRX150
100 pages
Print Icon
To Next Page IconTo Next Page
To Next Page IconTo Next Page
To Previous Page IconTo Previous Page
To Previous Page IconTo Previous Page
Loading...
18
Part 1 - General Safety Information Part 3 - Prepare the Boiler for Installation
34
1
8
"
19
3
4
"
2
1
4
"
3"
2
5
8
"
2
5
8
"
3"
3
5
8
"
2
3
4
"
3
3
4
"
9
3
4
"
6
3
8
"
38
1
4
"
1
7
8
"
A
B
C
D
E
F
18
1
2
"
6
3
8
"
2
1
2
"
8
1
4
"
3
5
8
"
7
3
4
"
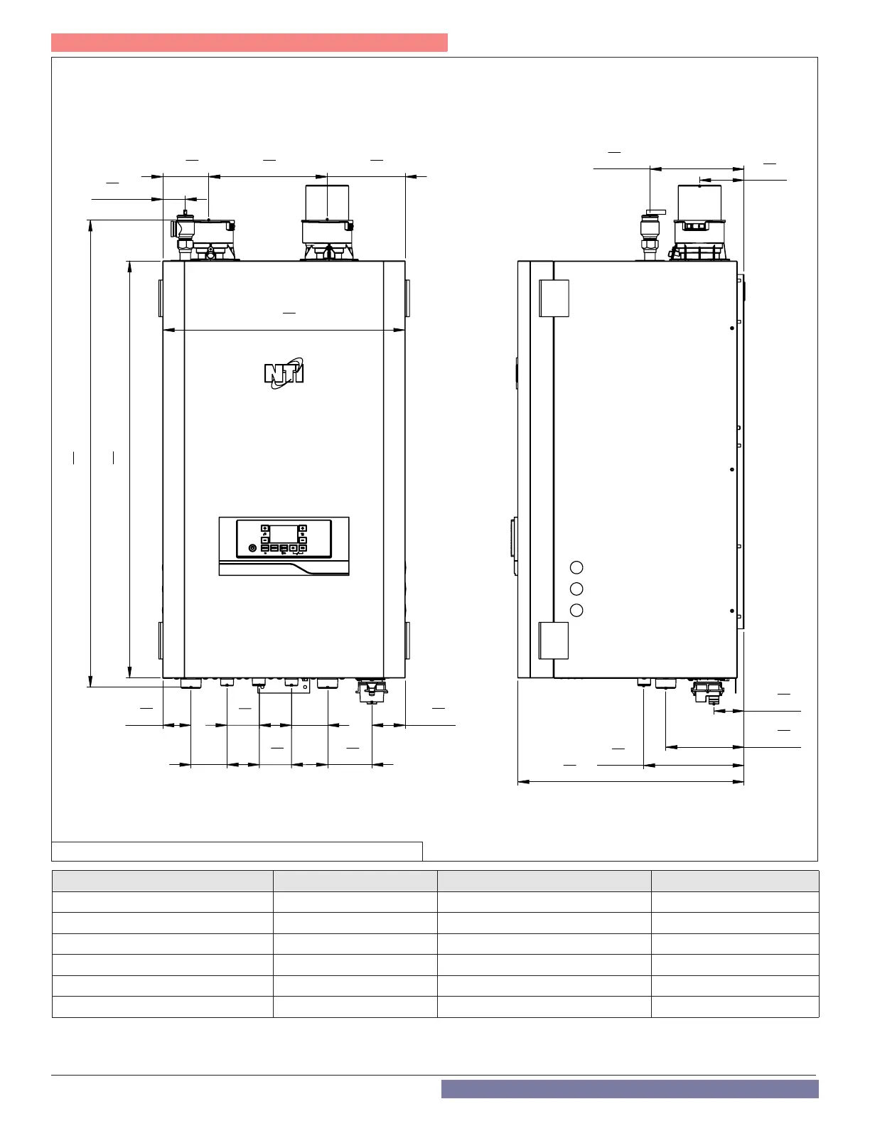
Model TRX150 and TRX199 Model TRX199C
A - Central Heating Supply 1 1/4” NPT A - Central Heating Supply 1 1/4” NPT
B - Supply to Indirect Water Heater 3/4” NPT B - Domestic Hot Water Outlet 3/4” NPT
C - Gas Inlet 3/4” NPT C - Gas Inlet 3/4” NPT
D N/A D - Domestic Hot Water Inlet 3/4” NPT
E - Central Heating Return 1 1/4” NPT E - Central Heating Return 1 1/4” NPT
F - Pressure Relief Valve 3/4” NPT F - Pressure Relief Valve 3/4” NPT
Table 9 - Boiler Connection Sizes
Figure 6 - Boiler Dimensions - NOTE: All Dimensions Are Approximate

Table of Contents

Other manuals for NTI TRX150

Related product manuals