EasyManua.ls Logo

Nu-Vu RM-4T - Page 11

Nu-Vu RM-4T
21 pages
Print Icon
To Next Page IconTo Next Page
To Next Page IconTo Next Page
To Previous Page IconTo Previous Page
To Previous Page IconTo Previous Page
Loading...
RM/RA SERIES OWNER’S MANUAL
NUVU® MENOMINEE, MICHIGAN 49858
(906) 863-4401 SALES FAX (906) 863-5889 • SERVICE FAX (906) 863-6322 page 9
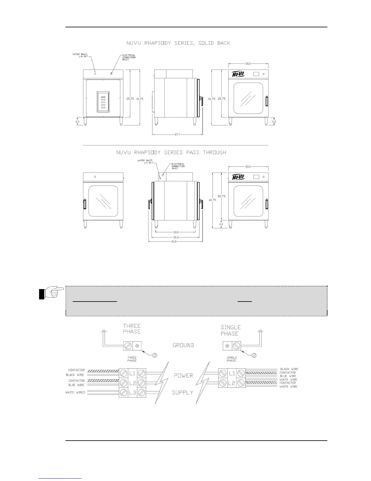
#1 Installation
A qualified installer or electrician should remove the Top Panel of the unit to expose the power
terminal connections. A copy of the unit wiring schematic is attached to the inside of the unit near
the power terminal connections.
#2 - Electrical Connections
IMPORTANT: ALL POWER SHOULD BE TURNED OFF AT THE WALL
BREAKER WHILE THE UNIT IS BEING CONNECTED!!!

Related product manuals