EasyManua.ls Logo

Olsen BML-80B2 - Appendix B: Wiring Diagrams; Chimney Vent Furnace Wiring Diagram (BML;BMLV)

Default Icon
32 pages
Print Icon
To Next Page IconTo Next Page
To Next Page IconTo Next Page
To Previous Page IconTo Previous Page
To Previous Page IconTo Previous Page
Loading...
20
P/N 30149, Rev. G [12/15/2016]
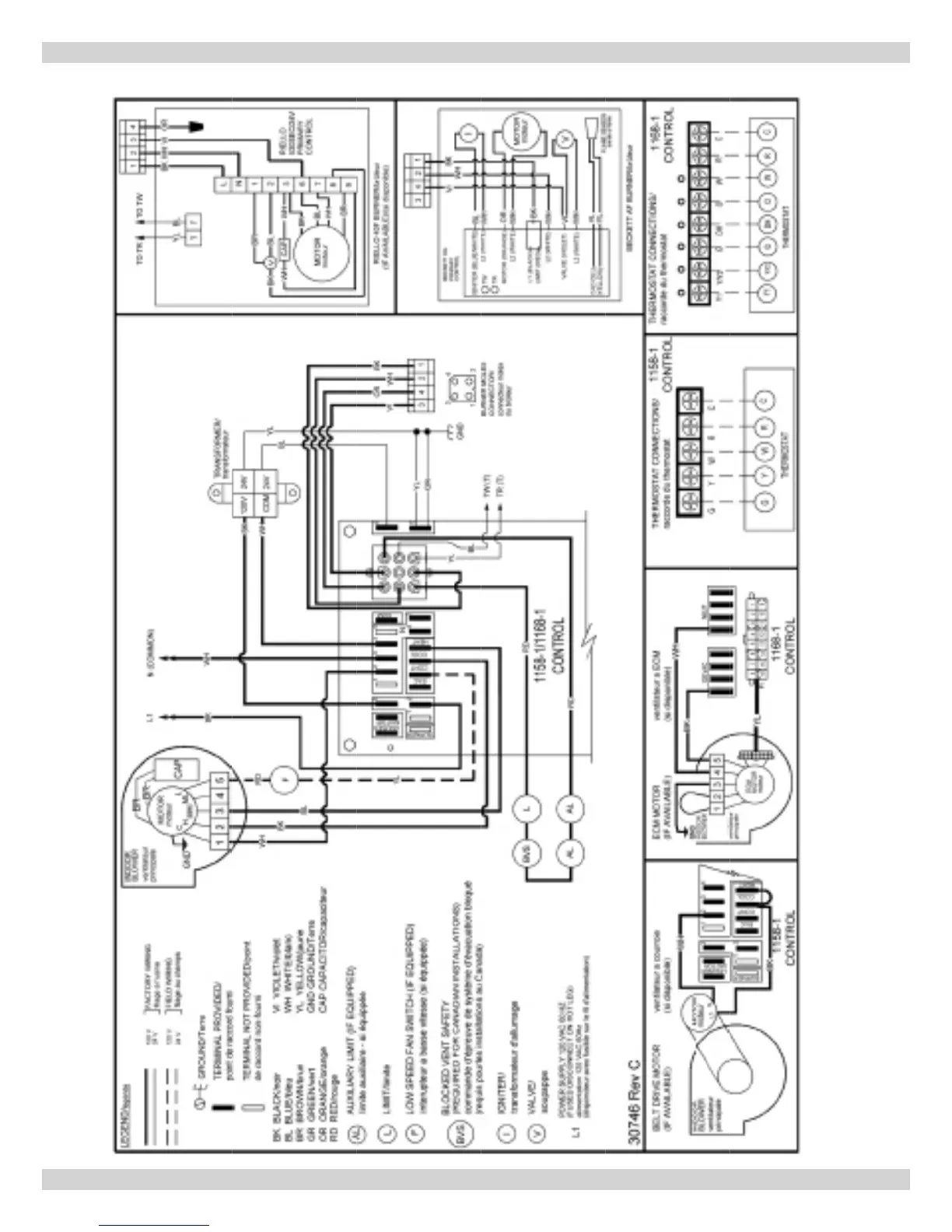
APPENDIX B - WIRING DIAGRAMS
Chimney Vent Furnace Wiring Diagram BML/BMLV

Related product manuals