EasyManua.ls Logo

Olympus OEP-3 - Page 127

Olympus OEP-3
176 pages
Print Icon
To Next Page IconTo Next Page
To Next Page IconTo Next Page
To Previous Page IconTo Previous Page
To Previous Page IconTo Previous Page
Loading...
4-19
OEP-3 V1 (UC)
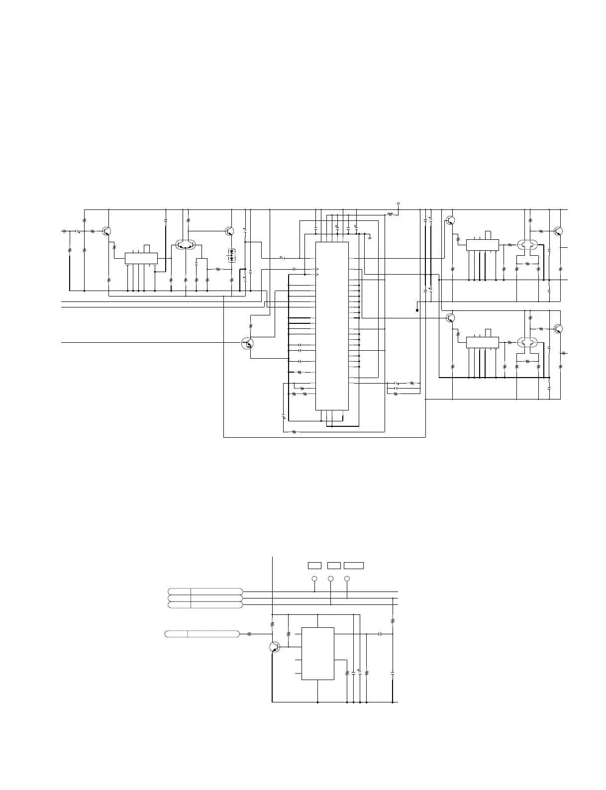
(2) Y/C separation block
A digital comb filter (IC101) is used to separate the luminance signal (Y) and chroma signal (C) of a
composite video signal.
The input composite video signal is passed through a band rejection filter (FL101), amplified by
about four times, and input to pin 15 of IC101. The separated luminance signal is output from pin 6
and passed through a band rejection filter. After that, the signal is input to the video switch (IC104)
that switches the luminance signal of an S video signal. In the same manner as described above, a
chroma signal is output from pin 8 and input through a band rejection filter to the same video switch.
Fig. 1-2 Y/C Separation Block
(3) Composite sync signal separation circuit
A composite sync signal (CSYNC) is separated by IC201.
The composite sync signal of the Y signal input to pin 6 of IC201 is separated by IC201, and the Y
signal is output from pin 3. The output signal at pin 3 is positive-synchronous. Therefore, the output
signal is inverted by Q201 so that it is negative-synchronous.
Fig. 1-3 Composite Sync Signal Separation Circuit
A_GND
L103
1uH
R126
10k
Q106
DTC124EKA-T146
A-5V
R153
33
R105
100
R118
2.2k
C115
10uF
16V
R123
1k
R142
1k
C131
0.022uF
C112
0.1uF
R132
47
R155
1.8k
R103
27k
CL109
R156
2.2k
R133
10k
C118
0.1uF
FL102
LPF
R111
1k
R151
560
R139
2.2k
C104
0.1uF
C132
10uF
16V
C147
0.1uF
Q109
XN4501-TW
C148
0.1uF
C135
0.1uF
R138
2.2k
C114
22uF
6.3V
R146
2.2k
FL101
LPF
C128
0.1uF
R129
100
C109
22uF
6.3V
R150
1k
C137
47uF
6.3V
R114
1k
R101
22k
R104
10k
R128
33k
R131
10k
IC101
MC141627FT
R144
33
C125
0.1uF
Q105
2SC1623-T1-L5L6
FL103
LPF
R154
1.8k
C136
0.1uF
C119
0.1uF
CL101
Q111
2SC1623-T1-L5L6
C120
0.1uF
C110
22uF
6.3V
R137
10k
R134
150k
C101
47uF
6.3V
C107
4pF
C146
0.1uF
R110
1k
R152
33
Q107
2SC1623-T1-L5L6
C130
47uF
6.3V
Q103
XN1501-TX
R143
1k
R147
2.2k
Q110
XN4501-TW
C117
0.001uF
D102
1SS123-T1
R157
2.2k
R120
1k
R140
1k
R117
1.5k
C127
47uF
6.3V
R145
33
R141
1k
C138
47uF
6.3V
C145
0.1uF
A+5V
R148
470
Q112
2SC1623-T1-L5L6
R125
1.5k
Q101
2SC1623-T1-L5L6
Q108
2SC1623-T1-L5L6
R149
560
R121
390
5
5
4
4
O1
3
I1
6
OUT
7
FG2
14
1
1
G3
9
G2
10
G1
12
FG1
13
IN
2
4
5
36
2
1
5
5
4
4
O1
3
I1
6
OUT
7
FG2
14
1
1
G3
9
G2
10
G1
12
FG1
13
IN
2
12
VCC_AD
2
OVCC
44
VCC_D
18
NC
7
VCC_DA
6
YOUT
8
COUT
33
D7
34
D6
35
D5
36
D4
37
D3
38
D2
39
D1
40
D0
25
C7
26
C6
27
C5
28
C4
29
C3
30
C2
31
C1
32
C0
16
CLOUT
17
CLC
5
GND_DA
43
GND_D2
19
GND_D1
11
GND_AD
3
BIAS
1
PCO
4
FILIN
10
IBIAS
9
REF_DA
14
RBT
13
RTP
24
TE1
23
TE0
22
MODE1
21
MODE0
48
COMB/BPF
47
PAL/NTSC
46
N/M
41
BYPASS
42
VH
20
CLK_AD
45
FSC
15
VIN
5
5
4
4
O1
3
I1
6
OUT
7
FG2
14
1
1
G3
9
G2
10
G1
12
FG1
13
IN
2
5
4
3
2
1
4
5
36
2
1
3
2
1
D_SYNCDEC_CDEC_Y
TP205
007-K3
DLYD_SYNC
TP202TP201
C203
22uF
6.3V
C202
0.1uF
R201
1k
CL201
010-B2
*EXT_CSYNC
R202
10k
Q201
2SC1623-T1-L5L6
R212
330
C205
0.001uF
C204
1uF
R209
470k
R206
100k
IC201
BA7046F
007-K4
DEC_Y
007-K4
DEC_C
1
HOSC
4
VDOUT
2
HDOUT
3
SYNCOUT
8
PHCOMP
5
GND
7
VCC
6
VIN

Related product manuals