EasyManua.ls Logo

Olympus OEP-3 - SAFETY CHECK-OUT; LEAKAGE TEST

Olympus OEP-3
176 pages
Print Icon
To Next Page IconTo Next Page
To Next Page IconTo Next Page
To Previous Page IconTo Previous Page
To Previous Page IconTo Previous Page
Loading...
OEP-3 V1 (UC)
SAFETY CHECK-OUT
After correcting the original service problem,
perform the following safety checks before
releasing the set to the customer :
Check the metal trim, metallized knobs, screws,
and all other exposed metal parts for AC
leakage. Check leakage as described below.
LEAKAGE TEST
The AC leakage from any exposed metal part to
earth ground and from all exposed metal parts to
any exposed metal part having a return to
chassis, must not exceed 0.5 mA. Leakage
current can be measured by any one of three
methods.
1. A commercial leakage tester, such as the
Simpson 229 or RCA WT-540A. Follow the
manufacturers instructions to use these
instruments.
2. A battery-operated AC milliammeter. The
Data Precision 245 digital multimeter is
suitable for this job.
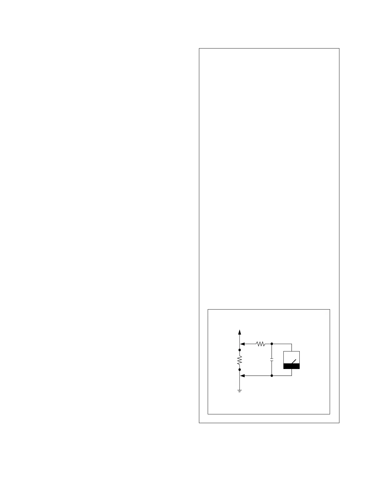
3. Measuring the voltage drop across a resistor
by means of a VOM or battery-operated AC
voltmeter. The limit indication is 0.5 V, so
analog meters must have an accurate low-
voltage scale. The Simpson 250 and Sanwa
SH-63Trd are examples of a passive VOM
that is suitable. (See Fig. A)
To Exposed Metal
Parts on Set
Fig A. Using an AC voltmeter to check AC leakage.
AC
voltmeter
(0.5V)
Earth Ground
0.015
µ
F
1.0 k
Z
10 k
Z

Related product manuals