EasyManua.ls Logo

Omron CIMR-J7AZ - QUICK - Page 44

Omron CIMR-J7AZ - QUICK
116 pages
Print Icon
To Next Page IconTo Next Page
To Next Page IconTo Next Page
To Previous Page IconTo Previous Page
To Previous Page IconTo Previous Page
Loading...
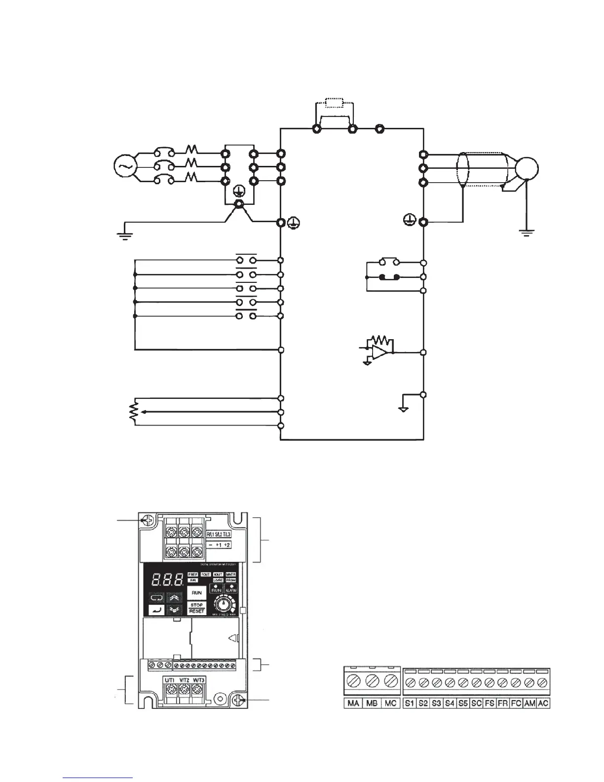
1. Cableado
Nota 1: Conecte la alimentación monofásica de 200 V c.a. a los terminales R/L1 y S/L2 del J7AZB
Nota 2: La resistencia de freno no puede conectarse porque no hay incorporado un transistor de freno.
PUENTE
U/T1
V/T2
W/T3
M
+1 +2 -
Filtro de ruido
L1
L2
L3
L1i
L2i
L3i
Trifásica de 200 V c.a.;
monofásica de 200 V
c.a. (ver nota 1)
R/L1
S/L2
T/L3
3G3JV PFI @
Entrada multifuncional 1 (S2)
Entrada multifuncional 2 (S3)
Entrada multifuncional 3 (S4)
Entrada multifuncional 4 (S5)
Común de entrada de secuencia
Marcha directa/parada
S1
S2
S3
S4
S5
SC
FC
FR
FS
Alimentación de referencia de
frecuencia 20 mA a +12 V
Potenciómetro
externo de ajuste
de frecuencia
Entrada de referencia de frecuencia
Común de referencia de frecuencia
Salida de contacto multifuncional
NA
NC
Común
Salida de monitorización analógica
MA
MB
MC
AM
AC
Común de salida de
monitorización analógica
Terminales de entrada
del circuito principal
Terminales del
circuito de
control
Terminal
de masa
Terminal
de masa
Terminales de
salida del
circuito principal
Disposición de los terminales del circuito
de control

Related product manuals