EasyManua.ls Logo

Omron CIMR-J7AZ - QUICK - Page 72

Omron CIMR-J7AZ - QUICK
116 pages
Print Icon
To Next Page IconTo Next Page
To Next Page IconTo Next Page
To Previous Page IconTo Previous Page
To Previous Page IconTo Previous Page
Loading...
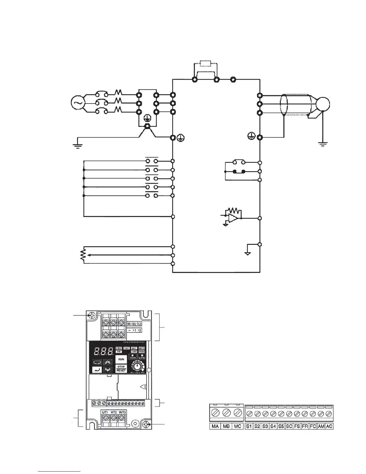
1. Cablaggio
Nota 1: Collegare il circuito monofase 200 V c.a. ai terminali R/L1 e S/L2 del J7AZB
Nota 2: Non è possibile collegare la resistenza di frenatura perché non è integrato alcun transistor di frenatura.
BARRA DI CORTOCIRCUITO
U/T1
V/T2
W/T3
M
+1 +2 -
Filtro antidisturbo
L1
L2
L3
L1i
L2i
L3i
Trifase 200 V c.a.
monofase 200 V c.a.
(vedere nota 1)
R/L1
S/L2
T/L3
3G3JV PFI @
Ingresso multifunzione 1 (S2)
Ingresso multifunzione 2 (S3)
Ingresso multifunzione 3 (S4)
Ingresso multifunzione 4 (S5)
Comune ingresso sequenza
Marcia avanti/Arresto
S1
S2
S3
S4
S5
SC
FC
FR
FS
Alimentazione frequenza di
riferimento 20mA a +12V
Frequenza di
riferimento
(2 k 1/4 W min.)
Ingresso frequenza di riferimento
Comune frequenza di riferimento
Uscita a contatto multifunzione
NA
NC
Comune
Uscita analogica di monitor
MA
MB
MC
AM
AC
Comune uscita
analogica di monitor
Terminali d'ingresso
circuito principale
Terminali
circuito di
controllo
Terminale
di messa a terra
Terminale di
messa a terra
Terminali d'uscita
circuito principale
Disposizione dei terminali del circuito
di controllo

Related product manuals