EasyManua.ls Logo

Omron NS10-TV Series - Page 29

Omron NS10-TV Series
44 pages
Print Icon
To Next Page IconTo Next Page
To Next Page IconTo Next Page
To Previous Page IconTo Previous Page
To Previous Page IconTo Previous Page
Loading...
24
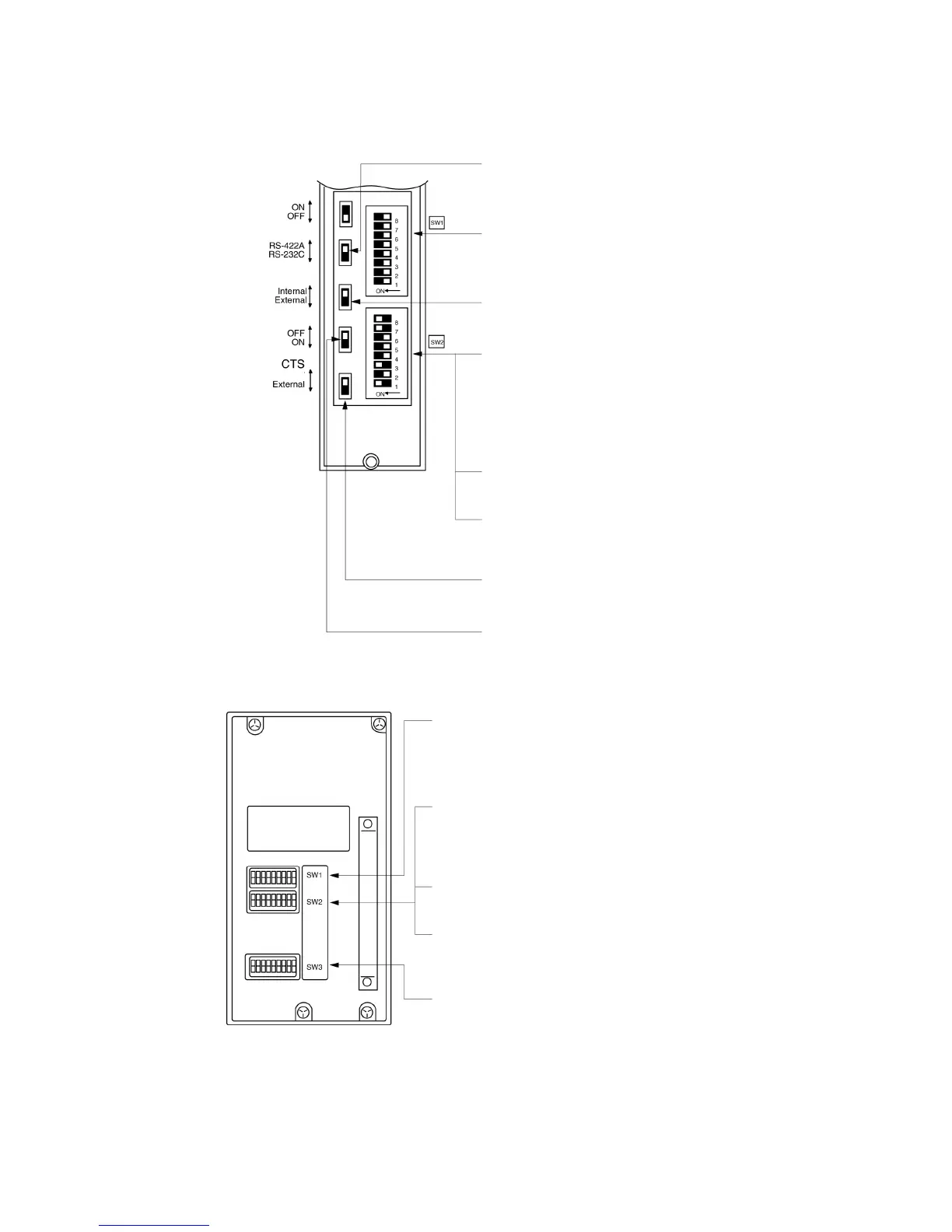
C1000H(F)/C2000H Rack-mounted Type: C500-LK203
Setting the Rear Switches
I/O port selection (selector switch)
Set this to RS-422A.
Unit #, parity, and transfer code
(DIP SW1-1 to SW1-7)
Set SW1-1 to SW1-7 to OFF (0).
Synchronization (selector switch)
Set this to Internal.
Communications speed
(DIP SW2-1 to SW2-4)
Set these switches to 0010 to select
19,200 bps.
Set these switches to 1010 to select
9,600 bps.
(0: OFF 1: ON)
1-to-1/1-to-N selection (DIP SW2-6)
Set SW2-6 to OFF (0) (1-to-N).
Command level (DIP SW2-7, SW2-8)
Set these switches to ON (1).
(Levels 1, 2, and 3 are enabled.)
CTS selection (selector switch)
Set this always to 0 V (ON).
Terminator setting (selector switch)
Set this switch to ON.
I/O port
Synchronization
Terminator
5V supply
0
V
C200H/C1000H/C2000H CPU-mounted Type: C120-LK202-EV1
Setting the Rear Switches
Unit #, parity, and transfer code
(DIP SW1-1 to SW1-5)
Set SW1-1 to SW1-5 to OFF (0).
* Parity is fixed at Even Parity. Transfer code
is fixed at ASCII 7 data bits and 2 stop bits.
Communications speed (DIP SW2-1 to SW2-4)
Set these switches to 0010 to select 19200 bps.
Set these switches to 1010 to select 9600 bps.
(0: OFF 1: ON)
1-to-1/1-to-N selection (DIP SW2-6)
Set SW2-6 to OFF (0) (1-to-N).
Command level (DIP SW2-7, SW2-8)
Set these switches to ON (1).
(Levels 1, 2, and 3 are enabled.)
Terminator setting (DIP SW3-1 to SW3-6)
Set SW3-1, SW3-3, and SW3-5 to ON (1).
Set SW3-2, SW3-4, and SW3-6 to OFF (0).
(Set terminator ON.)

Other manuals for Omron NS10-TV Series

Related product manuals