EasyManua.ls Logo

Omron Q2A-A4038-AAA - Page 11

Omron Q2A-A4038-AAA
26 pages
Print Icon
To Next Page IconTo Next Page
To Next Page IconTo Next Page
To Previous Page IconTo Previous Page
To Previous Page IconTo Previous Page
Loading...
Q2A 11
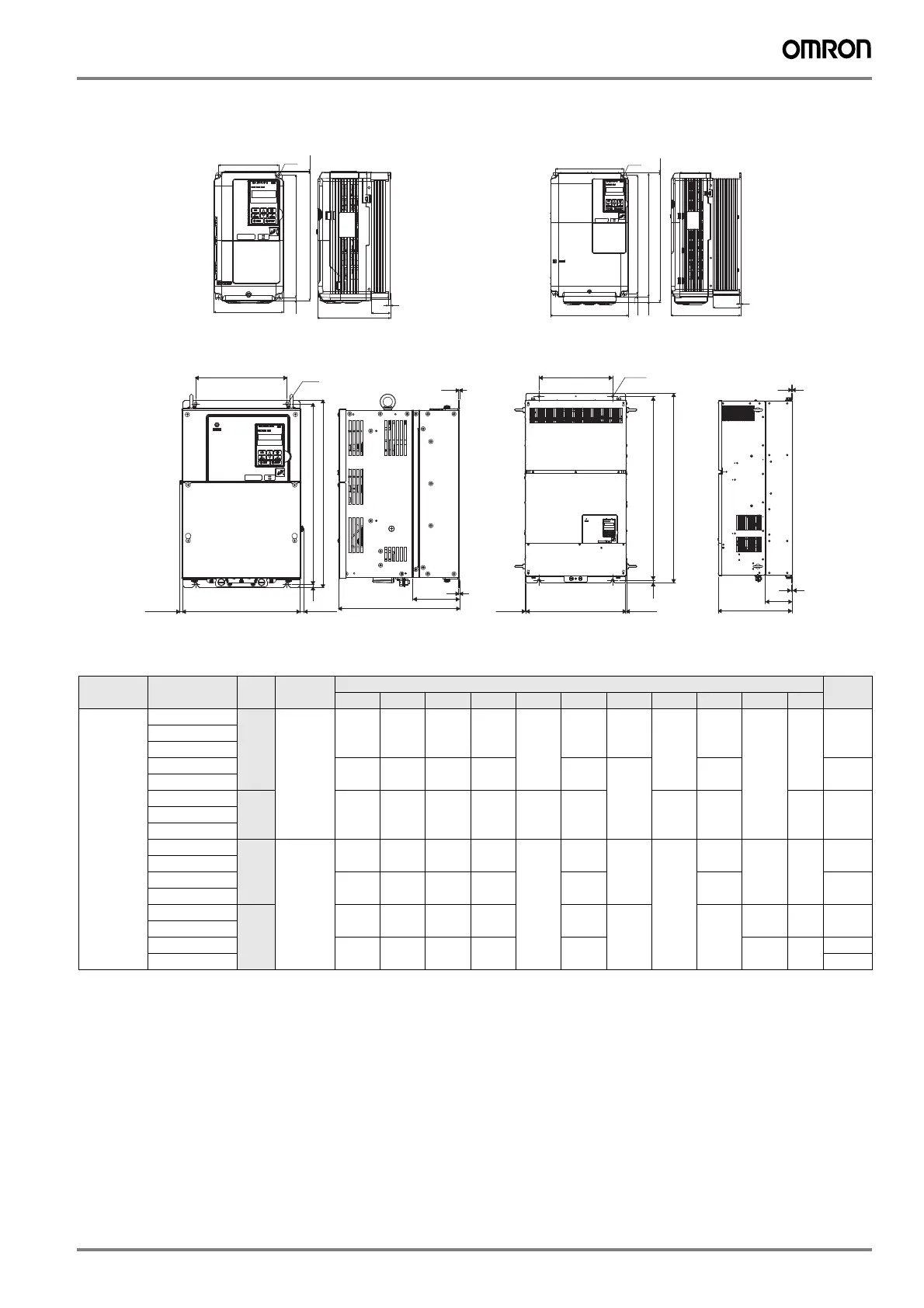
R1000 kit - Regenerative Braking unit
Regenerative Braking unit (R1000)
Voltage
class
Model
CIMR-RC
Fig.
Protection
class
Dimensions (mm)
Weight
(kg)
W H D W1 H0 H1 H2 H3 D1 t1 d
400 V 4A03P5
1 IP20 140 260 167 122 - 248 6 - 55 5 M5 4
4A0005
4A0007
4A0010 180 300 187 160 284 8 75 5
4A0014
4A0017
2 220 365 197 192 350 355 15 78 M6 8
4A0020
4A0028
4A0035
3 IP00 275 450 258 220 - 435 7.5 - 100 2.3 M6 20
4A0043
4A0053 325 550 283 260 535 110 33
4A0073
4A0105
4 450 705 330 325 680 13 130 3.2 M10 62
4A0150
4A0210 500 800 350 370 773 4.5 M12 86
4A0310 87
W1
1.5
H
H1
H2
W
D
D1
t1
4-d
Figure 1
Figure 2
H2
W1
1.5
H
H0
H1
W
D1
D
t1
H3
4-d
W1
4-d
H1
H
H2
Max 10
W
t1
t1
D1
D
Figure 3
Max 10
D1
D
t1
H1
H2
H
4-d
W1
W
Max 8Max 8
t1
Figure 4
I175E-EN-01+Q2A+Datasheet.fm Seite 11 Montag, 26. März 2018 3:18 15

Other manuals for Omron Q2A-A4038-AAA

Related product manuals