EasyManua.ls Logo

Omron R88D-1SN10F-ECT - Page 182

Omron R88D-1SN10F-ECT
974 pages
To Next Page IconTo Next Page
To Next Page IconTo Next Page
To Previous Page IconTo Previous Page
To Previous Page IconTo Previous Page
Loading...
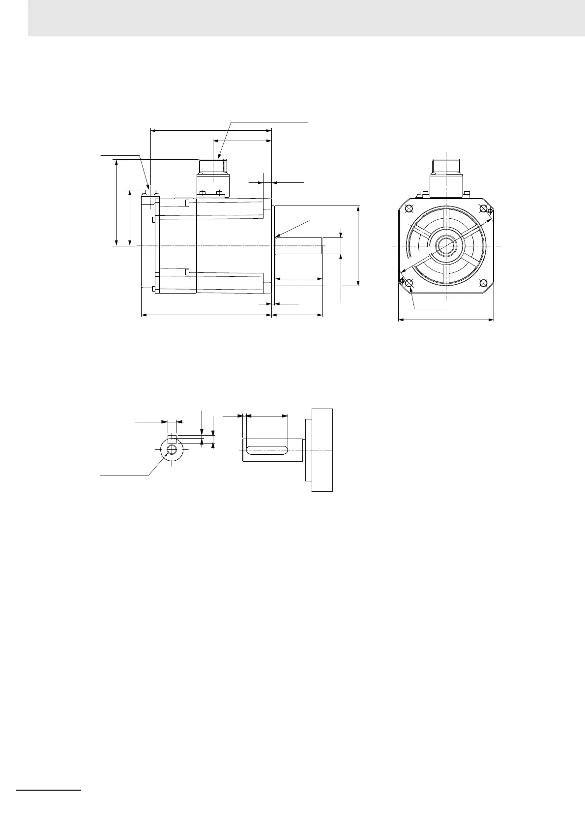
2 Models and External Dimensions
2 - 94
AC Servomotors/Servo Drives 1S-series with Built-in EtherCAT® Communications User’s Manual (I586)
900 W (with Brake)
R88M-1M90010C-B(O/S2/OS2)
Note The standard shaft type is a straight shaft. Models with a key and tap are indicated with “S2” at the end of
the model number.
Models with an oil seal are indicated with “O” at the end of the model number.
Shaft-end with key and tap
130×130±2
110
0
-0.035 dia.
22
0
-0.013 dia.
70±1
4±0.4
65±0.95
11.5±0.5
179±2
81±1
167±2
4-9±0.5 dia.
119±2
76±2
145±0.2 dia.
Encoder
connector
Motor and brake connector
R1.5 max
7
3
3-
0
42
Key and tap cross section
M5(tap)
12(tap depth)
8-
0.036
0
0.4

Table of Contents

Related product manuals