EasyManua.ls Logo

Omron S82K-00305 - Installation

Omron S82K-00305
21 pages
Print Icon
To Next Page IconTo Next Page
To Next Page IconTo Next Page
To Previous Page IconTo Previous Page
To Previous Page IconTo Previous Page
Loading...
New S82K
New S82K
20
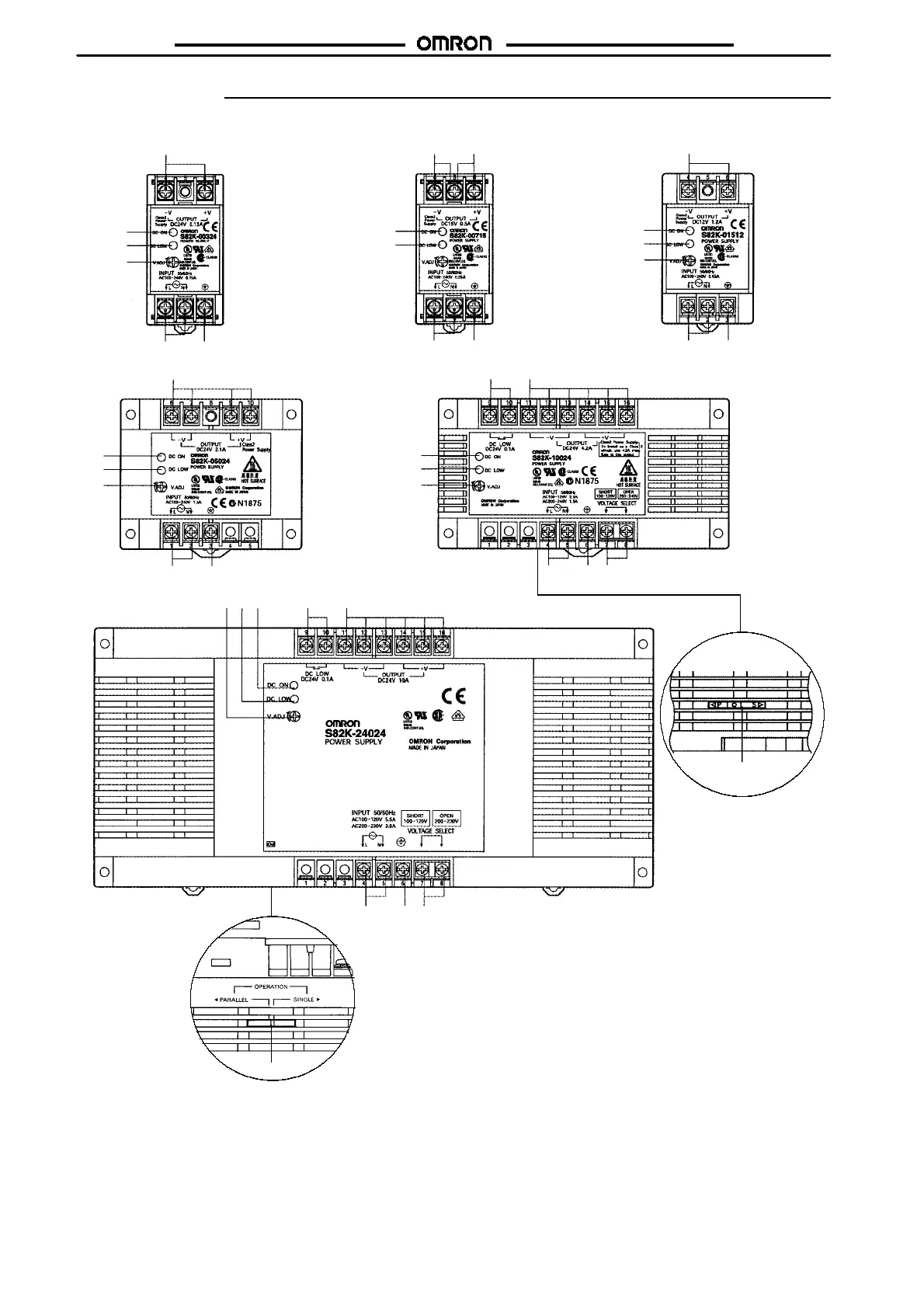
Installation
S82K-015
jj
S82K-030
jj
/S82K-05024
S82K-
j
09024/S82K-
j
10024
1.
DC Output T erminals:
Connect the load lines to these terminals.
2.
Input Terminals:
Connect the input lines to these terminals.
3.
Ground Terminal (GR):
Connect a ground line to this terminal.
4.
Input Voltage Selector Terminals:
Selects a 100 V or 200 V input voltage.
5.
Output Indicator (DC ON):
Lights while a Direct Current (DC) output is ON.
6.
Output Voltage Adjuster(V.ADJ):
It is possible to increase or decrease the
output voltage.
7.
Undervoltage Alarm Indicator (DC LOW):
Other than S82K-24024 and
S82K-P24024 models.
8.
Undervoltage Alarm Output (DC LOW)
: S82K-
j
09024/-
j
10024/-24024T
models only.
9.
Parallel/Single Operation Selector:
Set to PARALLEL” or P” for parallel
operation.
S82K-
j
24024
j
8
234
9
Bottom view
675
S82K-003
jj
/S82K-007
jj
(Single Output)
6
7
5
1
23
11
23
7
5
6
7
5
1
23
S82K-007
jj
(Dual outputs)
1
1
5
7
6
23
1
8
5
7
6
234
9
Bottom view
(Only for
S82K-P10024)

Related product manuals