EasyManua.ls Logo

Omron SYSDRIVE 3G3FV-*-CUE - Page 23

Omron SYSDRIVE 3G3FV-*-CUE
78 pages
Print Icon
To Next Page IconTo Next Page
To Next Page IconTo Next Page
To Previous Page IconTo Previous Page
To Previous Page IconTo Previous Page
Loading...
www.dadehpardazan.ir 88594014-15
2-4
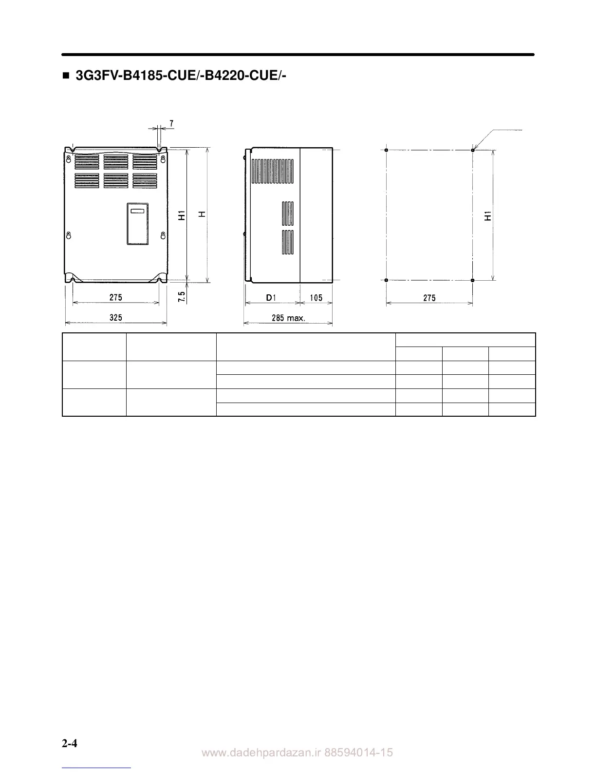
H 3G3FV-B4185-CUE/-B4220-CUE/-B4300-CUE/-B4450-CUE
3G3HV-B4185-CUE/-B4220-CUE/-B4300-CUE/-B4450-CUE
D External Dimensions D Mounting Dimensions
Four, M6
Series Voltage class Model 3G3FV-/3G3HV-
Dimensions (mm)
H H1 D1
3G3FV 400-V
B4185-CUE/B4220-CUE 450 435 174.5
B4300-CUE/B4370-CUE/B4450-CUE 625 610 175
3G3HV 400-V
B4185-CUE/B4220-CUE 450 435 174.5
B4300-CUE/B4370-CUE/B4450-CUE 625 610 175
Installation Chapter 2

Related product manuals