EasyManua.ls Logo

Omron SYSDRIVE 3G3FV-*-CUE - Installation Conditions

Omron SYSDRIVE 3G3FV-*-CUE
78 pages
Print Icon
To Next Page IconTo Next Page
To Next Page IconTo Next Page
To Previous Page IconTo Previous Page
To Previous Page IconTo Previous Page
Loading...
www.dadehpardazan.ir 88594014-15
!
!
!
!
!
2-7
2-1-2 Installation Conditions
H Installation Precautions
WARNING Provide an appropriate stopping device on the machine side to secure safety. (A
holding brake is not a stopping device for securing safety.) Not doing so may result in
injury.
WARNING Provide an external emergency stopping device that allows an instantaneous stop of
operation and power interruption. Not doing so may result in injury.
Caution Be sure to install the product in the correct direction and provide specified clear-
ances between the Inverter and control panel or with other devices. Not doing so
may result in fire or malfunction.
Caution Do not allow foreign objects to enter inside the product. Doing so may result in fire or
malfunction.
Caution Do not apply any strong impact. Doing so may result in damage to the product or
malfunction.
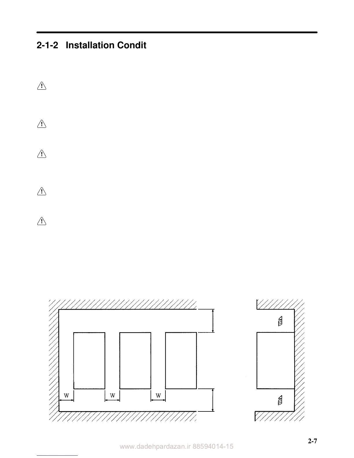
H Direction and Dimensions
Install the Inverter on a vertical surface so that the characters on the nameplate are oriented upward.
When installing the Inverter, always provide the following installation space to allow normal heat dis-
sipation from the Inverter.
W = 30 mm min.
Inverter Inverter Inverter
120 mm min.
120 mm min.
Air
Side
Air
Installation Chapter 2

Related product manuals