EasyManua.ls Logo

Onan MicroLite 2800 Series - Page 49

Onan MicroLite 2800 Series
86 pages
Print Icon
To Next Page IconTo Next Page
To Next Page IconTo Next Page
To Previous Page IconTo Previous Page
To Previous Page IconTo Previous Page
Loading...
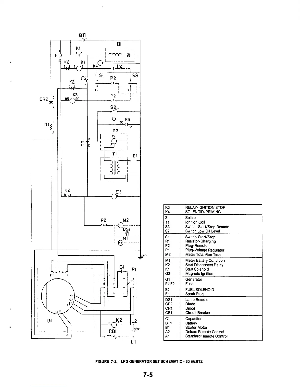
BTI
K3
K4
z
T1
s3
s2
s1
R1
P2
P1
M2
M1
K2
K1
G2
G1
Fl.F2
E2
El
DSl
CR2
CR1
C
Bl
c1
BT1
B1
A2
A1
t
RELAY-IGNITION STOP
SOLENOID-PRIMING
Splice
Ignition Coil
Switch-StaWStop Remote
Switch Low Oil Level
Switch-StarVStop
Resistor-Charging
Plug-Remote
Plug-Voltage Regulator
Meter Total Run Time
Meter Battery Condition
Start
Disconnect Relay
Start
Solenoid
Magneto Ignition
Generator
Fuse
FUEL SOLENOID
Spark Plug
Lamp Remote
Diode
Diode
Circuit Breaker
Capacitor
Battery
Starter Motor
Deluxe Remote Control
Standard Remote Control
CR.?
R
II
KZ
G2
--
II
I
FIGURE
7-2.
LPG GENERATOR SET
SCHEMATIC
-
60
HERTZ
7-5

Related product manuals