EasyManua.ls Logo

Onkyo A-9155 - Led Pc Board

Onkyo A-9155
10 pages
Print Icon
To Next Page IconTo Next Page
To Next Page IconTo Next Page
To Previous Page IconTo Previous Page
To Previous Page IconTo Previous Page
Loading...
A-9155
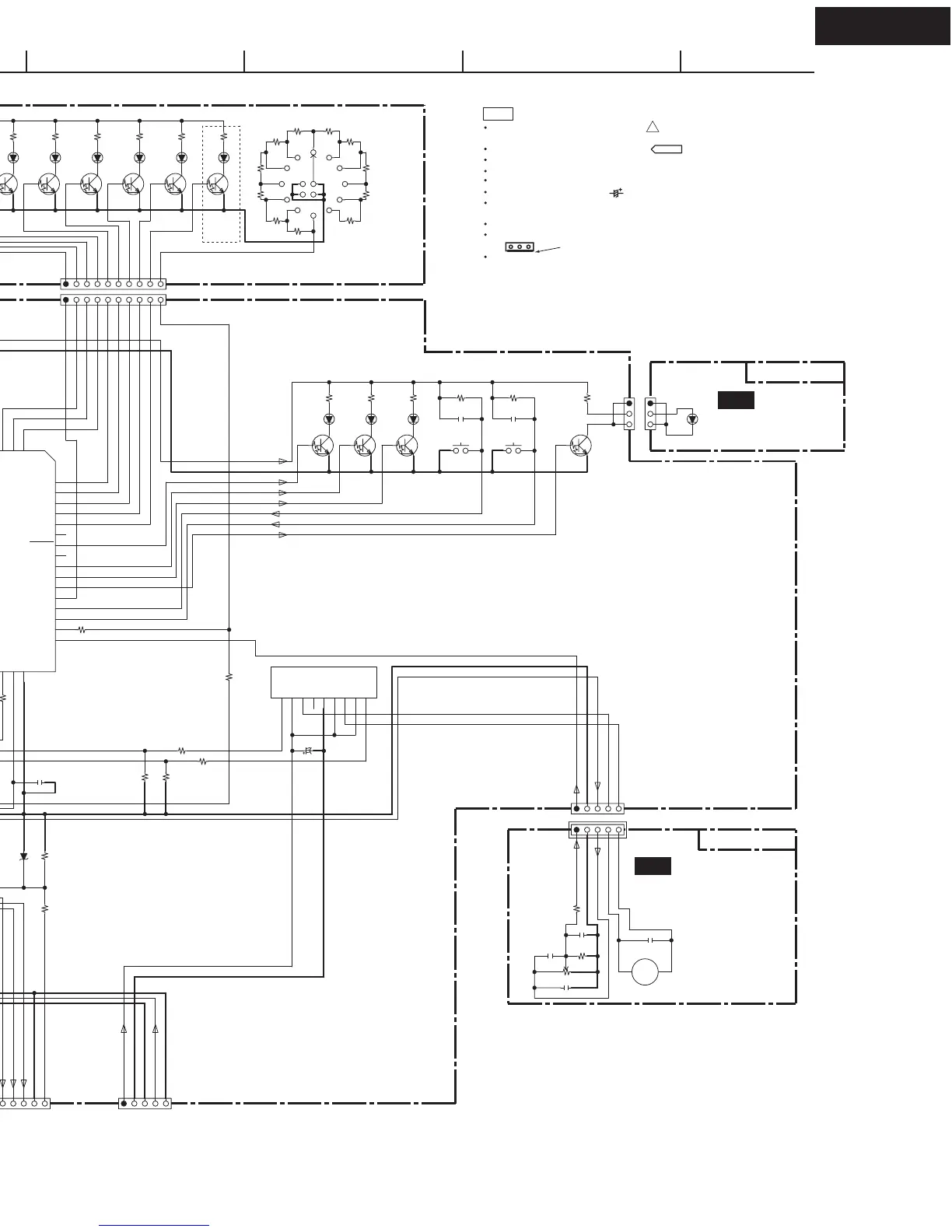
SCHEMATIC DIAGRAMS-2
A-9155
U07 INPUT SELECTOR PC BOARD
U05 MICROPROCESSOR PC BOARD
U12
VOLUME PC BOARD
U06
LED PC BOARD
RLGND
DGGND
+12V
SYSOUT
SYSIN
MODE
VOLUP
VOLDN
FLSCK
FLSI
FLSO
FLMD0
RESET
GND
Vdd
SPL_DET
SPR_DET
SEL_CLK
HP_IN
SEL_DATA
TONE_RL
AMUTE
RCPOWER
D_GND
SPADET_RL
SPBDET_RL
DEBUG
GND
DEB_X1
DEB_X2
FLMD0
RESET
Vdd
DGND
RI
+12V
RLGND
D_GND
+5V
OUT2
OUT1
TO VOLUME
1.5mm pitch JH
VOLAD
PROTECT_I
PROTECT_I
DG_MUTE
SPA_RL
SPB_RL
SPA_RL
SPB_RL
SP_A
SP_B SP_A
STANDBY
VOL_5V
VOL_GND
+12V
RLGND
NACPU-9251
REMIN
ACPOWER
POFF
SP_B
MUTING
A-9355/A-973 ONLY
A-9355/A-973 ONLY
A-9355
A-9155
ONLY
ONLY
A-9355/A-973 ONLY
OCD1A
ONLY
A-9355/A-973
ONLY
A-9355/A-973
PHONO
CD
TUNER
LOUDNESS
TAPE
DIRECT
MD
PURE DIRECT
LOUDNESS
NASW-9253
ONLY
A-9155
A-973
LED:SEL2E10C-F
DOCK
INPUT SELECTOR
NADIS-9252
STANDBY
NASW-9258
-+
VOLAD
D_GND
+5V
OUT1
OUT2
VOLUME
+9V
FLASH WRITER
TO PS-9287
NC
R823
47
R825
47
R852
22
R855
0
R864
1K
C813
104Z
R839
47K
C812
1/50
R892
10K
C806
330/6.3
C807
330/6.3
C801
100/16
C802 104Z
D801
1SS352
L801
NCH-1479
D802
1SS352
C810
104Z
D822
UDZS5.1B
R853
47K
D817
1SS352
D818
UDZS5.6B
R856
220K
Q814
RN2402
R824
47
Q813
RN1404
D816
1SS352
R833
33K
R867
10K
D821
1SR154-400
R894
0
C819
104Z
C820
104Z
C814
1/50
C811
104Z
D823
UDZS5.1B
Q815
RN1407
Q816
RN2402
Q817
RN2402
R829
100
R837
10K
R831
1K
R828
100
R858
100
R862
1K
R863
1K
R865
1K
R866
1K
R895
220
R896
220
R897
10K
R898
10K
R868
220
Q802
2
I
1
G
3
O
Q803
TA7291S
1
IN2
2
VCC
3
OUT2
4
NC
5
GND
6
VS
7
OUT1
8
VREF
9
IN1
JL211C
3
2
1
JL211A
1
2
3
4
5
6
7
8
9
10
JL212A
8
7
6
5
4
3
2
1
C809
104Z
Q821
RN1402
Q822
RN1402
Q823
RN1402
R816
150
R817
150
R802
2.7K
R803
2.7K
C808
104Z
Q811
RN1402
JL813A
1
2
3
P801
8
7
6
5
4
3
2
1
P802
6
5
4
3
2
1
JL812A
1
2
3
4
5
6
7
8
9
10
R820
10K
Q812
RN2402
R819
10K
R812
10K
JL811A
1
2
3
JL913A
5
4
3
2
1
C804
100/16
C817
100/16
C803
10/50
S804 S803
D810
D811
D812
R804
3.3K
R814
220K
R815
220K
R818
3.3K
R832
3.3K
R830
1K
R822
47
Q801
uPD78F0533GK
17
P60/SCL0
18
P61/SDA0
19
P62/EXSCL0
20
P63
21
P33/TI51/TO51/INTP4
22
P77/KR7
23
P76/KR6
24
P75/KR5
25
P74/KR4
26
P73/KR3
27
P72/KR2
28
P71/KR1
29
P70/KR0
30
P06/TO01/TI011
31
P05/SSI11/TI001
32
P32/INTP3/OCD1B
33
34
P50
35
P51
36
P52
37
P53
38
P30/INTP1
39
P17/TI50/TO50
40
P16/TOH1/INTP5
41
P15/TOH0
42
P14/RxD6
43
P13/TxD6
44
P12/SO10
45
P11/SI10/RxD0
46
P10/SCK10/TxD0
47
AVref
48
AVss
49
ANI7/P27
50
ANI6/P26
51
ANI5/P25
52
ANI4/P24
53
ANI3/P23
54
ANI2/P22
55
ANI1/P21
56
ANI0/P20
57
P130
58
P04/SCK11
59
P03/SI11
60
P02/SO11
61
P01/TI010/TO00
62
P00/TI000
63
P141/BUZ/INTP7
64
P140/PCL/INTP6
1
2
P43
3
P42
4
P41
5
P40
6
RESET
7
P124/XT2/EXCLKS
8
P123/XT1
9
FLMD0
10
P122/X2/EXCLK/OCD0B
11
P121/X1/OCD0A
12
REGC
13
Vss
14
Evss
15
Vdd
16
Evdd
D804
1SS352
R801
1K
D803
1SS352
R838
10K
R857
100
R859
1K
R861
1K
R860
1K
R827
10K
R884
10K
R881
22(1/2W)
D836
D837
D835
D834
D833
D832
D831
S805
S806
S802
12
11
10 16
15
9
8
7
6
5
14
413
3
2
1
C815
100/16
JL812B
10
9
8
7
6
5
4
3
2
1
JL811B
3
2
1
R851
270
R850
330
R834
2.7K
R878
150
R877
150
R876
150
R875
150
R874
150
R873
150
R872
150
R871
150
Q838
RN1402
Q837
RN1402
Q836
RN1402
Q835
RN1402
Q834
RN1402
Q833
RN1402
Q832
RN1402
Q831
RN1402
D838
C818
104Z
R835
390
U801
GP1UM281XKVF
1
2
3
C816
104Z
R848
560
R849
470
R843
3.3K
R842
6.8K
R847
680
R846
1K
R845
1.2K
R844
1.8K
R841
18K
JL813B
3
2
1
D805
JL913B
1
2
3
4
5
R200
3 9
7
82
M
C781
223
C782
223
C784
223
C783
223
R783
1K
R782
470K
JL210A
5
4
3
2
1
JL901A
4
3
2
1
C805
0.22F
To NAAF-9245
(SD-1 : C5)
To NAAF-9245
(SD-1 : D5)
To NAAF-9245
(SD-1 : D5)
THE COMPONENTS IDENTIFIED BY MARK ARE CRITICAL FOR SAFETY
REPLACE ONLY WITH PART NUMBER SPECIFIED.
VOLTAGE (MEASURED WITH VOLTMETER) IS DC VOLTAGE.(NO INPUT SIGNAL).
ALL PNP TRANSISTORS ARE EQUIVALENT TO 2SA1015-GR UNLESS OTHERWISE NOTED.
ALL NPN TRANSISTORS ARE EQUIVALENT TO 2SC1815-GR UNLESS OTHERWISE NOTED.
ALL DIODES ARE EQUIVALENT TO 1SS133 UNLESS OTHERWISE NOTED.
ELECTROLYTIC CAPACITORS ( ) ARE IN uF/WV.
ALL CAPACITORS ARE IN pF/50WV UNLESS OTHERWISE NOTED.
EX) 030- 3pF 330- 33pF 331- 330pF 333- 0.033uF
ALL RESISTORS ARE IN OHMS 1/4WATTS UNLESS OTHERWISE NOTED.
THE THICK LINES ON PC BOARD ARE THE PRINTING SIDE OF THE PARTS.
EX) PRINTING SIDE
CIRCUIT IS SUBJECT TO CHANGE FOR IMPROVEMENT.
!
NOTE
<Note>
NC = No mount of parts.
SD-Z : XY
Location of connected terminal in schematic diagrams.
SD-Z = Schematic diagrams-Z. X = A to H, Y = 1 to 5.
MICROPROCESSOR
MOTOR DRIVER
A
1
2
3
4
5
BCDEFGH

Related product manuals