EasyManua.ls Logo

Onkyo TX-SR502E - Page 114

Onkyo TX-SR502E
118 pages
Print Icon
To Next Page IconTo Next Page
To Next Page IconTo Next Page
To Previous Page IconTo Previous Page
To Previous Page IconTo Previous Page
Loading...
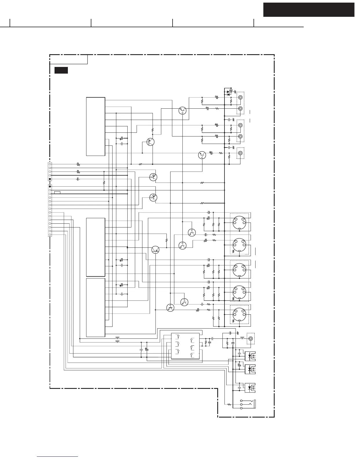
SCHEMATIC DIAGRAMS-6
VIDEO SECTION
TX-SR502/E/8250/HT-R520TX-SR502/E/8250/HT-R520
A
1
2
3
4
5
BCDEFGH
P281
YC
P203
YC
CY
P202
YC
CY
P201
NAETC-8243
P206B
Q281
74HCU04
1
2
3
4
5
6
7
8
9
10
11
12
13
14
P282
U283
U282
U281
P203
Q204
2SA933-S
KTA1267-GR
Q209
2SA933-S
KTA1267-GR
VIDEO OUT
VCC
VIN4
VIN3
VIN2
GND
VIN1
B
A
Q203
LA7956
1
2
3
4
5
6
7
8
9
VIDEO OUT
VCC
VIN4
VIN3
VIN2
GND
VIN1
B
A
Q213 LA7956
1
2
3
4
5
6
7
8
9
VIDEO OUT
VCC
VIN4
VIN3
VIN2
GND
VIN1
B
A
Q212 LA7956
1
2
3
4
5
6
7
8
9
P201
P202
Q201
RN1241
Q202
RN1241
Q208
RN1241
Q207
RN1241
Q210
RN1241
Q211
RN1241
NAETC-8234
P253A
P253B
P261B
YC
P251
E301
P254
Q205
DTA114ES
KRA102M
Q206
DTA114ES
KRA102M
L283
022M
L281
220K
NCH-1452
L282
220K
NCH-1452
D201
D202
C203
470/16
C201
2.2/50
C202
2.2/50
C204
2.2/50
C205
470/16
C221
47/16
C211
470/16
C209 2.2/50
C288
47/6.3
C285
47/6.3
C225
47/16
C223
47/16
C217 2.2/50
C218 2.2/50
C207 2.2/50
C213 2.2/50
C215
470/16
C289
223Z
C227
223Z
C220
223Z
C216
223Z
C222
223Z
C210
223Z
C208 223Z
C286
223Z
C281
223Z
C284
080D
C283
223Z
C226
223Z
C224
223Z
C219 223Z
C287
223Z
C282 101J
C206 223Z
C212 223Z
C214
223Z
C263
104Z
C253
104Z
C261
471J
C262
471J
R251
75
R282
470
R223
100K
R230
680K
R205
75
R207
680K
R201
75
R210
220
R202
75
R208
680K
R209
680K
R203
75
R206
75
R204
100K
R228
220
R220 75
R219 75
R226
680K
R214 75
R213 75
R224
100K
R284
10K
R229
680K
R281 75
R225
680K
R212 75
R211 75
R217
100K
R218 100K
R216 75
R222
75
R221 75
R215 75
R227
680K
R262 330
R261 330
R252 75
R253
75
V4
V4Y
V4C
+12V
GND
A
B
VMUT2
VMUT1
RI
OPT2
DGND
OPT1
+5V
COAX
OPTOUT
NAVD-8250
VIDEO-2 IN
VIDEO-1
DVD IN
MONITOR
OUT
OUT
IN
OUT
IN
MONITOR
OUT
IN
VIDEO-2
VIDEO-1
DVD IN
NAETC-8234
VIDEO3 IN
SRLV
U21
VIDEO PC BOARD
TO NAVD-8250 TO NADG-8230
OPTICAL
1
OPTICAL
2
OPTICAL
3
COAXIAL
RI
REMOTE
CONTROL
U05
VIDEO 3 TERMINAL
PC BOARD
P243B
P242A
Q241
2SC1740
RL241
RL242
D241
R249
1K
C242
103Z
C241
103Z
P241
COMPONENT VIDEO
Y
CB(PB)
CR(PR)
P241
VIDEO 1/2/3 IN
Y
CB(PB)
CR(PR)
P241
DVD IN
Y
CB(PB)
CR(PR)
DGND
DGND
CNPT
+5V
CR2
CB2
Y2
GND
GND
GND
CR1
GND
CB1
GND
Y1
GND
CR
GND
CB
GND
Y
CPNT
+5V
DGND
NAVD-8236
NC
OUT
U07
COMPONENT VIDEO TERMINAL PC BOARD
COMPONENT VIDEO
NC
P206A
TO NAVD-8250
P801B
P243A
+12V
GND
GND
CNPT
RI
A
B
VMUT2
VMUT1
OPT2
DGND
OPT1
+5V
COAX
OPTOUT
NAETC-8243
TO NADG-8230
U14
TERMINAL
PC BOARD

Other manuals for Onkyo TX-SR502E

Related product manuals