EasyManua.ls Logo

Onkyo TX-SR503 - Schematics - Power Supply, Display, and Video

Onkyo TX-SR503
142 pages
Print Icon
To Next Page IconTo Next Page
To Next Page IconTo Next Page
To Previous Page IconTo Previous Page
To Previous Page IconTo Previous Page
Loading...
TX-SR503/503E/8350 TX-SR503/503E/8350
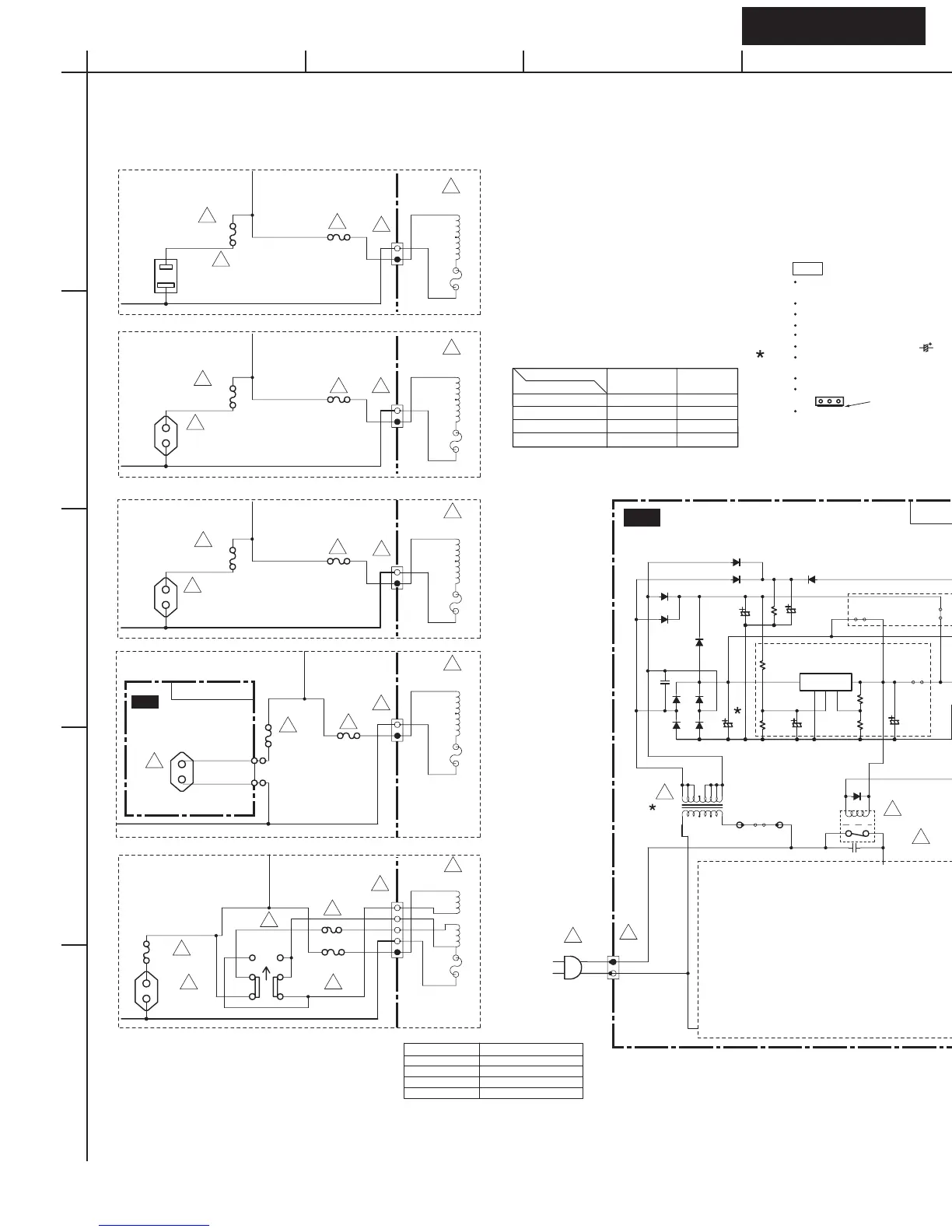
SCHEMATIC DIAGRAMS-6
POWER SUPPLY SECTION
U14
SEC. TERMINAL-1
PC BOARD
THE COMPONENTS IDENTIFIED BY MARK ARE CRITICAL FOR SAFETY
REPLACE ONLY WITH PART NUMBER SPECIFIED.
VOLTAGE (MEASURED WITH VOLTMETER) IS DC VOLTAGE.(NO INPUT SIGNAL).
ALL PNP TRANSISTORS ARE EQUIVALENT TO 2SA1015-GR UNLESS OTHERWISE NOTED.
ALL NPN TRANSISTORS ARE EQUIVALENT TO 2SC1815-GR UNLESS OTHERWISE NOTED.
ALL DIODES ARE EQUIVALENT TO 1SS133 UNLESS OTHERWISE NOTED.
ELECTROLYTIC CAPACITORS ( ) ARE IN uF/WV.
ALL CAPACITORS ARE IN pF/50WV UNLESS OTHERWISE NOTED.
EX) 030- 3pF 330- 33pF 331- 330pF 333- 0.033uF
ALL RESISTORS ARE IN OHMS 1/4WATTS UNLESS OTHERWISE NOTED.
THE THICK LINES ON PC BOARD ARE THE PRINTING SIDE OF THE PARTS.
EX) PRINTING SIDE
CIRCUIT IS SUBJECT TO CHANGE FOR IMPROVEMENT.
!
NOTE
<Note>
NC=No mount of parts.
Q9023
RN1202
Q9021
2SA1015
Q9022
RN2202
P9502A
TO NAAF-8523
P902
AC OUTLET
120W MAX
1A MAX
Q930
SI-3010KF
ACG
I O
T901
MWT
RL901
T902
1
3
4
F902
F903
T2.5AL250V
F901
F903
5A 125V
F902
F903
T2.5AL250V
F901
F902
F9501
F903
T2.5AL250V
P931A
P931B
P912
C921
223Z
C901
103M
/275VAC
D9023
D9024D9022
D9025
D934
D935
D933
D9013
RL1N4003
D9009, 9013
GP104003E
D9009
D9706
D925
D930
D931
D932
D922
D9004
D9003
D9002
D9001
D9001-9003 : RL1N4003
D924
D923
D921
D9705
J962
J955
NC
J919
J924
J956
J922
J921
C9001
334J
MMT
C9708
222J
C9591
104J
R9023
10K
R9022
10K
R9024
3.3K
R934
100K
R931
100K
R923
1K
R922
10K
R932
82K
R933
10K
R930
100K
R9594
8.2 (1/2W)
R9593
0.22
OTHER THAN T6/A6
(1/2W)
R9592
0.47
(1/2W)
R9591
0.47(1/2W)
C9021
100/16
C933
4.7/50
C930
100/35
C9016
10/50
C9015
10/50
C9009
220/35
C9014
470/63
C932
100/16
C931
10/50
C9003
1000/35
C9004
470/35
P918
P917
P926A
P925A
P925
P926
8
9
10
11
12
14
13
P997P995
NC
P996
15
16
17
18
19
Q921
KTC3199-GR,
2SC2458-GR
P912
P912
P901A
AC-H
AC-G
P901
S902
VOLTAGE
SELECTOR
220V
120V
T901
MGK
T901
MPP, MPA
T901
MDD, MDC
T901
THERMAL
FUSE
JL6952B
TO NAAF-8523
JL6951B
TO NAAF-8397
P902A
AC OUTLET
100W MAX
P902
AC OUTLET
100W MAX
P902
AC OUTLET
100W MAX
JL9501B
JL9501A
R9002 22
(1/2W)
R9005
330K
R9004
8.2K
R9003
8.2K
D9026
MTZJ12C
DZ-12BSC
D9012
MTZJ36D
E9001
Q9002
+24V
S3GND
-24V
SEC2-1
SEC2-2
-VP
MPUGND
+12VD
+10VS
FLAC2
POWER
POFFV
FLAC1
POFFVP POFFVP
+10VS
+12VD
MPUGND
FLAC1
FLAC2
SEC3-2
S3GND
SEC3-1
SEC2-2
SEC2-1
POWERD POWERD
GND
FLAC1
FLAC2
SEC3-2
SEC3-1
SEC2-2
SEC2-1
AC IN
120V, 60Hz
230-240V, 50Hz
220-230V, 50Hz/ 60Hz
120V/ 220-230V, 50/ 60Hz
NAPS-8536
NAPS-8535
NAPS-8533
NAPS-8534
NAPS-8524
U06
SEC. TERMINAL-2
PC BOARD
U13
POWER SUPPLY-2 PC BOARD
U11
POWER SUPPLY-1 PC BOARD
F902
F903
T2.5AL250V
P912
T901
MGR, MGQ
P902
AC OUTLET
100W MAX
P912
DESTINATION
MDD, MDC
MPP, MPA
MGR, MGQ, MGK
MWT
Refer to left diagrams
for each destination.
AC IN
U12
OUTLET (GK)
PC BOARD
C922
DESTINATION
MDD, MDC
MPP, MPA
MGR, MGQ, MGK
MWT
CIRCUIT NO.
T902
NPT-1520JQ
NPT-1519GQ
NPT-1519GQ
NPT-1519JQ
KTA1268,
2SA970
NC
8A/125V
T4AL250V
T4AL250V
T4AL250V
T4AL250V
T4AL250V
Refer to following table about the parts displayed by mark " ".
Except MWT
MWT Only
Except MWT
MWT Only
NPT-1516D
NPT-1516P
NPT-1516G
NPT-1516G
NPT-1516DQ
!
!
!
!
!
!
!
!
!
!
!
!
!
!
!
!
!
!
!
!
!
!
!
!
!
!
!
!
!
!
!
!
C922
2200/25
2200/16
2200/16
2200/35
!
A
1
2
3
4
5
BCDEFGH

Other manuals for Onkyo TX-SR503

Related product manuals