EasyManua.ls Logo

Onkyo TX-SR503 - Page 35

Onkyo TX-SR503
142 pages
Print Icon
To Next Page IconTo Next Page
To Next Page IconTo Next Page
To Previous Page IconTo Previous Page
To Previous Page IconTo Previous Page
Loading...
TX-SR503/503E/8350
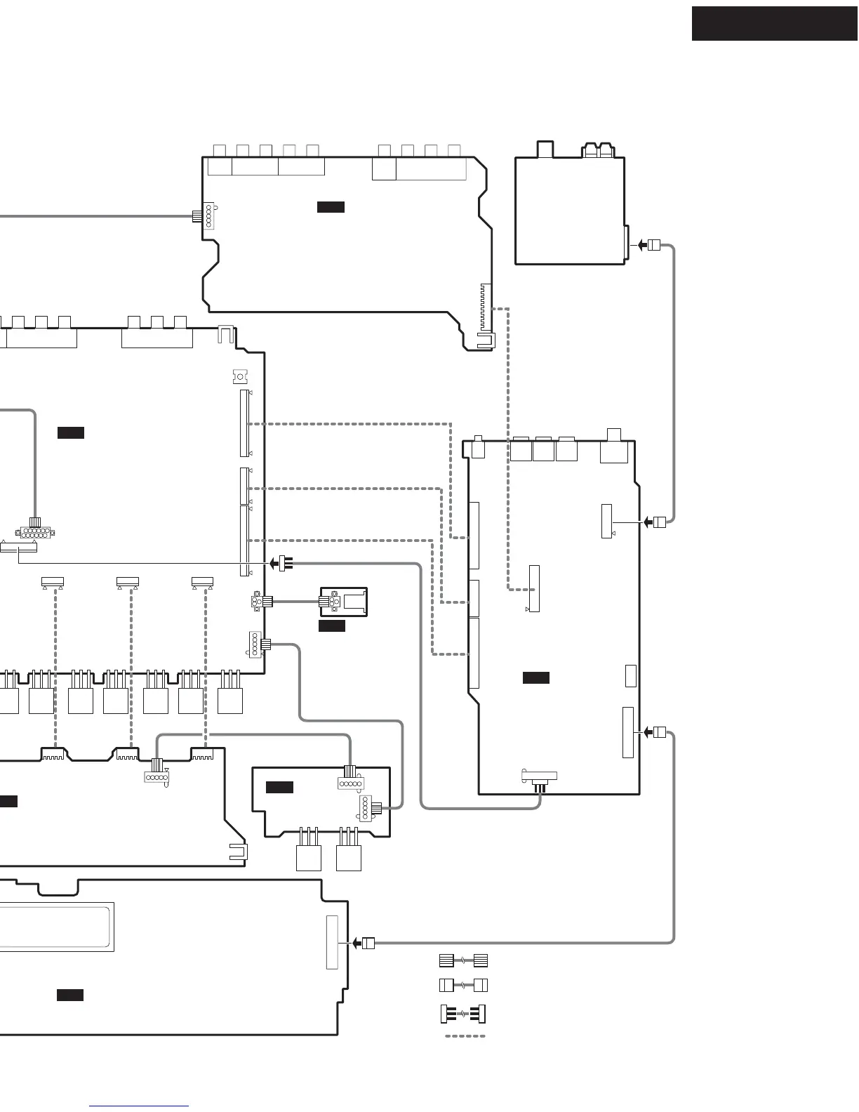
PC BOARD CONNECTION DIAGRAM
TX-SR503/503E/8350
P6600 P6607P6602
S902
VOLTAGE
SELECTOR
AC IN
CENTER
SPEAKER
P931A
P9502A
JL9501B
JL6602B
P901A
P912
FRONT
SPEAKERS A
FRONT
SPEAKERS B
SURROUND
SPEAKERS
JL6600BJL6602B JL6603B
JL2006B
MAIN TRANSFORMER
JL9501A
JL6952B
P995A
P997A
P996A
PHONES
JL831B
JL891A
JL831A
P702B
U821
Q801
P6000A P6001A
JL6006A
P6002A P6003A
P5504A
P5019
P6011B
P6004A P6005A
Q6055Q6065Q6054Q6064Q6053Q6063Q6052Q6062Q6051Q6061Q6050Q6060
JL6006B
Q6056Q6066
JL6200B
OPTICAL COAXIAL
DIGITAL IN
REMOTE
CONTROL
P721
P312
U131U132U133
P303A
P301A
P101A
P751A
P702A
P311A
P302A
P2005
FM ANT. AM ANT.
TUNER UNIT
P1588
P1503
P1504
DVD
DVD
COMPONENT VIDEO
VIDEO 1
VIDEO 1
VIDEO 2
VIDEO 2
MONITOR
OUT
MONITOR
P1501
P1505
P1506
JL2006A
P2005A
F6901
F6902
PRE OUT DVD CDTAPEVIDEO 1
VIDEO
2
P6011C
E301A
P7902P7904P7905P7907
P995
P997
P996
P9606 P5505
JL5501A
JL5501B
JL6402A
JL6200A
P311B
P9502
P6000 P6001 P6002 P6003
P5504
P6004
P302
P301
P303
P6005
JL6952A
JL891B
JL6600A
JL6603A
JL6402B
Q6380
P891
P931B
SURROUND BACK
SPEAKERS
SUB
TRANS.
U13
NAPS-8535
POWER SUPPLY-2
PC BOARD
U11
NAPS-8533
POWER SUPPLY-1
PC BOARD
U14
NAPS-8536
SEC.TERMINAL-1
PC BOARD
U04
NAETC-8516
HEADPHONE JACK
PC BOARD
U03
NASW-8515
SWITCH PC BOARD
U01
NADIS-8513
DISPLAY PC BOARD
U18
NAAF-8540
DRIVER AMPLIFIER
PC BOARD
U05
NAAF-8523
AMPLIFIER PC BOARD
U17
NAVD-8539
VIDEO PC BOARD
U02
NADG-8514
DSP PC BOARD
U08
NAETC-8526
THERMAL SENSOR
PC BOARD
U07
NAETC-8525
SBR AMPLIFIER
PC BOARD
U06
NAPS-8524
SEC.TERMINAL-2
PC BOARD
U15
NAETC-8537
SPEAKER TERMINAL PC BOARD
U16
NAETC-8538
CENTER SPEAKER TERMINAL
PC BOARD
JUMPER WIRE
SOCKET
FLAT CABLE
BOARD TO BOARD

Other manuals for Onkyo TX-SR503

Related product manuals