EasyManua.ls Logo

Onkyo TX-SR503E - Page 14

Onkyo TX-SR503E
142 pages
Print Icon
To Next Page IconTo Next Page
To Next Page IconTo Next Page
To Previous Page IconTo Previous Page
To Previous Page IconTo Previous Page
Loading...
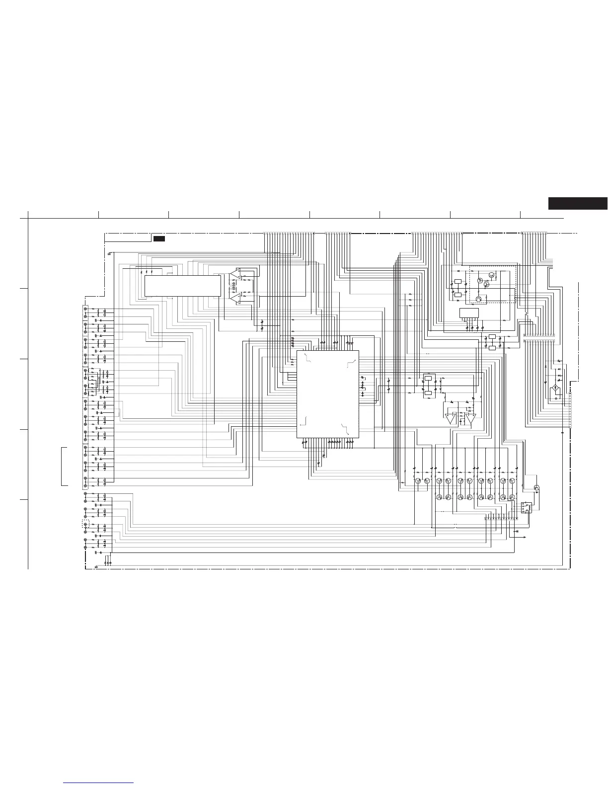
SCHEMATIC DIAGRAMS-1
AUDIO INPUT SECTION
TX-SR503/503E/8350
J5658
J5659
J5654
J5620
J5644
J5620
RL5700
P6906
P5505
JL5501A
JL5501B
D9005
D3SBA20
P9502
P5503
P311B
P301
P302
P303
P5504
D5672
D5671
Q5640
2.5V7
3.3V5
5.0V2
GND4
MODE1
NC6
VCC
3
Q5630
5
6
4
7
Q5503
5
6
4
7
Q5503
NJM4565M-D
3
8
2
1
Q5630
NJM4565M
3
8
2
1
R5809
R5808
R5813
R5814
R5812
R5811
R5701
NC
R5707
R5705
R5703
NC
R5595
10K
R5594
10K
R5590
10K
R5597
1.2K
R5596
470
R5598
10K
R5593
1.2K
R5592
470
R5591
10K
R5599
10K
R5634
10K
R5633
1.2K
R5632
15K
R5631
47K
R5630
220
Q5671
NC
G
I
O
Q5672
NC
G
I
O
C5591
330J
C5590
330J
C5631
221J
C5632
103J
C5555
472J
C5554
224J
C5552
472J
C5551
224J
C9020
NC
C9021
NC
C5666
C5667
C5671
C5672
C5652
NC
C5569 10/50
C5570 10/50
C9010
4700/16
C5663
10/50
C5662
10/50
C5660
10/50
C5661
10/50
C5650
NC
C5653
NC
C5651
NC
C5640
22/50
C5643
22/50
C5642
22/50
C5641
22/50
C5668
220/25
C5669
220/25
C5673
220/25
C5674
220/25
C5576
10/50
C5567
10/50
C5568 10/50
C5571
10/50
C5630
10/16
C5664
220/25
C5665
220/25
C5608
47/50
C5609
47/50
C5606
47/50
C5607
C5600
47/50
C5601
47/50
C5602
47/50
C5604
47/50
C5605
47/50
C5603
47/50
C5574
10/50
C5575
10/50
C5572
10/50
C5573
10/50
C5564
10/50
C5565
10/50
C5578
1/50
C5577
10/50
C5566
10/50
C5560
47/25
C5563
47/25
C5562 47/25
C5561
47/25
C5559
47/25
C5558 47/25
C5557
47/25
C5556 47/25
C5553
4.7/50
C5550
4.7/50
D9020
NC
D9021
RN1N4003
D5650
D9011
NC
D5651
D5711
D5710
D5700
NC
Q5650
2SB1068
Q5661
79M12HF
G
IO
Q5655
NC
G
IO
Q5660 78M12HF
G
IO
Q5654
NC
G
I
O
Q5652
RN2402
Q5651
RN1402
KRC102S
Q5700
NC
Q5617
Q5616
Q5611
Q5610
Q5615
Q5614
Q5613
Q5612
Q5609
NC
Q5608
NC
Q5607
Q5606
Q5601
Q5600
Q5605
Q5604
Q5603
Q5602
Q5653
2SD1468S-R
PURE AUDIO
SWITCH
C9017
102J
C9005
334J MMT
C5710
103J
C5709
NC
C5708
103J
C5707
NC
C5706
103J
C5704
NC
C5705
NC
C5703
NC
C5701
NC
C5702
103J
C5712
C5512
NC
C5511
NC
C5510
NC
C5509
NC
C5711
NC
C5532
NC
C5531
NC
C5530
NC
C5529
102J
C5528
NC
C5527
NC
C5526
NC
C5525
NC
C5524
221J
C5523
221J
C5514
221J
C5506
NC
C5505
NC
C5516
NC
C5515
NC
C5501
NC
C5522
221J
C5521
221J
C5520
C5519
221J
C5518
221J
C5517
221J
C5513
221J
C5508
221J
C5507
221J
C5504
C5503
221J
C5502
R5672
22
R5671
22
R5665
R5661
22
R5660
12
R5656
47K
R5652
47K
R5653
1K
R5655
18K
R5640
0.22
R5682
100K
R5681
100K
R5680
100K
R5581
220
R5582
220
R5583
220
R5552
NC
R5551
NC
R5550
NC
R5549
NC
R5704
R5700
R5706
R5702
R5664
R5668
NC
R5662
22
R5666
22
R5667
22
R5663
22
R5626
R5627
100
R5620
R5621
R5622
R5624
R5623
R5625
R5608
NC
R5609
NC
R5618
2.2K
R5619
2.2K
R5606
220K
R5607
R5616
R5617
270
R5600
220K
R5601
220K
R5610
R5611
R5604
220K
R5605
220K
R5614
R5615
R5602
220K
R5603
220K
R5612
R5613
R5587 220
R5588
220
R5589 220
R5572
NC
R5571
NC
R5532
NC
R5531
NC
R5570
R5569
22K
R5530
NC
R5529
100
R5568
NC
R5567
NC
R5528
NC
R5527
NC
R5566
NC
R5565
NC
R5526
NC
R5525
NC
R5564
56K
R5563
56K
R5524
330
R5523
330
R5562
56K
R5561
56K
R5560
NC
R5559
NC
R5558
NC
R5557
NC
R5554
NC
R5553
NC
R5548
NC
R5547
NC
R5544
NC
R5543
NC
R5542
NC
R5541
NC
R5556
56K
R5555
56K
R5546
56K
R5545
56K
R5501
NC
R5502
NC
R5503
330
R5522
330
R5521
330
R5520
330
R5519
330
R5518
330
R5517
330
R5516
330
R5515
330
R5514
330
R5513
330
R5508
330
R5507
330
R5506
330
R5505
330
R5504
330
R5
CK
NC
L_COM4
R_COM2
L_COM2
VDD
R1
R2
R_COM
R3
R4
R6
R_COM3
R7
R_COM4
DATA
VSS
ST
NC
L7
L_COM3
L6
L5
L4
L3
L_COM
L2
L1
VEE
Q5502
NJU7311AM
1
2
3
4
5
6
7
8
9
10
11
12
13
14
15 16
17
18
19
20
21
22
23
24
25
26
27
28
29
30
COUT
ROUT
LOUT
TCCAP
VDDOUT2
VSSOUT2
GND
GND
SWBIN
RBBIN
LBBIN
RSBIN
LSBIN
CBIN
RBIN
LBIN
SWAIN
RBAIN
LBAIN
RSAIN
CAIN
LSAIN
RAIN
LAIN
LATCH
CLOCK
DAT
DGND
NC
R12IN
L12IN
R11IN
L11IN
R10IN
L10IN
R9IN
L9IN
R8IN
L8IN
R7IN
L7IN
R6IN
L6IN
R5IN
L5IN
R4IN
L4IN
R3IN
L3IN
R2IN
L2IN
R1IN
L1IN
VSSOUT
VDDOUT
FR-
FR+
FL-
FL+
DCR_IN
DCR_OUT
DCL_IN
DCL_OUT
DCCAP_SW
DCCAP_RB
DCCAP_LB
DCCAP_RS
DCCAP_LS
GND
GND
DCCAP_C
DCCAP_R
DCCAP_L
REC_A4R
REC_A4L
REC_A3R
REC_A3L
REC_A2R
REC_A2L
REC_A1R
REC_A1R
REC_A1L
REC_A1L
V-
V+
GND
GND
FIL_TR
FIL_BR
DC_R2
DC_R1
FIL_TL
FIL_BL
DC_L2
DC_L1
SWOUT
RBOUT
LBOUT
RSOUT
LSOUT
Q5501
NJW1157B
1
2
3
4
5
6
7
8
9
10
11
12
13
14
15
16
17
18
19
20
21
22
23
24
25
26
27
28
29
30
31
32
33
34
35
36
37
38
39
40
41
42
43
44
45
46
47
48
49
50
51
52
53
54
55
56
57
58
59
60
61
62
63
64
65
66
67
68
69
70
71
72
73
74
75
76
77
78
79
80
81
82
83
84
85
86
87
88
89
90
91
92
93
94
95
96
97
98
99
100
MPU_GND
AMUT
Z2MUT
ADRT-
ADRT+
ADLT-
ADLT+
TUPACK_L
TUPACK_R
VIDEO4_L
VIDEO4_R
VLTNDAT
VLTNCLK
VLTNSTB
DAC_SBR
DAC_FL
DAC_FR
DAC_SBL
DAC_SW
5V
MIC
SB/PREMUTE
POFF
FSWSTB
FSWCLK
FSWDAT
10S
2.5VDSP
3.3VDSP
DAC_CT
DAC_SL
DAC_SR
-7V
+7V
+12VA
-12VA
-5V_VIDEO
+5V_VIDEO
A_GND
VOLH
THRM
PRO
VPOWER
HPDET
APOWER
SEC1H
-VP
FLAC2
FLAC1
FSWSTB
FSWCLK
FSWDAT
TAPEOUT_R
SOURCE_R
V1OUT_R
Z2_R
DAC_SBR
DAC_FR
DMIXR
+12V
DMIXL
TAPEOUT_R
-12V
DAC_FL
DAC_SBL
V1OUT_L
Z2_L
SOURCE_L
TUNER_R
TUNER_L
CD_R
APOWER
A_GND
-12V
DGND
+12V
-VP
POFF
10S
CD_L
MULTI_SW
MULTI_SR
MULTI_SL
+24V
MULTI_C
TAPEOUT_L
AIN_R
MPUGND
VLTNDAT
VLTNCLK
VLTNSTB
A1_GND
TAPE_R
AIN_L FL_OUT
FR_OUT
CT_OUT
TAPE_L
SL_OUT
SR_OUT
SBL_OUT
VIDEO3_R
SBR_OUT
SW_OUT
VIDEO3_L
MIC
+12VD
MIC
V2OUT_R
VIDEO4_R
VIDEO4_L
TUPACK_R
V2OUT_L
TUPACK_L
TUNER_R
TUNER_L
CD_R
CD_L
TAPE_R
TAPE_L
V1OUT_R
VIDEO3_R
VIDEO3_L
VIDEO2_R VIDEO2_R
VIDEO2_L VIDEO2_L
VIDEO1_R
V1OUT_L
VIDEO1_L
MULTI_R Z2_L
SW
MULTI_L Z2_R
VIDEO1_R
VIDEO1_L
ADRT-
ADRT+
ADLT-
ADLT+
AIN_R
AIN_L
MULTI_R
AIN_L
MULTI_L
SOURCE_L
Z2_L
SW
SBR_OUT
SBL_OUT
SL_OUT
SR_OUT
Z2_R
FL_OUT
AIN_R
CT_OUT
FR_OUT
SB/PREMUTE
MULTI_SR
SOURCE_R
MULTI_SL
MULTI_SW
MULTI_C
AMUT
Z2MUT
PRE_R
PRE_L
PRE_SR
PRE_SL
PRE_SW/SBL
PRE_C
PRE_SR
PRE_SL
PRE_SW/SBL
PRE_R
PRE_SBR
PRE_SW/SBL
PRE_L
PRE_C
PRE_SBR
PRE_SW/SBL
TO_P6906
TO NCPS-8535
FLAC2
FLAC1
+24V
-24V
APOWER
POFF
10S
-12V
+12V
-VP
TO POWER AMP
68(1W)
TO NADG-8514
P7902
P7907
P7905
P7904
TO NADG-8514
TO NADG-8514
TO NADG-8514
NAAF-8523(1/2)
CENTER
SURR L
FRONT L
VIDEO1 IN
VIDEO1 OUT
VIDEO2 IN
TAPE IN
TAPE OUT
CD
U05
AMPLIFER PC BOARD (1/2)
TO
NAAF-8523 (2/2)
DVD IN
FRONT R
SURR R
SUBWOOFER
PREOUT
SUBWOOFER
221J
NC
221J
NC
<Note>
NC=No mount of parts.
AN34060A
NC
NC
0
NC
2.2K
2.2K
2.2K
2.2K
2.2K
2.2K
2.2K
220K
10/50
0
0
0
0
0
0
0
RN1441
NC
NC
NC
NC
NC
NC
NC
TO NAAF-8540
0
0
NC
NC
MTZ6.8C
MTZ6.8C
68(1W)
220/25
220/25
NC
NC
NC
NC
NC
NC
NC
NC
102J
Except
MDD, MDC
NC
NC
NC
NC
NC
NC
RN1441
RN1441
RN1441
RN1441
RN1441
RN1441
RN1441
RN1441
A
1
2
3
4
5
BCDEFGH

Other manuals for Onkyo TX-SR503E

Related product manuals