EasyManua.ls Logo

Onkyo TX-SR503E - Page 33

Onkyo TX-SR503E
142 pages
Print Icon
To Next Page IconTo Next Page
To Next Page IconTo Next Page
To Previous Page IconTo Previous Page
To Previous Page IconTo Previous Page
Loading...
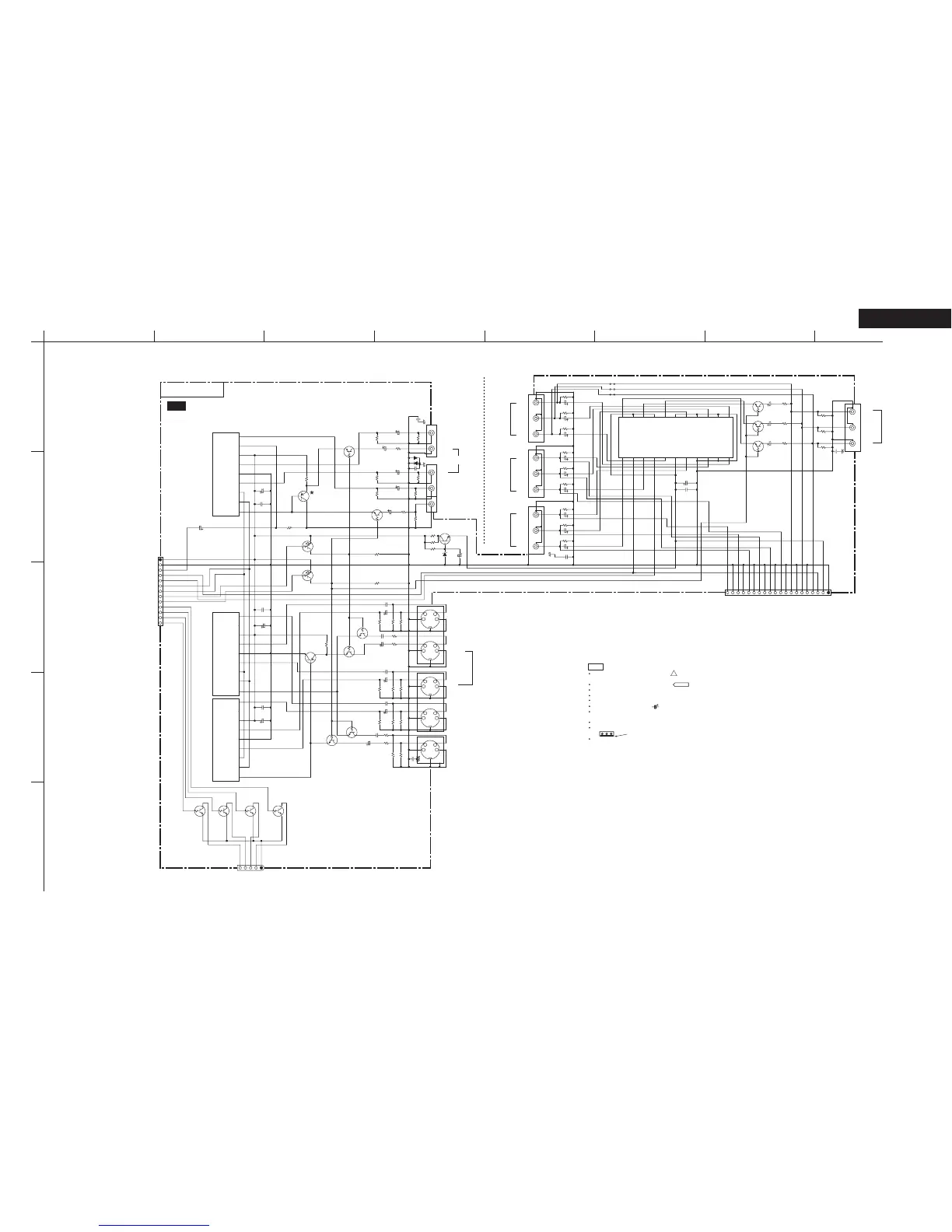
SCHEMATIC DIAGRAMS-8
VIDEO SECTION
TX-SR503/503E/8350
1
3
5
22
7
9
11
20
18
8
10
212
4
6
19
Y C
YC
C
Y
YC
C
Y
1
2
3
4
5
6
7
8
9
B
A
1
2
3
4
5
6
7
8
9
1
2
3
4
5
6
7
8
9
Y
THE COMPONENTS IDENTIFIED BY MARK ARE CRITICAL FOR SAFETY
REPLACE ONLY WITH PART NUMBER SPECIFIED.
VOLTAGE (MEASURED WITH VOLTMETER) IS DC VOLTAGE.(NO INPUT SIGNAL).
ALL PNP TRANSISTORS ARE EQUIVALENT TO 2SA1015-GR UNLESS OTHERWISE NOTED.
ALL NPN TRANSISTORS ARE EQUIVALENT TO 2SC1815-GR UNLESS OTHERWISE NOTED.
ALL DIODES ARE EQUIVALENT TO 1SS133 UNLESS OTHERWISE NOTED.
ELECTROLYTIC CAPACITORS ( ) ARE IN uF/WV.
ALL CAPACITORS ARE IN pF/50WV UNLESS OTHERWISE NOTED.
EX) 030- 3pF 330- 33pF 331- 330pF 333- 0.033uF
ALL RESISTORS ARE IN OHMS 1/4WATTS UNLESS OTHERWISE NOTED.
THE THICK LINES ON PC BOARD ARE THE PRINTING SIDE OF THE PARTS.
EX) PRINTING SIDE
CIRCUIT IS SUBJECT TO CHANGE FOR IMPROVEMENT.
!
NOTE
<Note>
NC=No mount of parts.
NAVD-8539
C1527
223Z
C1501
2.2/50
R1507
680K
Q1511
RN1241
C1516
103Z
C1508
223Z
C1511
470/16
C1513
2.2/50
C1535
100/16
C1536
223Z
R1508
680K
R1509
680K
R1523
100K
R1524
100K
J1511
J1509
J1512
P1505
C1518
1/50
R1531 75
Q1523
RN1241
R1542
75
C1539
470/6.3
P1506
Q1521
RN1241
C1537
470/6.3
R1541
75
Q1522
C1538
470/6.3
RN1241
R1543
100K
R1544
100K
R1545
100K
C1542
103Z
C1525
47/25
NC
C1526
Q1513
LA7956
Q1512
LA7956
C1523
47/25
C1524
NC
C1517
2.2/50
R1504
100K
C1504
2.2/50
Q1502
RN1241
C1505
470/16
Q1508
RN1241
C1509
2.2/50
C1506
223Z
C1502
2.2/50
C1503
470/16
R1505
75
D1502
D1501
C1520
223Z
P1503
R1502
75
C1515
470/16
R1518
100K
R1517
100K
C1521
47/25
C1522
NC
Q1503 LA7956
C1532
1/50
R1537
75
R1538 75
R1539
75
C1533
1/50
C1534
1/50
C1543
103Z
R1528
220
Q1509
2SA933-S
KTA1267-GR
R1527
680K
Q1510
RN1241
C1514
223Z
75
75
R1521
R1522
R1516
75
75
R1515
R1513
75
R1514
75
R1526
680K
C1512
223Z
C1510
223Z
R1520
75
JL2006A
TO NAETC-8537
RN1241
Q1515
RN1241
Q1516 Q1517 Q1518
RN1241 RN1241
P242A
FRLD
CSRLD
SBRLD
Z2RLD
RLGND
Q1507
RN1241
R1525
680K
R1512
75
75
R1511
R1519
75
C1531
1/50
R1536
75
R1535
75
C1530
1/50
C1529
1/50
R1534
75
R1532
75
C1519
1/50
C1528
1/50
R1533
75
R1540
75
R1530
680K
Q1504
2SA933-S
KTA1267-GR
R1510
220
Q1501
RN1241
Y
CR
CB
(PR)
(PB)
CR2
DGND
+5V
COMPB
CB
CR
Y1
CB1
CR1
CB2
Y2
VIDEO OUT
VIN4
VIN3
VCC
VIN2
GND
VIN1
B
A
VIDEO OUT
VIN4
VIN3
VCC
VIN2
GND
VIN1
P2005A
TO NADG-8514
+12V
DGND
V4
COMPB
COMPA
VCTRLA
VCTRLB
VMUTV1
VMUTMON
SPRLZ2
SPRLSB
SPRLCS
SPRLLF
B
A
VIDEO OUT
VIN4
VIN3
VCC
VIN2
GND
VIN1
CH3IN3
Q1519
NJM2585L
CH1OUT
PS
CH1IN1
SW1
CH1IN2
CH2OUT
V+2
SW2
CH3OUT
CH1IN3
CH3IN1
CH2IN1
GND4
V+1
GND3
GND
CH3IN2
CH2IN2
GND2
GND1
CH2IN3
U17 VIDEO PC BOARD
P1501
VIDEO 2
IN
VIDEO 1
OUT
IN
P1503
P1504
DVD IN
MONITOR
VIDEO 2
IN
VIDEO 1
OUT
IN
DVD IN
MONITOR
DVD IN
VIDEO 1
IN
VIDEO 2
IN
COMPONENT
VIDEO
VIDEO
COMPONENT
VIDEO
OUT
Y
CR
CB
(PR)
(PB)
Y
CR
CB
(PR)
(PB)
Y
CR
CB
(PR)
(PB)
R1501
75
R1503
75
R1506
75
Q1514
2SC1815
R1546
56
R1547
NC
R1529
560
D1503
MTZ5.6B
C1540
47/25
Q1505
Q1506
DTA114ES
KRA102M
DTA114ES
KRA102M
C1507
2.2/50
+5V
17
16
15
14
13
12
NC
S VIDEO
NC
A
1
2
3
4
5
BCDEFGH

Other manuals for Onkyo TX-SR503E

Related product manuals