EasyManua.ls Logo

OSCO SWG - POST MOUNTING INSTRUCTIONS FOR MODEL SWG; SIDE PLATE INSTALLATION

Default Icon
30 pages
Print Icon
To Next Page IconTo Next Page
To Next Page IconTo Next Page
To Previous Page IconTo Previous Page
To Previous Page IconTo Previous Page
Loading...
SWG OPERATOR INSTALLATION GUIDE
- 5 -
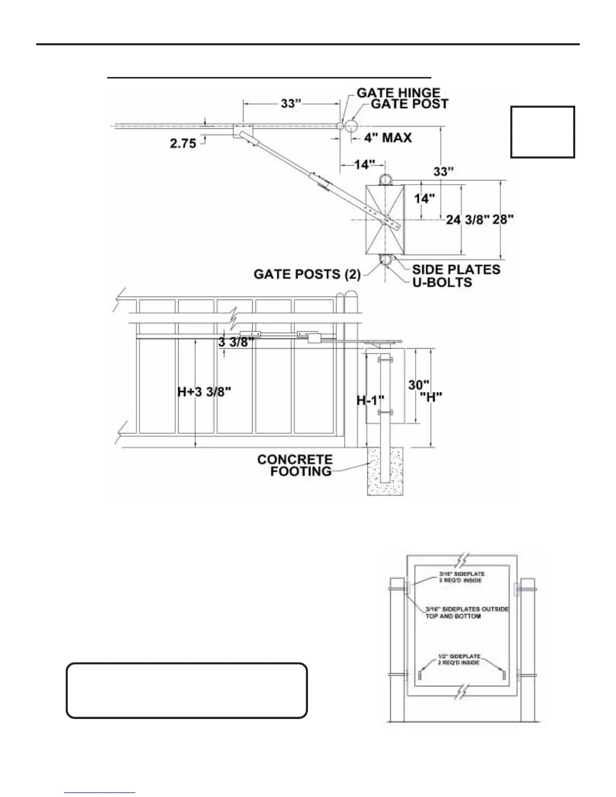
POST MOUNTING INSTRUCTIONS FOR MODEL SWG
23” SPACE REQUIRED BEHIND OPERATOR
FOR ARM CLEARANCE WHILE OPENING
IF NONSTANDARD MOUNTING IS NECESSARY,
CONSULT THE FACTORY
Use two 3 - 3 1/2” diameter galvanized posts and secure with concrete
footings as shown, length to be determined by local codes, frost line
depth, and soil conditions.
Attach the operator with the U-bolts, side plates and hardware pro-
vided. There are four side plates. The 3/16” side plates go on the in-
side top of the operator, while the two 1/2” side plates go on the inside
bottom (see the illustration at right). The operator should be positioned
at a level to allow the arm to be installed at mid-height on the gate. “H”
dimension can vary depending on gate construction. Make sure the
posts do not protrude above the operator cabinet.
Assemble the arm components as shown on page 7.
A SEPARATE PEDESTRIAN GATE IS REQUIRED FOR
ALL PEDESTRIAN TRAFFIC. THIS GATE MUST BE A
MINIMUM DISTANCE OF 7 FEET FROM THE
VEHICULAR GATE AND GATE OPERATOR
NOTE: Maximum gate opening
angle is approximately 95 degrees,
depending on gate width. If larger
opening angle is required, non-
standard positioning of the opera-
tor and modified articulating arms
will be required. Contact the fac-
tory for pricing and availability.
DOOR MUST
FACE AWAY
FROM
DRIVEWAY
SIDE PLATE INSTALLATION
3-05-19

Related product manuals