EasyManua.ls Logo

Palazzetti CLEMY - Page 76

Palazzetti CLEMY
84 pages
Print Icon
To Next Page IconTo Next Page
To Next Page IconTo Next Page
To Previous Page IconTo Previous Page
To Previous Page IconTo Previous Page
Loading...
76/80 cod. 004770261 - 11/2008 CLEMY
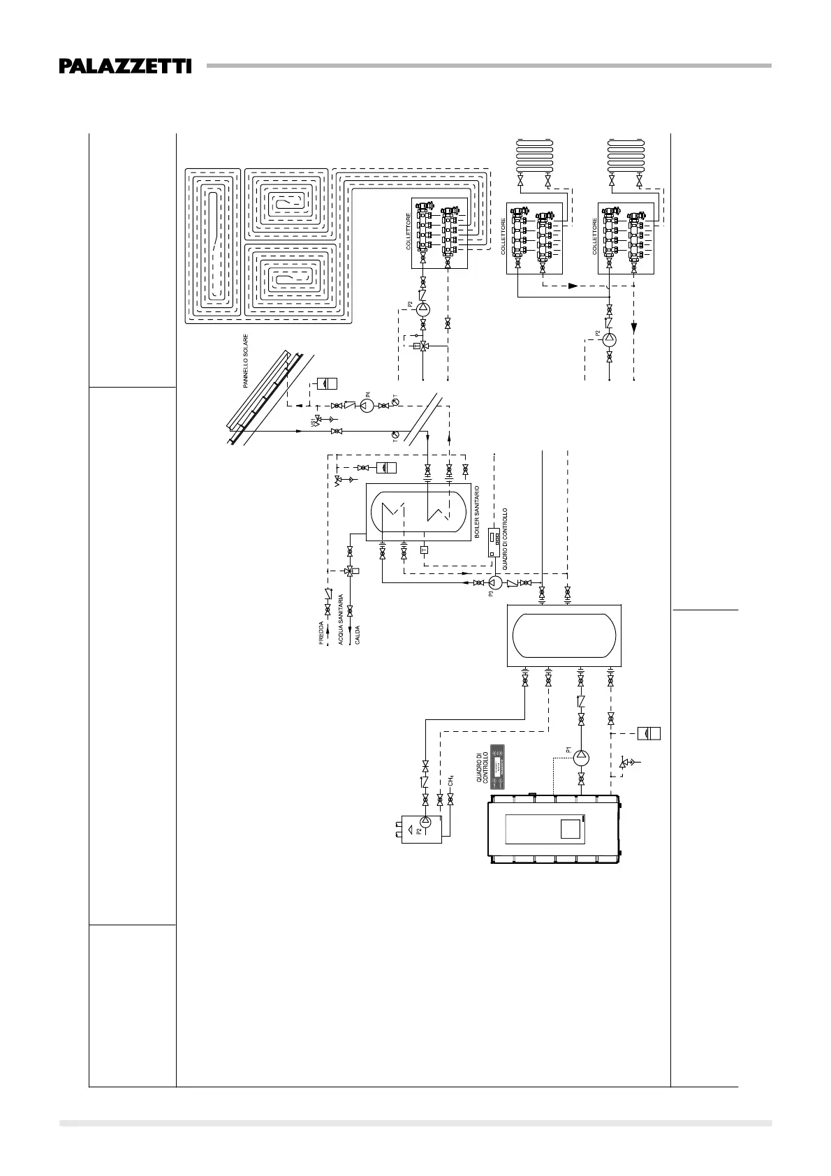
SCHEMI IDRAULICI - PLUMBING DIAGRAMS - HYDRAULISCHE SCHALTPLÄNE
IMPIANTO A VASO CHIUSO
Closed tank system
Anlage mit geschlossenem gefäss
Installation à vase fermé
Instalación con depósito cerrado
SCHEMA n° 3
Diagram No.3 - Plan Nr.3
Schéma n°3 - Esquema n°3
QUESTO SCHEMA E' PURAMENTE INDICATIVO NON HA QUINDI VALORE DI PROGETTO
THIS DIAGRAM IS ONLY AN EXAMPLE AND AS SUCH HAS NO PROJECT VALUE
DIESER PLAN GILT AUSSCHLIESSLICH ALS RICHTLINIE UND DIENT NICHT ALS PROJEKTPLAN
CE SCHÉMA EST À TITRE INDICATIF. IL N’A AUCUNE VALEUR DE PROJET
ESTE ESQUEMA ES MERAMENTE INDICATIVO Y POR TANTO NO VALE COMO PROYECTO
- Il comando alla pompa P1(integrata nella Clemy) e della
pompa P2 (integrata nella caldaia a gas) è dato dai rispettivi
termostati posizionati sull'accumulo termico.
- Alla pompa P3 il consenso è indiretto perché controllato da un
termostato del bollitore.
- The control of pump P1(built into Clemy) and pump P2 (built
into the gas boiler) is provided by the respective thermostats
located on the thermal storage tank.
- Consensus for pump P3 is indirect because it is controlled by a
thermostat in the boiler.
- Die Steuerung der Pumpe P1(in Clemy integriert) und der
Pumpe P2 (im Gasheizkessel integriert) erfolgt über die
entsprechenden Thermostate am Thermospeicher.
- Die Freigabe für die Pumpe P3 erfolgt indirekt, de sie durch ein
Thermostat des Kessels gesteuert wird.
- La commande à la pompe P1 (intégrée dans Clemy) et celle
à la pompe P2 (intégrée dans la chaudière à gaz) sont fournies
par les respectifs thermostats placés sur l'accumulation
thermique.
- Sur la pompe P3, la commande est indirecte car elle est
contrôlée par un thermostat du bouilleur.
- El comando a la bomba P1(integrada en la Clemy) y de la
bomba P2 (integrada en la caldera de gas) es dado por los
respectivos termostatos colocados en la acumulación
térmica.
- En la bomba P3 el consentimiento es indirecto porque está
controlado por un termostato del hervidor.
IMPIANTO DI RISCALDAMENTO
OCIMRET OLUMUCCA
IMPIANTO A “VASO CHIUSO” PER RISCALDAMENTO E LA PRODUZIONE DI
ACQUA SANITARIA IN PARALLELO AD UNA CALDAIA INTEGRATO A PANNELLI SOLARI
Diagram of “closed vessel”system for heating and hot water production, in parallel with a boiler
Anlagenschema mit “geschlossenem gefäss” für die brauchwasserbereitung parallel zu einem heizkessel
Schéma d’installation à “vase fermé” pour chauffage et production d’eau sanitaire en parallèle à une chaudière
Instalación con “depósito cerrado” para calefacción y producción de agua caliente sanitaria en paralelo a una caldera
CONTROL PANEL
BEDIENBLENDE
TABLEAU DE COMMANDE
CUADRO DE MANDOS
HEATING SYSTEM
HEIZANLAGE
INSTALLATION DE CHAUFFAGE
INSTALACIÓN DE CALEFACCIÓN
THERMAL STORAGE
THERMOSPEICHER
ACCUMULATION THERMIQUE
ACUMULACIÓN TÉRMICA
COLLETTORE
MANIFOLD
SAMMLER
COLLECTEUR
COLECTOR
CONTROL PANEL
BEDIENBLENDE
TABLEAU DE COMMANDE
CUADRO DE MANDOS
/HOT WATER BOILER/SANITÄRBOILER
CHAUFFE-EAU SANITAIRE/HERVIDOR SANITARIO
/COLD /KALT/FROIDE/FRÍA
ACQUA SANITARIA
SANITARY WATER
SANITÄRWASSER
EAU SANITAIRE
AGUA SANITARIA
HOT
WARM
CHAUDE
CALIENTE
PANNELLO SOLARE
SOLAR PANEL
SOLARPLATTE
PANNEAU SOLAIRE
PANEL SOLAR

Table of Contents

Related product manuals