EasyManua.ls Logo

Panasonic CS-C12DKU - Panasonic Air Conditioner Wiring Diagram

Panasonic CS-C12DKU
77 pages
Print Icon
To Next Page IconTo Next Page
To Next Page IconTo Next Page
To Previous Page IconTo Previous Page
To Previous Page IconTo Previous Page
Loading...
CS-C9DKU CU-C9DKU
CS-C12DKU CU-C12DKU
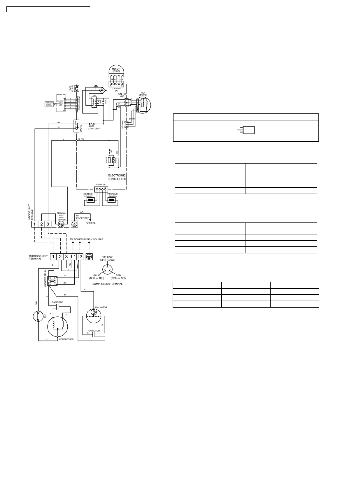
REMARKS
B : BLUE
BR : BROWN
BL : BLACK
GRY : GRAY
O : ORANGE
P : PINK
R : RED
W : WHITE
Y/G : YELLOW/GREEN
Power Supply Cord
Resistance of Indoor Fan Motor Windings
MODEL CS-C9DKU
CS-C12DKU
CONNECTION CWA921143
BLUE-YELLOW 82.4
YELLOW-RED 103.4
Note: Resistance at 68°F of ambient temperature.
Resistance of Outdoor Fan Motor Windings
MODEL CU-C9DKU
CU-C12DKU
CONNECTION CWA951244
BLUE-YELLOW 61.2
YELLOW-RED 53.4
Note: Resistance at 78.8°F of ambient temperature.
Resistance of Compressor Windings
MODEL CU-C9DKU CU-C12DKU
CONNECTION 2R135126A 2P19S126C-1A
C-R 0.938 0.613
C-S 2.611 2.106
Note: Resistance at 77°F/68°F of ambient temperature.
7 Wiring Diagram
14
CS-C9DKU CU-C9DKU / CS-C12DKU CU-C12DKU

Table of Contents

Related product manuals