EasyManua.ls Logo

Panasonic CS-C12DKU - Outdoor Fan Speed Control; Vertical Airflow Direction Control

Panasonic CS-C12DKU
77 pages
Print Icon
To Next Page IconTo Next Page
To Next Page IconTo Next Page
To Previous Page IconTo Previous Page
To Previous Page IconTo Previous Page
Loading...
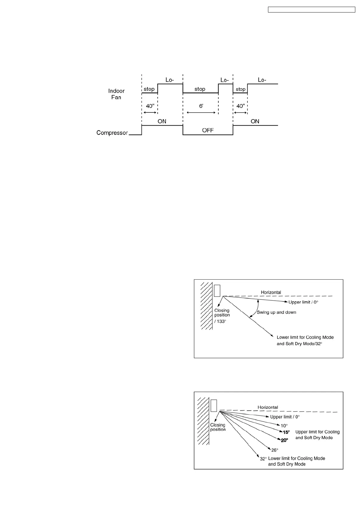
When the vertical airflow direction is set to Auto using the
remote control, the louver swings up and down as shown in
the diagram.
When stop operation using the remote control, the
discharge vent is reset, and stop at the closing position.
During Cooling operation or Soft Dry operation, indoor fan
motor may stop to rotate at certain periods. At that
condition, the louver will stop swinging and rest at the upper
limit.
When the vertical airflow direction is set to Manual using the
remote control, the automatic airflow is released and the
airflow direction louver move up and down in the range
shown in the diagram.
The louver can be adjusted by pressing the button to the
desired louver position.
When stop operation using the remote control, the
discharge vent is reset, and stop at the closing position.
Auto Fan Speed during Soft Dry operation:
1. Indoor fan will rotate alternately between off and Lo-.
2. At the beginning of each compressor start operation, indoor fan will increase fan speed gradually for deodorizing purpose.
3. When compressor at turn off condition for 6 minutes, indoor fan will start fan speed at Lo- to circulate the air in the room.
This is to obtain the actual reading of intake air temperature.
8.5.3. Manual Fan Speed Control
Manual fan speed adjustment can be carried out by using the Fan Speed selection button at the remote control.
There are 3 types of fan speed settings: Lo, Me, Hi.
8.6. Outdoor Fan Speed Control
There is only one speed for outdoor fan motor.
When the air conditioner is turned on, the compressor and the outdoor fan will operate simultaneously.
Likewise, both compressor and outdoor fan will stop at the same time if the unit is turned off.
8.7. Vertical Airflow Direction Control
8.7.1. Auto Control
8.7.2. Manual Control
23
CS-C9DKU CU-C9DKU / CS-C12DKU CU-C12DKU

Table of Contents

Related product manuals