EasyManua.ls Logo

Panasonic CS-CZ9SKE - 12. Installation Instruction; 12.1 Select the Best Location

Panasonic CS-CZ9SKE
118 pages
To Next Page IconTo Next Page
To Next Page IconTo Next Page
To Previous Page IconTo Previous Page
To Previous Page IconTo Previous Page
Loading...
26
12. Installation Instruction
12.1 Select the Best Location
12.1.1 Indoor Unit
Do not install the unit in excessive oil fume area
such as kitchen, workshop and etc.
There should not be any heat source or steam
near the unit.
There should not be any obstacles blocking the air
circulation.
A place where air circulation in the room is good.
A place where drainage can be easily done.
A place where noise prevention is taken into
consideration.
Do not install the unit near the door way.
Ensure the spaces indicated by arrows from the
wall, ceiling, fence or other obstacles.
Recommended installation height for indoor unit
shall be at least 2.5 m.
12.1.2 Outdoor Unit
If an awning is built over the unit to prevent direct
sunlight or rain, be careful that heat radiation from
the condenser is not obstructed.
There should not be any animal or plant which
could be affected by hot air discharged.
Keep the spaces indicated by arrows from wall,
ceiling, fence or other obstacles.
Do not place any obstacles which may cause a
short circuit of the discharged air.
If piping length is over the [piping length for
additional gas], additional refrigerant should be
added as shown in the table.
Table A
Model
Capacity
W
(HP)
Piping size
Std.
Length
(m)
Max
Eleva-
tion (m)
Min.
Piping
Length
(m)
Max.
Piping
Length
(m)
Addi-
tional
Refri-
gerant
(g/m)
Piping
Length
for
add.
gas
(m)
Indoor
A
min
(m
2
)
Gas Liquid
CZ9*** 1.0HP
9.52
mm
(3/8
")
6.35
mm
(1/4")
5
10 3 20 10 7.5 0.87
CZ12*** 1.5HP 10 3 20 10 7.5 0.93
Example: For CZ9***
If the unit is installed at 10 m distance, the quantity of
additional refrigerant should be 25 g .... (10-7.5) m x
10 g/m = 25 g.
A
min
= (M / (2.5 x (LFL)
(
5/4
)
x h
0
))
2
A
min
= Required minimum room area, in m
2
M
= Refrigerant charge amount in appliance, in kg
LFL
= Lower flammable limit (0.306 kg/m
3
)
h
0
= Installation height of the appliance (1.8 m for
wall mounted)
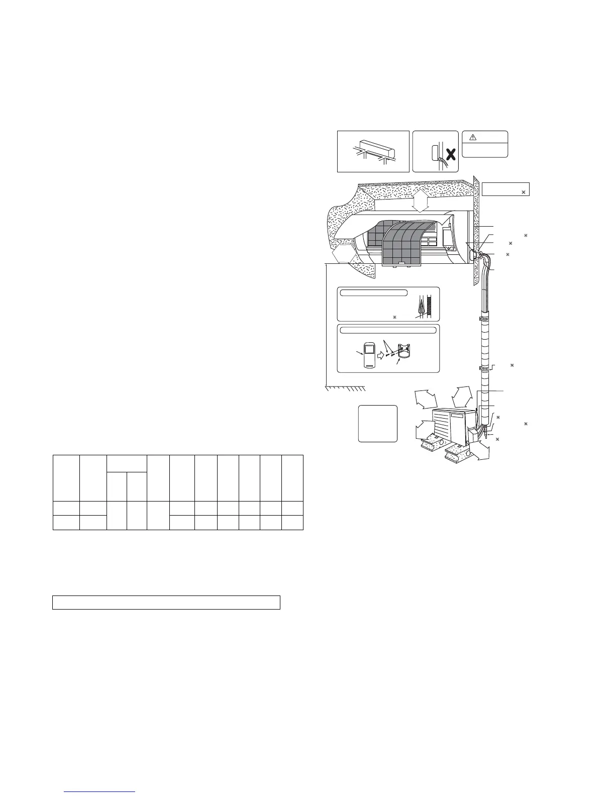
12.1.3 Indoor/Outdoor Unit Installation
Diagram
dn
e
b
ot ton noitne
t
tAnoitceri
d
gnipiP
up drain hose
(Front side)
Right
Right
Rear
Right
bottom
Left
Rear
Left bottom
Left
(Left and right are identical)
Installation plate 1
Sleeve (
)
Bushing-Sleeve (
)
Bend the pipe as
closely on the wall
as possible, but
be careful that it
doesn’t break.
Saddle (
)
Additional drain hose
(
)
Gas side piping (
)
Connection cable
Putty (
)
(Gum Type Sealer)
Liquid side piping
(
)
It is advisable to
avoid more than 2
blockage directions.
For better ventilation
& multiple-outdoor
installation, please
consult authorized
dealer/specialist.
Installation parts you
should purchase (
)
300 mm
or more
100 mm
or more
100 mm
or more
1000 mm
or more
65 mm
or more
WARNING
Flare connection only
at outside of building
50 mm
or more
Carry out insulation after
checking for gas leaks and
secure with vinyl tape.
Vinyl tape
Remote control holder 5
Remote control holder fi xing screws 6
Remote
control 3
Insulation of piping connections
Attaching the remote control holder to the wall
Power supply cord
2.5 m (min)
FLOOR
This illustration is for explanation purposes only.
The indoor unit will actually face a different way.

Table of Contents

Related product manuals