EasyManua.ls Logo

Panasonic CS-PC30EKF - Refrigeration Cycle Diagram; Cs-Pc30 Ekf Cu-Pc30 Ekf

Panasonic CS-PC30EKF
64 pages
Print Icon
To Next Page IconTo Next Page
To Next Page IconTo Next Page
To Previous Page IconTo Previous Page
To Previous Page IconTo Previous Page
Loading...
14
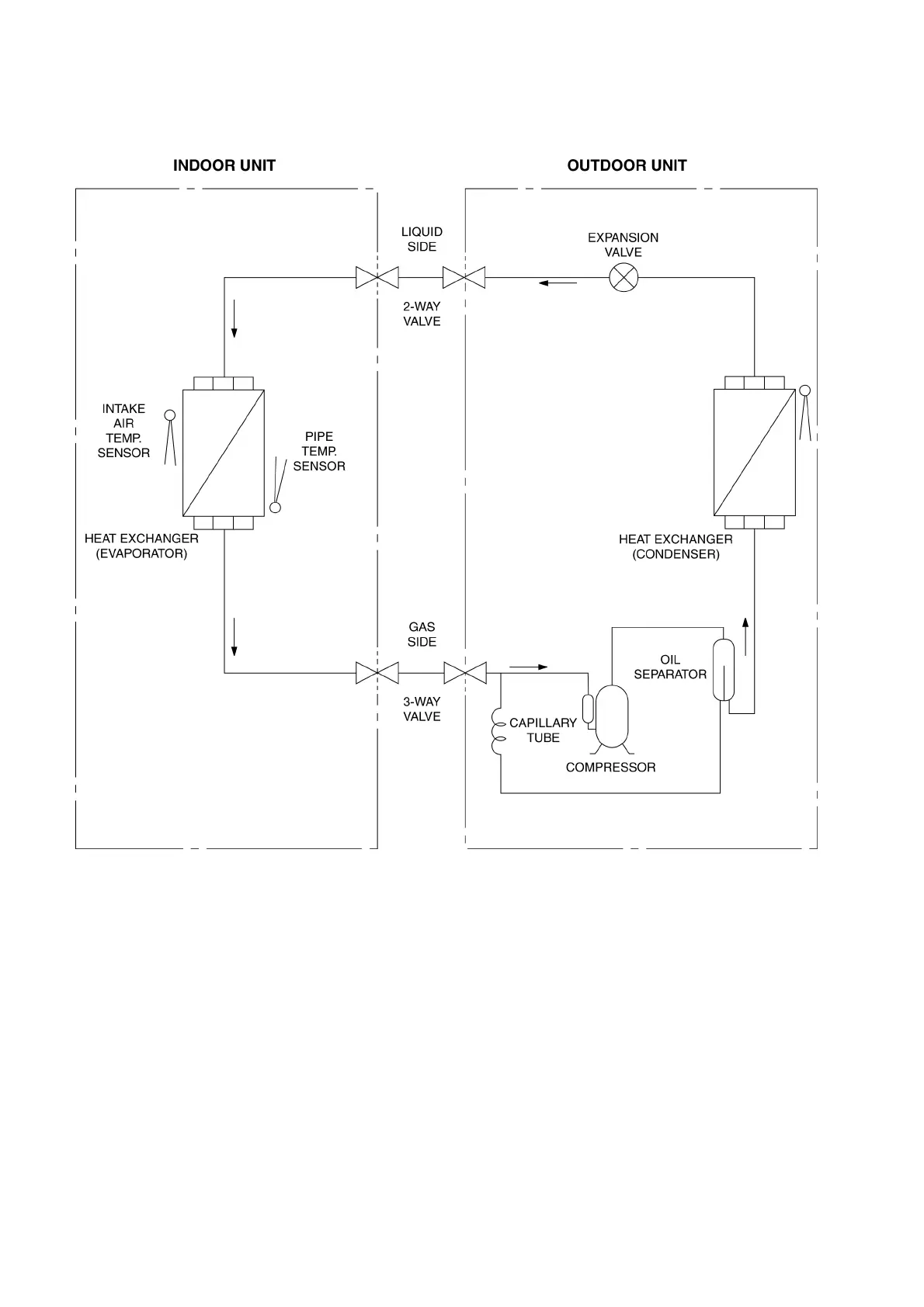
6 Refrigeration Cycle Diagram
6.1. CS-PC30EKF CU-PC30EKF

Related product manuals