EasyManua.ls Logo

Panasonic CS-RE12QKE

Panasonic CS-RE12QKE
104 pages
To Next Page IconTo Next Page
To Next Page IconTo Next Page
To Previous Page IconTo Previous Page
To Previous Page IconTo Previous Page
Loading...
30
11.2 Indoor Unit
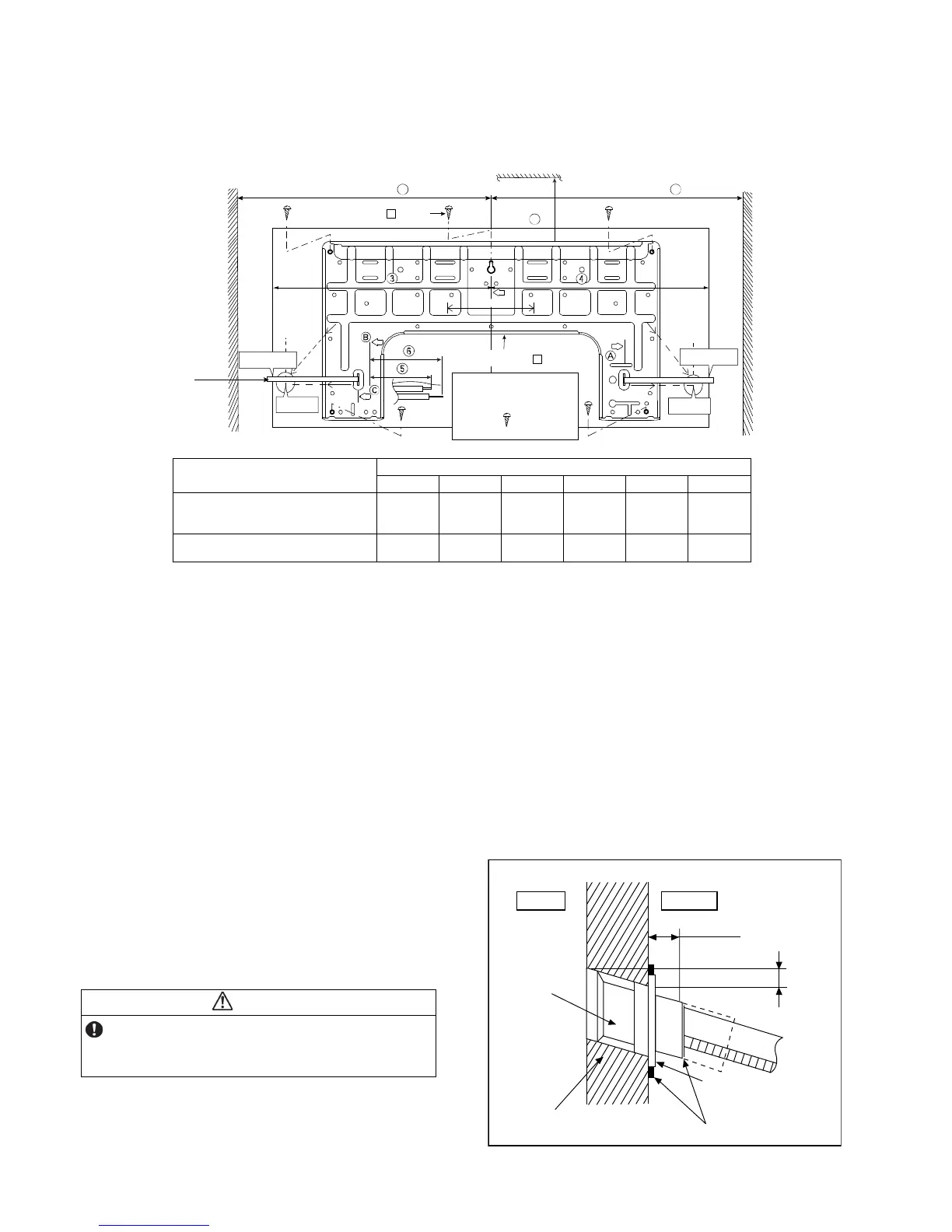
11.2.1 How to Fix Installation Plate
The mounting wall shall be strong and solid enough to prevent if from the vibration.
128 mm
DISTANCE
TO PIPE
HOLE
CENTER
128 mm
DISTANCE TO
PIPE HOLE
CENTER 128 mm
PIPE HOLE CENTER
PIPE HOLE
CENTER
Wall
Wall
Wall
Installation plate
screw
More than
Measuring
Tape
241.5 mm
128 mm
241.5 mm
128 mm
More
than
For best strength of
INDOOR unit installation,
it is highly recommended
to locate
” at 5
position as shown.
2
1
1 More than 1
2
Dimension
Model
RE9***,UE9***,YE9***
RE12***,UE12***,YE12***
RE15***
490 mm 82 mm 439 mm 432 mm 43 mm 95 mm
RE18***,UE18***
RE24***
590 mm 82 mm 539 mm 532 mm 169 mm 219 mm
The center of installation plate should be at more than at right and left of the wall.
The distance from installation plate edge to ceiling should more than .
From installation plate center to unit’s left side is .
From installation plate center to unit’s right side is .
B : For left side piping, piping connection for liquid should be about from this line.
: For left side piping, piping connection for gas should be about from this line.
1 Mount the installation plate on the wall with 5 screws or more (at least 5 screws).
(If mounting the unit on the concrete wall, consider using anchor bolts.)
o Always mount the installation plate horizontally by aligning the marking-off line with the thread and using a
level gauge.
2 Drill the piping plate hole with ø70 mm hole-core drill.
o Line according to the left and right side of the installation plate. The meeting point of the extended line is the
center of the hole. Another method is by putting measuring tape at position as shown in the diagram above.
The hole center is obtained by measuring the distance namely 128 mm for left and right hole respectively.
o Drill the piping hole at either the right or the left and the hole should be slightly slanting to the outdoor side.
11.2.2 To Drill a Hole in the Wall and
Install a Sleeve of Piping
1 Insert the piping sleeve to the hole.
2 Fix the bushing to the sleeve.
3 Cut the sleeve until it extrudes about 15 mm
from the wall.
CAUTION
When the wall is hollow, please be sure to use
the sleeve for tube assembly to prevent dangers
caused by mice biting the connection cable.
4 Finish by sealing the sleeve with putty or
caulking compound at the final stage.
15 mm
Putty or caulking compound
ø70 mm
through hole
Sleeve
for tube
assembly
Approx. 5 - 7 mm
Bushing for tube
assembly
Wall
OutdoorIndoor

Table of Contents

Other manuals for Panasonic CS-RE12QKE

Related product manuals