EasyManua.ls Logo

Panasonic CS-UE9RKE

Panasonic CS-UE9RKE
125 pages
To Next Page IconTo Next Page
To Next Page IconTo Next Page
To Previous Page IconTo Previous Page
To Previous Page IconTo Previous Page
Loading...
22
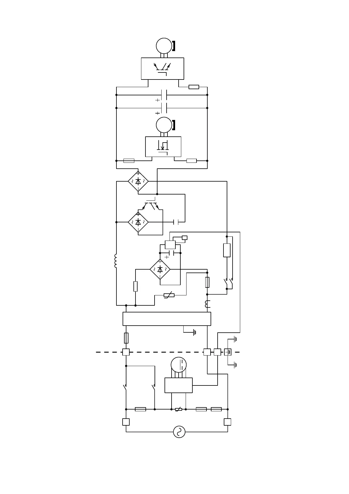
7.2 CS-UE18RKE CU-UE18RKE
1
FUSE103
RY-PWR
NTC
TH1
CT101
C103
4-WAYS
VALVE
FUSE101
IC19
MS
3 ~
MS
3 ~
RY-PWR
RY-PWR2
FUSE301
TEMP.
FUSE
TEMP.
FUSE
SC
L
U
M
(INDOOR UNIT) (OUTDOOR UNIT)
SC
2
3
N
SINGLE
PHASE
POWER
SUPPLY
230V
50Hz
NOISE FILTER
U
PTC1
PTC
RY-AC
FUSE104
REACTOR

Table of Contents

Other manuals for Panasonic CS-UE9RKE

Related product manuals