EasyManua.ls Logo

Panasonic CU-3Z52TBE - CU-4 Z68 TBE Installation Check Points

Panasonic CU-3Z52TBE
289 pages
Print Icon
To Next Page IconTo Next Page
To Next Page IconTo Next Page
To Previous Page IconTo Previous Page
To Previous Page IconTo Previous Page
Loading...
102
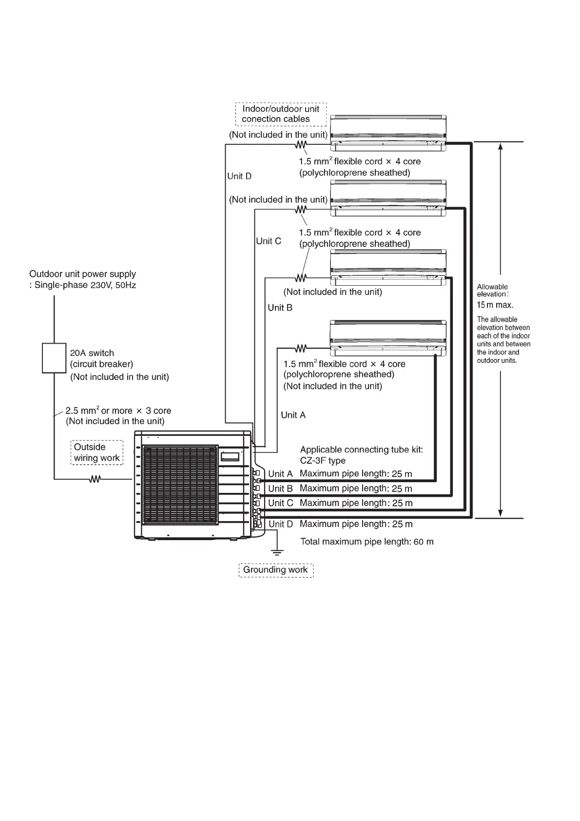
10.3 CU-4Z68TBE
10.3.1 Check Points
AMP Air Conditioning
www.ampair.co.uk | sales@ampair.co.uk

Related product manuals