EasyManua.ls Logo

Panasonic CU-E9GFE-2 - 5 Refrigeration Cycle Diagram; Cu-E9 Pfe Cu-E12 Pfe

Panasonic CU-E9GFE-2
68 pages
Print Icon
To Next Page IconTo Next Page
To Next Page IconTo Next Page
To Previous Page IconTo Previous Page
To Previous Page IconTo Previous Page
Loading...
17
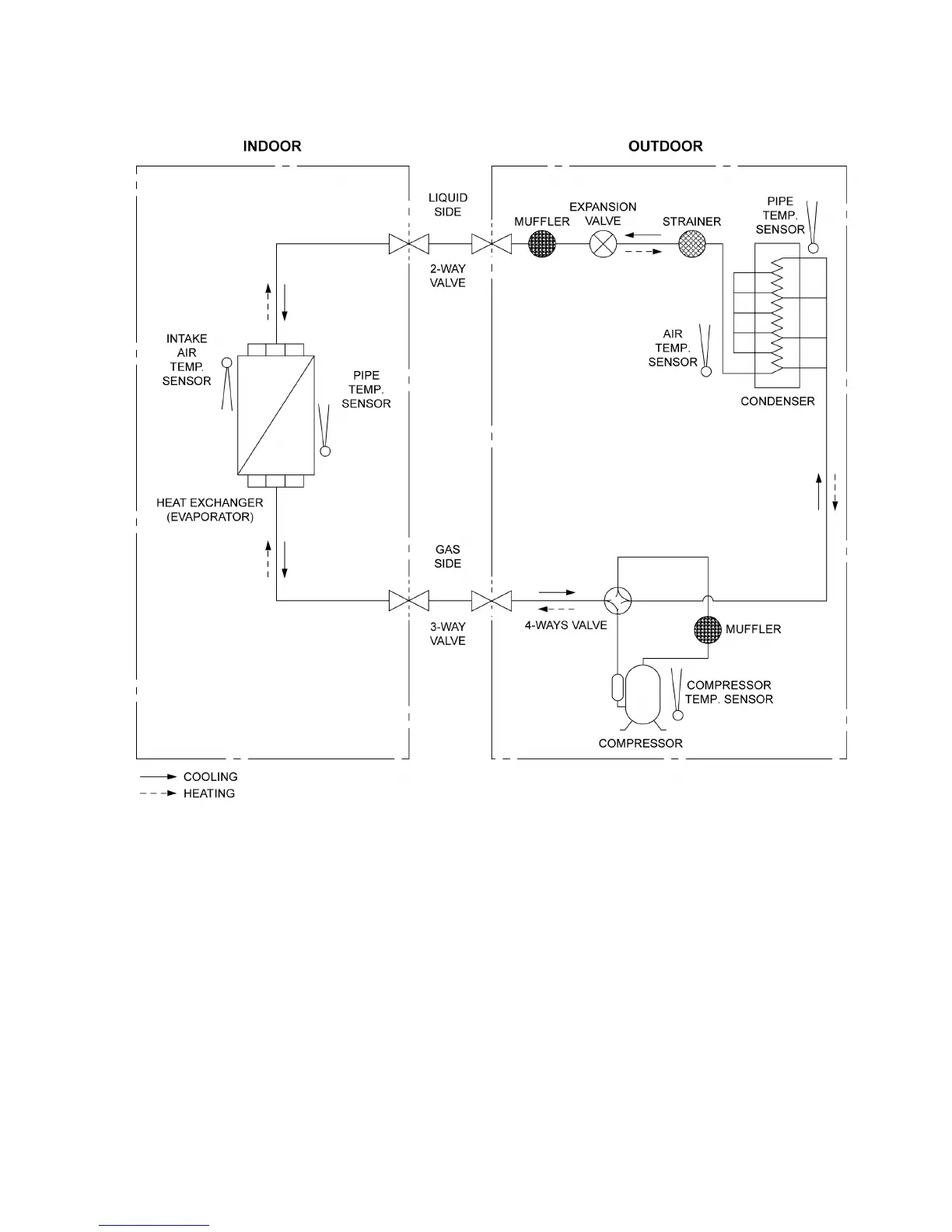
5. Refrigeration Cycle Diagram
5.1 CU-E9PFE CU-E12PFE

Other manuals for Panasonic CU-E9GFE-2

Related product manuals