EasyManua.ls Logo

Panasonic CU-E9GFE-2 - Page 31

Panasonic CU-E9GFE-2
68 pages
Print Icon
To Next Page IconTo Next Page
To Next Page IconTo Next Page
To Previous Page IconTo Previous Page
To Previous Page IconTo Previous Page
Loading...
31
3 Once refrigerant piping and drain piping connections are complete, fill in the gap of the through hole with
putty. A gap can lead to condensation on the refrigerant pipe, and drain pipe, and the entry of insects into the
pipes.
4 Attach the front panel and front grille in their original positions once all connections are complete.
10.1.3.2 Half concealed installation
Only item peculiar to this installation method are given here. See Exposed installation for additional instructions.
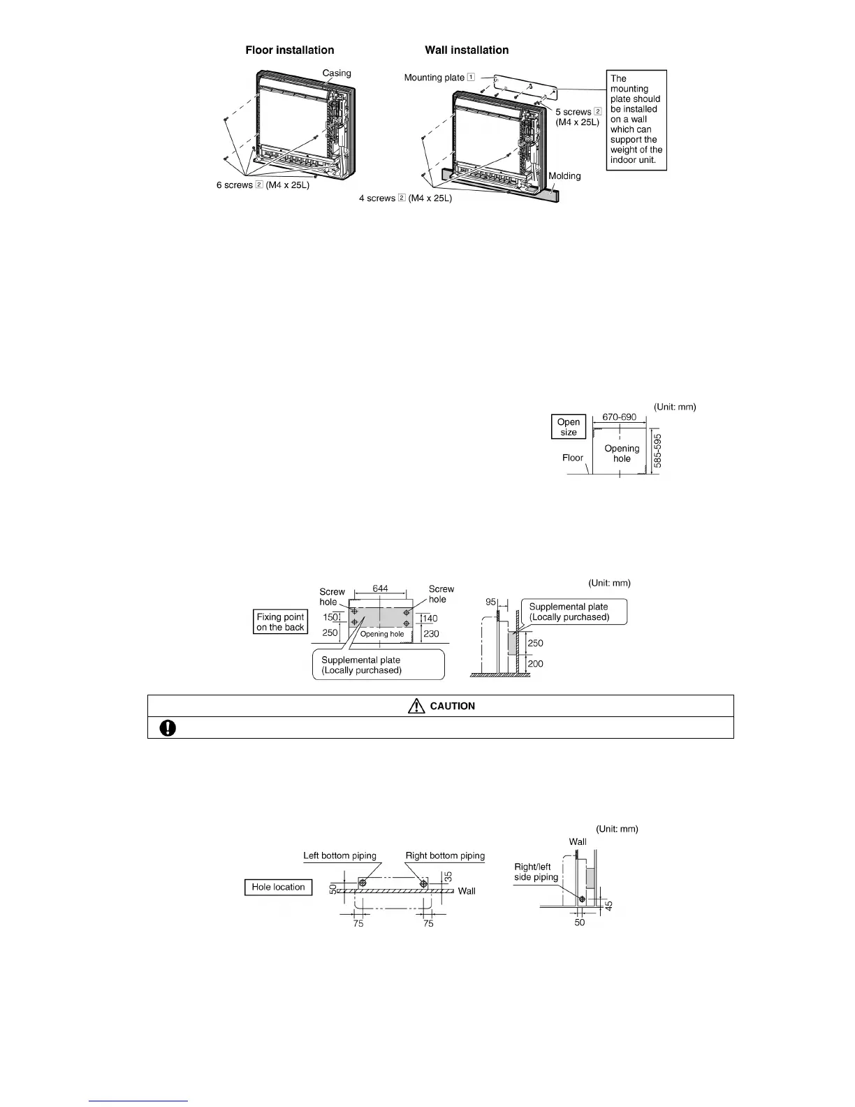
10.1.3.2.1 Wall hole
Drill a wall hole of the size shown in the illustration
on the right.
10.1.3.2.2 Installation of supplemental plate for attaching indoor unit
The rear of the unit can be fixed with screws at the points shown in the illustration as below. Be sure to install the
supplemental plate in accordance with the depth of the inner wall.
The supplemental plate for installing the main unit must be used, or there will be a gap between the unit and the wall.
10.1.3.2.3 Refrigerant piping
See Refrigerant piping under Exposed Installation.

Other manuals for Panasonic CU-E9GFE-2

Related product manuals