EasyManua.ls Logo

Panasonic CU-NE9NKE - 11.2 Indoor Unit Installation; Mounting the Installation Plate

Panasonic CU-NE9NKE
117 pages
Print Icon
To Next Page IconTo Next Page
To Next Page IconTo Next Page
To Previous Page IconTo Previous Page
To Previous Page IconTo Previous Page
Loading...
25
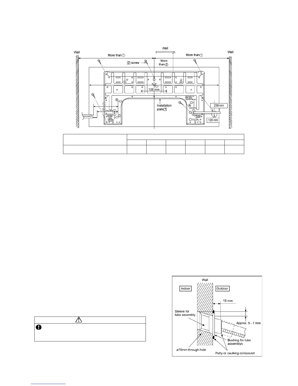
11.2 Indoor Unit
11.2.1 How to Fix Installation Plate
The mounting wall shall be strong and solid enough to prevent it from vibration.
Dimension
Model
c d e f g h
HE9/12***, NE9/12***, XE9/12***,
QE9/12***,WE9/12***, AE9/12***
485 mm 92 mm 435 mm 435 mm 127 mm 88 mm
The centre of installation plate should be at more than
1 at right and left of the wall.
The distance from installation plate edge to ceiling should more than
2.
From installation plate center to unit’s left side is
3.
From installation plate center to unit’s right side is
4.
B : For left side piping, piping connection for liquid should be about
5 from this line.
: For left side piping, piping connection for gas should be about
6 from this line.
1 Mount the installation plate on the wall with 5 screws or more (at least 5 screws).
(If mounting the unit on the concrete wall, consider using anchor bolts.)
o Always mount the installation plate horizontally by aligning the marking-off line with the thread and using
a level gauge.
2 Drill the piping plate hole with ø70 mm hole-core drill.
o Line according to the left and right side of the installation plate. The meeting point of the extended line is
the center of the hole. Another method is by putting measuring tape at position as shown in the diagram
above. The hole center is obtained by measuring the distance namely 128 mm for left and right hole
respectively.
o Drill the piping hole at either the right or the left and the hole should be slightly slanting to the outdoor
side.
11.2.2 To Drill a Hole in the Wall and
Install a Sleeve of Piping
1 Insert the piping sleeve to the hole.
2 Fix the bushing to the sleeve.
3 Cut the sleeve until it extrudes about 15 mm
from the wall.
CAUTION
When the wall is hollow, please be sure to use the
sleeve for tube assembly to prevent dangers
caused by mice biting the connection cable.
4 Finish by sealing the sleeve with putty or
caulking compound at the final stage.

Table of Contents

Related product manuals