EasyManua.ls Logo

Panasonic CU-V18CKE - Electronic Circuit Diagram; Schematic Diagram 1;3

Panasonic CU-V18CKE
77 pages
Print Icon
To Next Page IconTo Next Page
To Next Page IconTo Next Page
To Previous Page IconTo Previous Page
To Previous Page IconTo Previous Page
Loading...
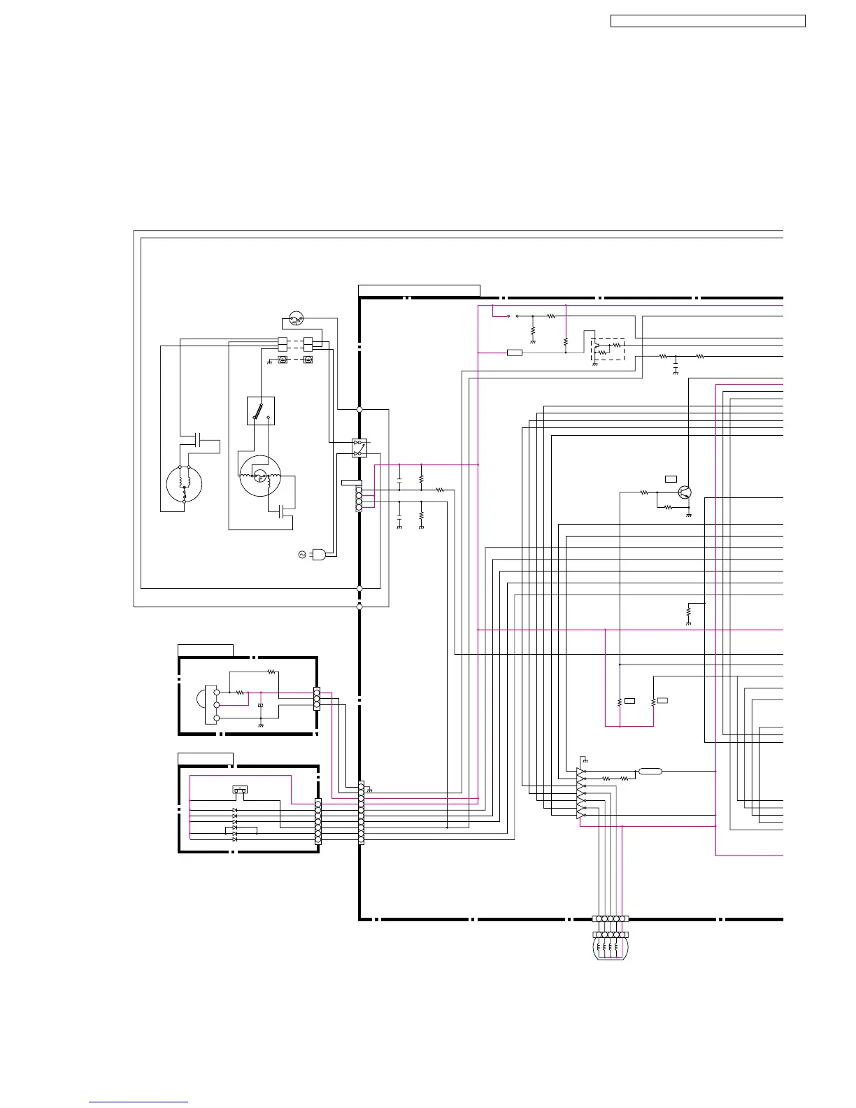
19 Electronic Circuit Diagram
SCHEMATIC DIAGRAM 1/3
CS-V18CKE CU-V18CKE
CS-V24CKE CU-V24CKE
1
2
TEMPERATURE
FUSE
TO OUTDOOR
POWER SUPPLY
TEST
WHT AC01
(WHT)
BLK AC02
(BLK)
1
2
3
4
WHT AC03
(WHT)
C13
0.01
R58
10k
C22
0.01
R68
10k
R59 1k
RECEIVER
1
3
(MX-3)
INDICATOR
CN-RCV
2
(PH)
CN-DISP
6
5
4
3
2
1
2
CN-DISP
3
4
5
6
7
8
9
10
7 1
D101
POWER(GRN)
ION2(GRN)
ION1(GRN)
QUIET(ORG)
TIMER(ORG)
POWERFUL(ORG)
R202
R203
C201
22
16V
1k
1k
D102
D103
D104
D105
D106
12
Auto
(KR-10)
R54 1k
R48
10k
BZ01
BZ
e
c
b
Q001
R55
1k
R12 1k R35 5.1k
C02
0.01
Q02
R64
6.2k
R63
6.2k
1
2
3
4
5
6
7
9
8
16
15
14
13
12
11
10
CN-STM1
12345
12345
(ZH5)
VERTICAL
IC05
A52A2003GR
IC06
A52A2003GR2
R08 R028
43 /2W 43 /2W
RY-PWR
R06
24k
RY-PWR
ELECTRONIC CONTROL UNIT
1
2
YELLOW
BLUE
BLUE
ORANGE
BLUE
BLUE
COMPRESSOR
RED
RED
CAPACITOR
CAPACITOR
YELLOW
C
HL
BROWN
or YELLOW
THERMOSTAT
FAN
MOTOR
IC201
3
1
2
+
SW101
HA
(XH4)
R66
1k
R26
1k
c
b
e
71
CS-V18CKE CU-V18CKE / CS-V24CKE CU-V24CKE

Table of Contents

Related product manuals