EasyManua.ls Logo

Panasonic DMR-E75VP - Page 146

Panasonic DMR-E75VP
235 pages
Print Icon
To Next Page IconTo Next Page
To Next Page IconTo Next Page
To Previous Page IconTo Previous Page
To Previous Page IconTo Previous Page
Loading...
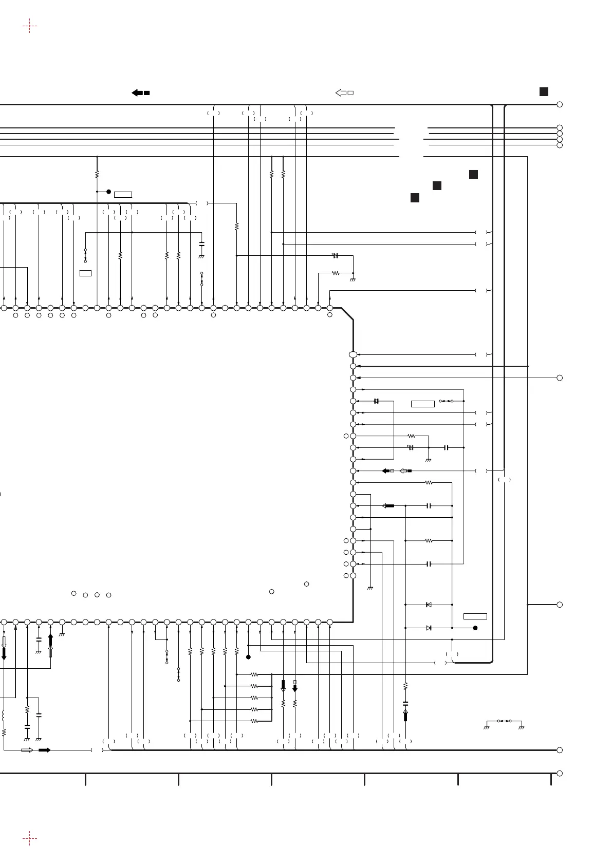
22.4. Syscon/Servo/Timer Section (Main P.C.B.(1/3)) Schematic Diagram (S)
H
L
H
H
H
H
H
H
H
H
H
H
H
H
H
H
H
L
H
H
L
H
H
H
H
L
L
L
H
H
L
H
H
L
L
L
AUDIO MAIN SIGNAL PATH IN REC MODE AUDIO MAIN SIGNAL PATH IN PLAYBACK MODE
C6020 1000P
CPN C IN DMV
K6004 0
A16
A17
A18
K6098
I19
I18
I17
I16
I15
I14
I13
I12
I11
I10
I9
I8
I7
I6
I5
I4
I3
I1
A38
A33
A55
K6606 0
C2051 6V22
A54
A36
A37
A47
A22
A45
A46
A31
A30A53
A52A51
A48
A20
A6
A8
A23
A24
A25
A26
A34A28A29
A32
A19
A50
A43
V OSD GND
V SYS GND
A48TRK ENVV
A44
A43
A42
A38
A46
A7
A45
A47
A37
A36
A34
A33
A32
A31
A30
A29
A28
A26
A25
A24
A23
A22
A20
A19
A18
A17
A16
A15
A14
A13
A12
A11
A9
A8
A7
A6
L6002
(RESET)
< X SW15.5V >
< AD 5V >
A5
A4
A1
TEST2
TL6010
10K
R6004
PB CTL
CAP FG
TW6002
TW6001
A V VTR P ON
A
A
HSW
R6011 18K
R6019 10K
VPP
10K
R7910 (FL MUTE)
(FL MUTE)
2SD132800L
Q7903
UNR511100L
QR7901
P6601
FL DRIVE P.C.B.
TO PP7503
F-
F+
VP
GND
GND
8
7
3
4
2
6
5
1
V
V
V
A
V
A
A
A
A
A
CPS DET
VIDEO L2 IN
AUDIO L2 IN L
L2 DET
AUDIO L2 IN R
CPN C IN2
CPN Y IN2
CPN C IN2
GND
VIDEO L2 IN
PS33001
FRONT JACK P.C.B.
TO PP4801
CPN Y IN2
GND
AUDIO L2 IN R
L2 SW
AUDIO L2 IN L
VTR KEY2
IR
VTR KEY1
5V AD
8
12
9
7
10
11
3
4
2
5
1
6
V KILLER
< ANA5V >
< ANA5V >
D
V Y IN DMV
V
A
A
DGND
ADC R
ADC L
19
18
17
16
15
14
ADC L
ADC R
DGND
DGND
RPROUT DM
GPYOUT DM
CPNCIN DM
P6002
(DIGITAL I/F SECTION)
POWER AND DIGITAL I/F P.C.B.
TO P31902
BPBOUT DM
GND
YOUT DM
GND
COUT DM
GND
V YIN DM
GND
GND
MGND
X SW15.5V
13
12
11
10
9
8
7
6
1
5
2
4
3
< X SW15.5V >
C
FL MUTE
P6005
(DIGITAL I/F SECTION)
POWER AND DIGITAL I/F P.C.B.
TO P31905
AD5V
P SAVE
VTR CS
GND
REMOCON
REG.5.2V
7
6
1
5
2
4
3
SCURVE1
X SW13V
VIDEO MAIN SIGNAL PATH IN PLAYBACK MODEVIDEO MAIN SIGNAL PATH IN REC MODE
< X SW 13V >
(SYSCON/SERVO/TIMER)
< AD 5V >
< X SW 13V >
< X SW 5.8V >
< X SW 5.8V >
BIL/ST/MO
INSEL B
A INSEL B
TW2001
0.01
C6010
G
TW1004
0.01
C6011
JST.CLOCK
W
VTR TIMER CS
EEPROM CS.
T-PHOTO
TL2015
J
I
H
G
E
B
A
R6007 18K
C6005 50V3.3
R6006 18K
TW6008
R6109 220
R6024 220
R6008 2200
TAB SW
SAFETY
K0C111A00003
S1531
TW2002
3900P
C2054
16V10
C2053
C2001 33P
C2055 0.1
R2002 1M
B0AAED000003
D2001
B0AAED000003
D2002
1
C2003
3900
R2001
R2551 10K
R2561 1K
TL6001
R6107 220
R6106 220
R6105 220
R6104 220
R6108 220
R6026 10K
R6027 10K
R6009 10K
R6010 10K
C6014 1000P
1000P
C6016
0.033
C6015
2200
R6017
180
R6023
1.5u
L6004
560P
C6017
1M
R6013
470
R6012
1
C6013
R6001 1K
0.01
C6009
470P
C6008
82P
C6007
100P
C6006
5.6u
L6001
0.01
C6103
0.1
C6101
TL6002
3300
R6201
TL6004
BATTERY
BACK-UP
CR2354-1GUF
B7751
1K
R7751
MA2C700A0F
D7752
6V330
C7752
V
P6001
(DIGITAL I/F SECTION)
POWER AND DIGITAL I/F P.C.B.
TO P31901
GND
SCURVE0
GND
GND
ANA5V
IECOUT
X SW13V
X SW5.8V
X SW5.8V
R6028 10K
ART V H N
V
V
DVD OUT
A INSEL A
V DVD IN
A FM MUTE
V BIAS
A ABS NORMAL
V D REC
AUDIO HEAD SWA
V VIDEO HEAD SW
R6002 1KC6002 22P
C6001 18P
(12MHz)
H0D120500009
X6001
R6003 22KC6004 22P
C6003 18P
(32KHz)
H0A327200064
X6002
B0AAED000003
D7754
B0AAED000003
D7753
B0JACE000001
D7751
V FSC
V OSD VIDEO IN
AVRV
VREG5V
C2CBJG000368
IC6001
13
12
11
10
9
8
7
6
5
4
3
2
1
1110987654321
SQPBDET
GND(OSC)
POS.SW3
POS.SW2
POS.SW1
RESET
32KHz IN
32KHz OUT
5V(D)
12MHz IN
12MHz OUT
S-DUB
S-VHS
32K.START
LC.OSC IN
LC.OSC OUT
GND(NUB)
FSC.LPF
OSD FSC IN
GND(OSD)
OSDVIDEO1
KILLER
OSD VIDEO OUT
VREG+5V
HLF
VHOLD
OSD VIDEO2
GND
DTOH LED
ADV CPN
OSD P EP
OSD PULSE CHL
VBI2
VBI1
EEPROM OUT
EEPROM IN
EEPROM CLOCK.
CAP R/F
VTR S OUT
VTR S IN
VTR S CLOCK
IIC CLK
IIC DATA
256Hz
POWER ON
CAP ET
CYL ET
POWER FAILER
S-REEL PULSE
T-REEL PULSE
POS.SW4
FM MUTE
S TAB
BIAS
PBx5
AVR
ABS NORMAL
TBC MODE 0
TEST2
D.REC
AUDIO H SW.
VIDEO H SW.
V TO H LED
REMOCON
ART. V/H/N
CURRENT LIMIT
TRACKING ENVE
S-PHOTO
VTR KEY2
VTR KEY1
DVD IN WIDE
INSEL A
CODE
DVD OUT
CPS DET
5V(AD)
5V(A)
PB.CTL.OUT
CTL.AMP REF.
CTL.HEAD(+)
CTL.HEAD(-)
S-CAS
IREF
OREF
CYL.PFG
GND(A)
CAP FG AMP IN
CAP FG AMP OUT
LOADING
UNLOADING
EXCEPT FF/REW
H TO D LED
OUT
VDD
GND
807978777675747372717069686766656463626160595857565554535251
50
49
48
47
46
45
44
43
42
41
40
39
38
37
36
35
34
33
32
31
302928272625242322212019181716151413121110987654321
100
99
98
97
96
95
94
93
92
91
90
89
88
87
86
85
84
83
82
81
5
4
1
2
3
(RESET)
C0EBH0000172
IC6201
CTL HEAD (+)V
CTL HEAD (-)V
5
4
3
2
1
K0ZZ00000598
S1532
MODE SW
G
F
E
D
C
B
A
DMR-E75VP
Syscon/Servo/Timer Section (Main P.C.B.(1/3) Schematic Diagram (S)
C
D
C
E
S:Syscon/Servo/Timer Section(Page: )
V:Video Section(Page: )
A:Hi-Fi Audio Section(Page: )
83

Related product manuals