EasyManua.ls Logo

Panasonic DMR-E75VP - Page 147

Panasonic DMR-E75VP
235 pages
Print Icon
To Next Page IconTo Next Page
To Next Page IconTo Next Page
To Previous Page IconTo Previous Page
To Previous Page IconTo Previous Page
Loading...
L
L
L
L
H
H
14
22u
L7902
WHEN REPLACING ANY OF THESE COMPONENTS.ONLY THE SAME TYPE.
COMPONENTS IDENTIFIED WITH THE MARK HAVE THE SPECIAL CHARACTERISTICS FOR SAFETY.
IMPORTANT SAFETY NOTICE:
VAUNREG 6V
A42
12
K5H2022A0011
IP6301
DVD AUDIO EE SIGNAL DVD VIDEO EE SIGNAL
MAZ4160NMF
D2502
1800
R2503
I17I18I14I13
I12
C2518 0.01
V
V
I1
I3
I16
I4
I5
I10
I9
I19
I11
I15
I7
I8
I6
A54
A51
V
V
A4
A5
A11
A12
A13
A14
A15
A1
A56
MAZ4300NMF
D7906
A44A50A9A56
S PHOTO
T PHOTO
S-REEL
T-REEL
< REG.5V >
A55
A52
A53
< REG.5V >
< X SW15.5V >
< X SW 13V >
< ANA5V >
16V
50V56
C7909
39K
R7909
MA2C18500E
D7905
MA2C18500E
D7904
100
R7907
0.01
C7908
4700
R7904
10V100
C7907
DVD P OFF A
6V47
C6303
VSQPB DET
CAP TL
22K
R7905
22K
R7906
2SD21770SA
Q7901
(POWER SAVE)
(POWER SAVE)
2SD1819A0L
Q7902
100u
L7901
3300
R7903
0.047
C7906
33K
R7902
16V220
C7905
0.1
C7904
B0AAGM000007
D7902
50V56
C7910
50V10
C7902
MAZ4220NMF
D7901
0.01
C7901
(DC/DC CONVERTER)
ETS13TB159AP
T7901
R7901 330
0.1
C7903
J0JKB0000028
LB7901
R7908
AUNREG 38V
B0JAME000025
D7903
10
9
7
65
4
3
2
1
< ANA5V >
< X SW 5.8V >
21
34
:ON
REG
VSYNC DET
L123 SW DET
V
V
SLICER VIDEO
MUTE V
SLICER VIDEO
19
18
17
16
15
L123 SW DET
DVD P OFF
SYNC DET
I2C5CK
VTR S CLK
P6003
(DIGITAL I/F SECTION)
POWER AND DIGITAL I/F P.C.B.
TO P31903
I2C5DT
MUTE
AU5V
MIX L OUT DM
MIX R OUT DM
VTR S IN
GND
VTR S OUT
AUGND
13
8
12
9
7
10
11
3
4
2
5
1
6
R6309 2700
REF GND A
AAU5V
VIECOUT
AX SW13V
X SW5.8V A
VANA5V
AAUDIO MIX L OUT DM
AAUDIO MIX R OUT DM
AU GND A
VRPROUT DM
BPBOUT DM V
VGPYOUT DM
YOUT DM V
VCOUT DM
ASCURVE 1
SCURVE 0 A
AI2C5DT
I2C5CK A
D
CYLINDER MOTOR
MAIN COIL1
MAIN COIL2
MAIN COIL3
IC
HALL
< X SW15.5V >
< REG.5V >
< X SW15.5V >
< X SW15.5V >
< X SW 13V >
12P
C6113
12P
C6112
TL24
TL23
16V22
C2509
TW1343
0.01
C2519
25V220
C2571
6V220
C2502
0.1
C2501
6V47
C6308
47K
R2562
TL2502
R2563 1K
0.056
C2562
0.056
C2561
P2571
TO CAPSTAN UNIT
GND8
CAP R/F
CAP ET
CURR LIMIT
GND
CAP FG1
UNREG+15V
5V
7
6
5
4
3
1
2
LOADING MOTOR
P1531
1
2
I
J
H
G
A
B
C
E
AREG12V
MAZ4056NHF
D6306
0.01
C6302
2SD0601A0L
Q6305
(REG.+5V)
V
V
V
V
V
V
A
A
PG(+)
PG(-)
GND
COM
M3
M2
M1
P2501
TO CYLINDER UNIT
IIC DATA
IIC CLK
VBI1
VBI2
COM MUTE
OSD VIDEO OUT
7
6
5
4
3
2
1
LOADING M(-)
LOADING M(+)
LOADING M(+)
LOADING M(-)
B0AAML000002
D2501
B3EA00000072
D1501
SENSOR
PNB2302M01VT
Q1501
PNB2302M01VT
Q1502
0.1
C6111
27K
R1502
27K
R1501
150
R1503
CYLINDER MOTOR DRIVE
LOADING MOTOR AND
22212019181716151412 13
100
R2565
100
R2564
ORDERING.WHEN YOU ORDER A PART,PLEASE REFER TO PARTS LIST.
NOTE:DO NOT USE ANY PART NUMBER SHOWN ON THIS SCHEMATIC DIAGRAM FOR
COMPOSER
PG/FG
AMP
DIFFERENTIAL
AMP
DIFFERENTIAL
AMP
DIFFERENTIAL
SELECTOR
GENERATOR
SIGNAL
DRIVE
MOTOR
PRE-DRIVE
DRIVE
MOTOR
AMP AMP
RRE-DRIVE
LOGIC
CONTROL
TSD
LOGIC
CONTROL
STARTING
SWITCH
SOFT
CIRCUIT
PREVENT
SATURATION
LOWER
M3 RNF M2 M1 VM COM VCC PFG PG OUT PG- PG+ EC
VM2 OUT1 L GND OUT2 F IN R IN VG GND CST CT1 CT2 PCI CNF
C1AB00001767
IC2501
2725 24 23 22 21 20 19 18 17 16 15 14
26123456 78910111213
220
R2516
220
R2514
220
R2515
0.1
C2512
0.1
C2510
0.1
C2511
1.5
R2502
1.2
R2501
C2513 1R2521 1K
1800P
C2508
18K
R2520
0.056
C2552
0.056
C2551
10K
R2552
0.22
C2506
0.022
C2504
0.022
C2505
0.01
C2515
1000P
C2507
CYLINDER SERVO PHASE LOOPCYLINDER SERVO SPEED LOOP
(REG.+5V)
C0CBCDC00020
IC6301
27K
R1511
27K
R1512
4
B3NAA0000073
IC1512
(S-REEL SENSOR)
2
1
3
4
3
1
2
(T-REEL SENSOR)
B3NAA0000073
IC1511
120
R1513
CAPSTAN SERVO PHASE LOOPCAPSTAN SERVO SPEED LOOP
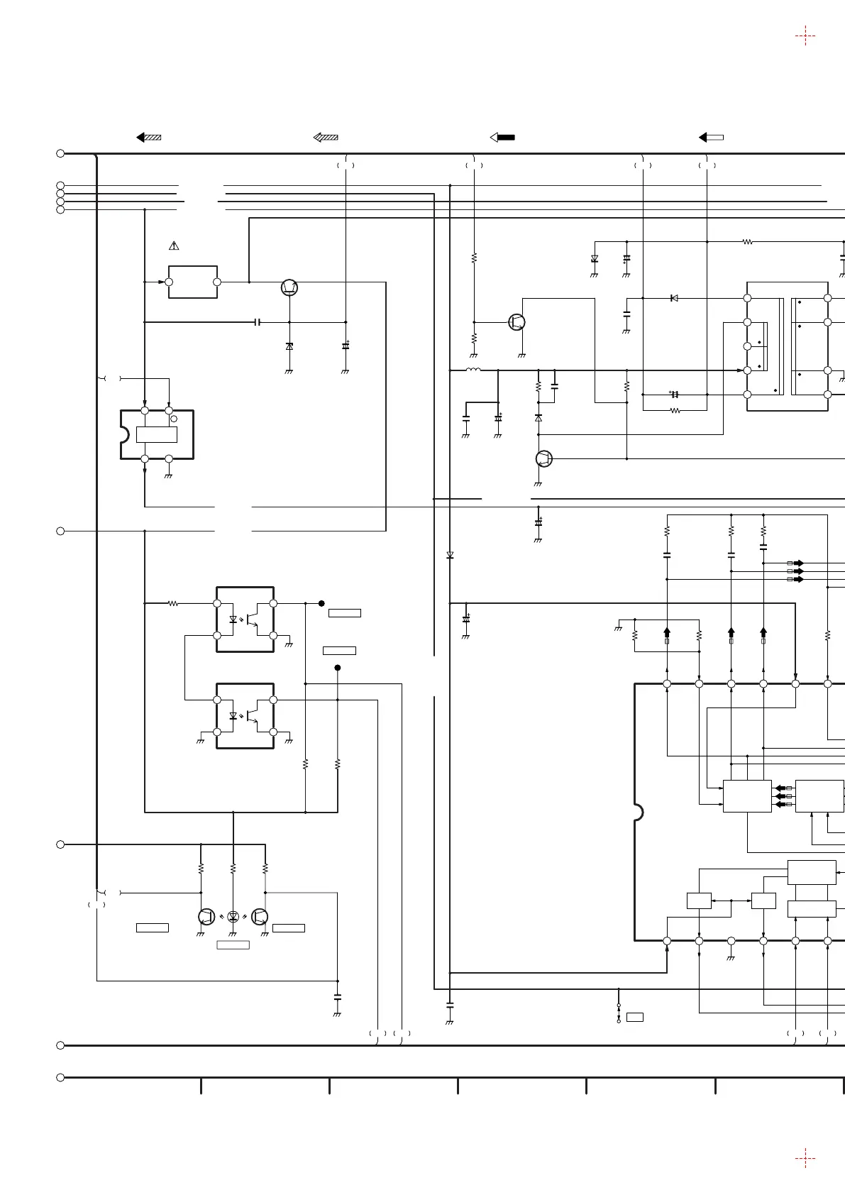
DMR-E75VP
Syscon/Servo/Timer Section (Main P.C.B.(1/3) Schematic Diagram (S)
DMR-E75VP
Syscon/Servo/Timer Section
(Main P.C.B.(1/3)
Schematic Diagram (S)
D
C
E
S:Syscon/Servo/Timer Section(Page: )
V:Video Section(Page: )
A:Hi-Fi Audio Section(Page: )
C
84

Related product manuals