EasyManua.ls Logo

Panasonic DMR-EH55EC

Panasonic DMR-EH55EC
173 pages
To Next Page IconTo Next Page
To Next Page IconTo Next Page
To Previous Page IconTo Previous Page
To Previous Page IconTo Previous Page
Loading...
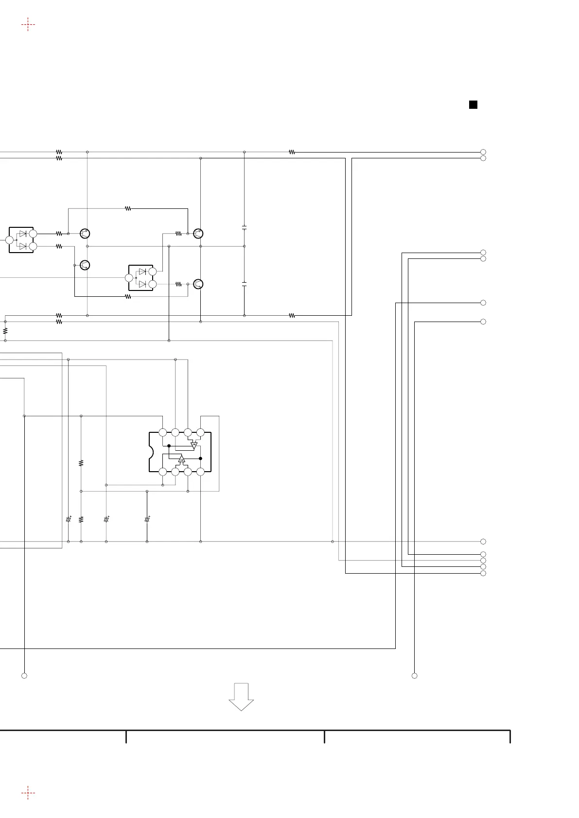
13.7. A/V I/O (1/4) Section (Main P.C.B. (2/4)) Schematic Diagram (AV)
1
2
3
4
5
6
7
8
9
10
11
A B
3
1
2
4
5
C0DBAHD00013
IC4011
X_SW_5R8V
C4064
16V22
R4080 100
47K
R4074
AU_GND
AU_5V
67 5
2 43
8
1
C0ABBB000118
IC4012
D0HB103ZA002R4066
C4055 0.1[ZF]
ECQV1H104JL3
C4059
F2A1C471A628
C4056
QR4004
UNR521100L
R4004
10K
QR4003
UNR521100L
UNR511100L
QR4002
XTMUTE
XDMUTE
P_OFF_L
X_SW_5R2V
MA2C165001VT
D4001
GND
P50
C4062 16V220
R4067
D0HB103ZA002
C4070 16V220
16V220C4072
R4090 120
C4082 ECJ2VC1H561J
D0HB682ZA002
R4046
D0HB123ZA002
R4055
G_MIXLOUT_A
16V22
C4033
R4077 100
2SD132800L
Q4007
R4002
$[ERJ3GEY0R00V]
2SD132800L
Q4006
R4078
2700
R4079
2700
2SD132800L
Q4008
R4088
2700
33P[22]
C4060
C4092 16V220
R4071 47K
67 5
2 43
8
1
IC4009
C0ABBB000216
3
1
2
D4005
MA3Z142D0LG
R4076 820
16V22
C4063
R4093 120
ECJ1VF1C104Z
C4065
C4061
ECJ1VF1C104Z
R4081 820
R4001
$[ERJ3GEY0R00V]
33P[22]
C4057
G_MIXROUT_A
R4057
D0HB123ZA002
16V22
C4034
D0HB682ZA002
R4047
R4089
2700
2SD132800L
Q4009
C4083 ECJ2VC1H561J
3
1
2
D4006
MA3Z142D0LG
(MA142WA-TX)
(2SD1328-TX)
IN1+
VEE
(MA142WA-TX)
IN2+
(2SD1328-TX)
(2SD1328-TX)
(2SD1328-TX)
VO1
IN1-
GND
VOUT
NR ON[H]
VIN
IN2-
VCC
VO2
VEE
IN2+
IN1+
M
VCC
VO2
IN2-
VO1
(UN5211-TX)
M
M
M
T
M
M
T
M
T
M
IN1-
(UN5211-TX)
AU_5V
(UNR5111-TX)
(PQ1L503M2SPQ)
54321
C
B
A
TO
A/V I/O SECTION
(3/4)
NOTE:DO NOT USE THE PART NUMBER SHOWN ON THIS DRAWING FOR ORDERRING.
THE CORRECT PART NUMBER IS SHOWN IN THE PARTS LIST,AND MAY BE
SLIGHTLYDIFFERNT OR AMENDED SINCE THIS DRAWING WAS PREPARED.
LOCATION MAP
1/4 2/4
3/4 4/4
B
DMR-EH55EC/EP,EH56EG
A/V I/O(1/4) Section
(Main P.C.B.(2/4))
Schematic Diagram(AV)
M:Main Net Section:(Page: )
A
AV:A/V I/O Section:(Page: )
B
DE:Nicam Decoder Section:(Page: )
C
T:Timer Section:(Page: )
D
56

Table of Contents

Related product manuals