EasyManua.ls Logo

Panasonic DMR-EH55EC

Panasonic DMR-EH55EC
173 pages
To Next Page IconTo Next Page
To Next Page IconTo Next Page
To Previous Page IconTo Previous Page
To Previous Page IconTo Previous Page
Loading...
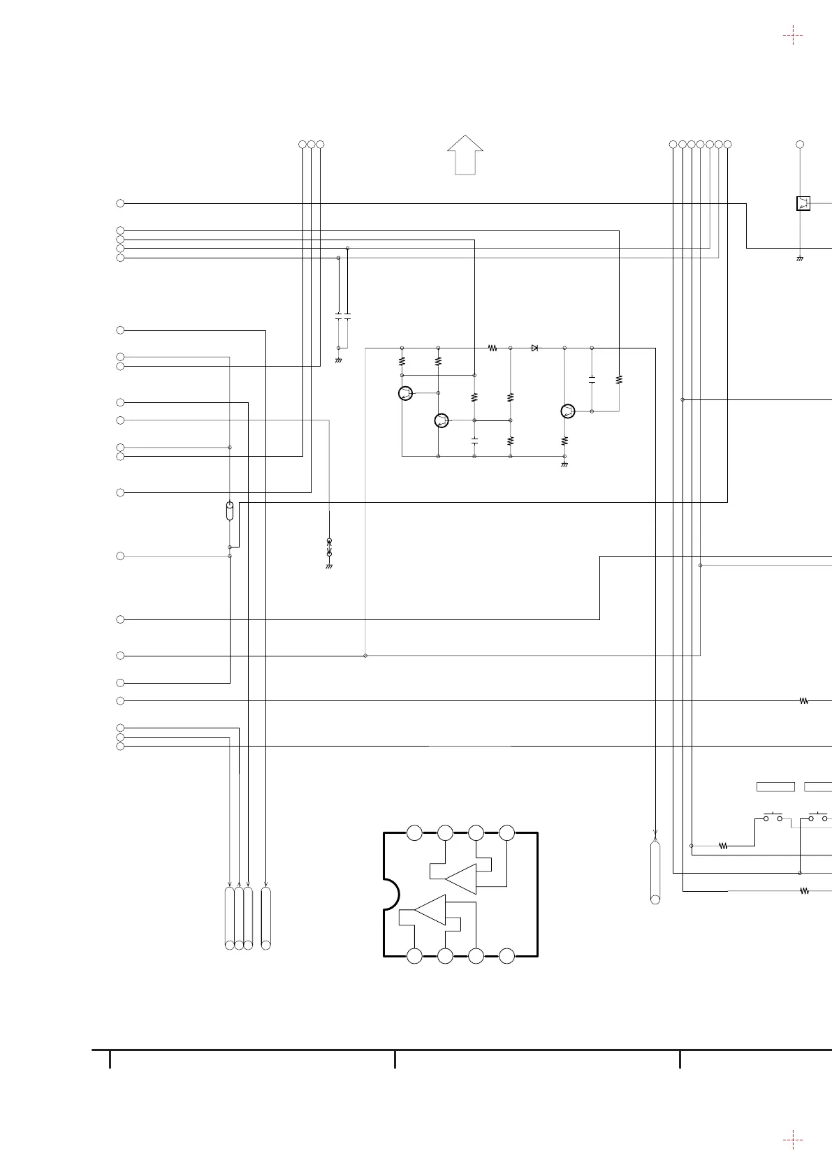
13.15. Timer (4/4) Section (Main P.C.B. (4/4)) Schematic Diagram (T)
UNR521000L
QR7507
IOPWR_SAVE_H
RESET_5R2V
P50
K7501
0
R7585
2R2M
220P
C7552
2SD1819A0L
Q7508
R7586
27K
R7588
100K
R7587
220K
D7502
B0ACCK000005
R7590 100K
R7589
220
C7553 220P
C7555 0.01
C7554 0.01
2SD0601A0L
Q7506
2SD0601A0L
Q7507
R7584
47K
R7583
4700
S7508
EVQ11A04M
X_SW_3R3V
2700R7640
5600R7642
1
2
TO JW7001
FRONT(L) P.C.B.
JW7501
VWJ02F0060VV
2700R7639
S7507
EVQ11A04M
S7503
EVQ11A04M
S7501
EVQ11A04M
S7502
EVQ11A04M
S7504
EVQ11A04M
S7506
EVQ11A04M
2700
R7641
5600
R7644
16K
R7643
ERJ3GEY0R00V
LB7510
G_UARTP2M_A
XTMUTE
SW2
G_UARTM2P_A
M
M
M
(2SD1819-TX)
(2SD601A-TX)
(1SS355)
(2SD601A-TX)
REC
STOPOPEN/CLOSECH_DOWNEXT_LINK CH_UP PLAY
AV
GND
KEY3_POWER
AV
M
M
M
1
2
3
4
5
6
7
8
9
10
11
12
13
14
15
16
17
19
20
21
H I J LK M N O P Q S TR
18
FANOUT
R7625
10K
10KR7624
C7587
1
R7627 30K
R7626 820
B1ABMD000004
Q7511
R7575 100
FANLOCK
X_SW_12R4V
22KR7574
0.01C7588
67 5
2 43
8
1
C0ABBA000073
IC7507
0.1
C7590
M
M
M
B OUT
V+
B+IN
B-IN
A-IN
A OUT
GND
A+IN
S7505
EVQ11A04M
SELECT
-
+
+
-
8765
1234
B+IN
B-IN
BOUT
V+
GND
A+IN
A-IN
AOUT
109876
D
TO
TIMER SECTION
(2/4)
NOTE:DO NOT USE THE PART NUMBER SHOWN ON THIS DRAWING FOR ORDERRING.
THE CORRECT PART NUMBER IS SHOWN IN THE PARTS LIST,AND MAY BE
SLIGHTLYDIFFERNT OR AMENDED SINCE THIS DRAWING WAS PREPARED.
DMR-EH55EC/EP,EH56EG
TIMER(4/4) Section
(Main P.C.B.(4/4))
Schematic Diagram(T)
M:Main Net Section:(Page: )
A
AV:A/V I/O Section:(Page: )
B
DE:Nicam Decoder Section:(Page: )
C
T:Timer Section:(Page: )
D
LOCATION MAP
1/4 2/4
3/4 4/4
IC7507
MOTOR DRIVE
IC-DETAIL BLOCK DIAGRAM
65

Table of Contents

Related product manuals