EasyManua.ls Logo

Panasonic DMR-EH55EC

Panasonic DMR-EH55EC
173 pages
To Next Page IconTo Next Page
To Next Page IconTo Next Page
To Previous Page IconTo Previous Page
To Previous Page IconTo Previous Page
Loading...
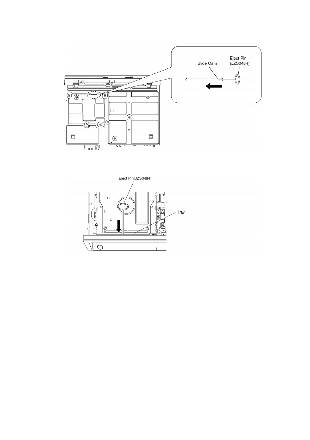
5. Put deck upward, and push out Tray by Eject Pin (JZS0484) or
minus screw driver (small).

Table of Contents

Related product manuals