EasyManua.ls Logo

Panasonic DP-4530 - Communication Protocols

Panasonic DP-4530
858 pages
To Next Page IconTo Next Page
To Next Page IconTo Next Page
To Previous Page IconTo Previous Page
To Previous Page IconTo Previous Page
Loading...
453
JAN 2006
Ver. 5.2
DP-3510/3520/3530/4510/4520/4530/6010/6020/6030
9.8. Communication Protocols
The set of conventions necessary to achieve facsimile-compatible service covers basic data transport,
document data formats, message (document) addressing, delivery confirmation, and message security.
Protocol supported by the your Panasonic Device is as follows:
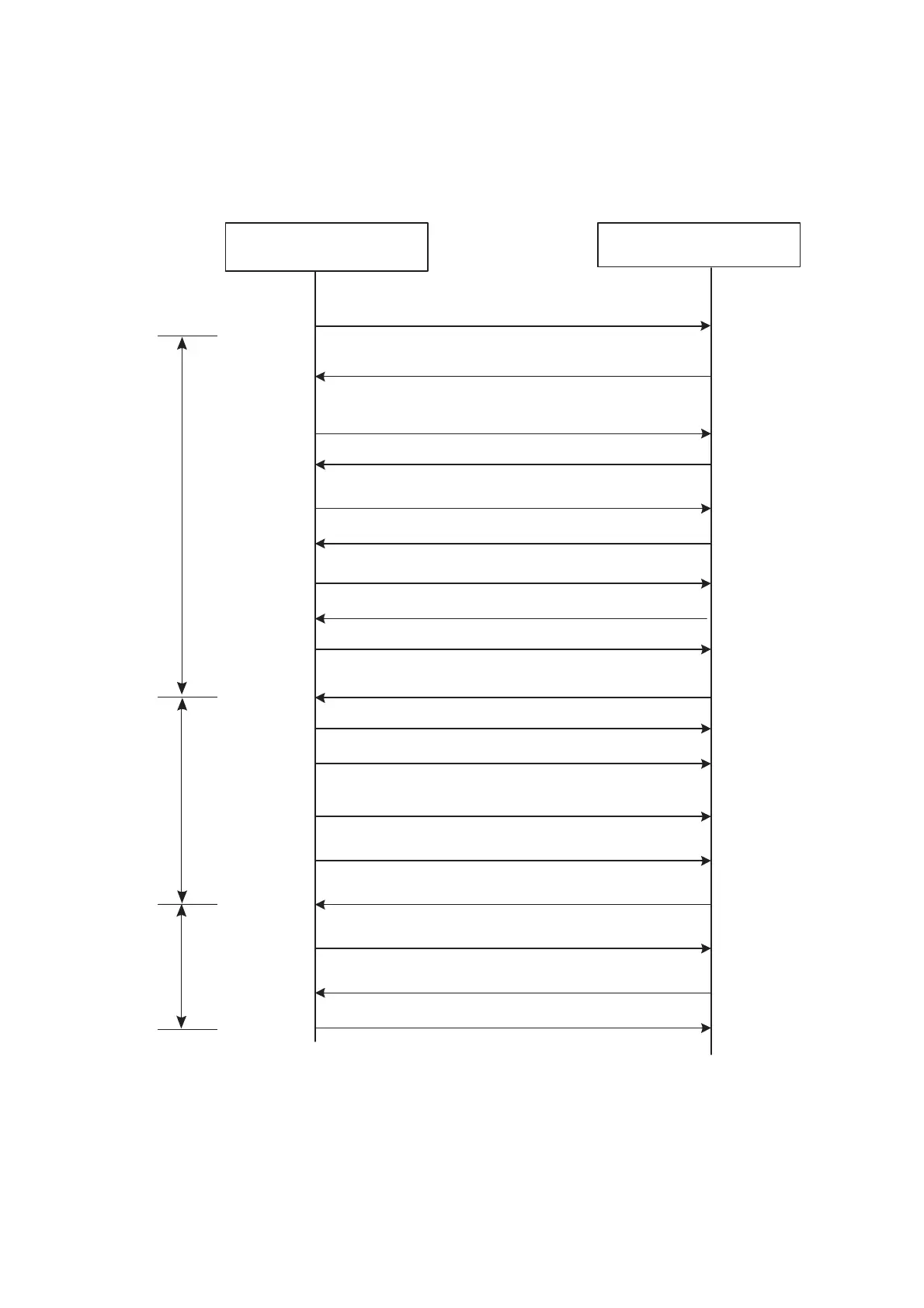
According to RFC1123, there are two approaches for time-outs in the sender-SMTP:
1. limit the time for each SMTP command separately, or
2. limit the time for the entire SMTP dialogue for a single mail message.
A sender-SMTP SHOULD use option (a), per-command timeouts.Timeouts SHOULD be easily
reconfigurable, preferably without recompiling the SMTP code.
The value of timer [ ] shown above are recommended by RFC1123.
Opening TCP Connection (TCP Port No. 25)
220 sv2.labo.pcc.com Service ready
SMTP Command & Reply Procedure
HELO sv2.labo.pcc.com
250 ef1.labo.pcc.com
MAIL FROM: <xxx@sv2.labo.pcc.com>
250 OK
RCPT TO: <yyy@sv2.labo.pcc.com>
250 OK
DATA
250 Start mail out; end with <CR/LF> . <CR/LF>
DATA BLOCK 1
DATA BLOCK 2
DATA BLOCK n
CR/LF . CR/LF
250 OK
QUIT
221 sv2.labo.pcc.com Service closing
transmission channel
Closing TCP Connection (TCP Port No. 25)
[5 minutes]
[5 minutes]
[2 minutes]
[5 minutes]
[3 minutes]
[3 minutes]
[10 minutes]
SMTP Server
(sv2.labo.pcc.com)
DATA BLOCKClosing SMTP Command
TCP 3 Way
Handshake &
Opening Session
your Panasonic Device
(ef1.labo.pcc.com)

Table of Contents

Other manuals for Panasonic DP-4530

Related product manuals