EasyManua.ls Logo

Panasonic TH-42PA60A

Panasonic TH-42PA60A
162 pages
To Next Page IconTo Next Page
To Next Page IconTo Next Page
To Previous Page IconTo Previous Page
To Previous Page IconTo Previous Page
Loading...
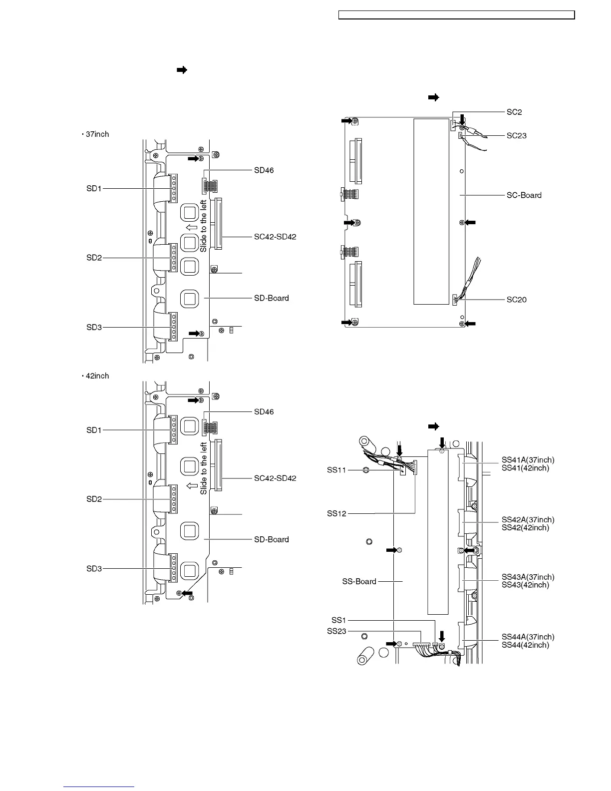
6.12. Remove the SD-Board
1. Remove the screws (×2 ).
2. Remove the flexible cables (SD1, SD2 and SD3) and
remove the bridge connector (SD46).
3. Slide the SD-Board to the left to disconnect from a coupler
(SC42-SD42) on the SC-Board and remove the SD-Board.
6.13. Remove the SC-Board
1. Unlock the cable clampers to free the cable.
2. Disconnect the couplers (SC2, SC20 and SC23).
3. Remove the screws (×6
) and remove the SC-Board.
6.14. Remove the SS-Board
1. Disconnect the couplers (SS1, SS11, SS12 and SS23).
2. Disconnect the flexible cables (SS41A, SS42A, SS43A and
SS44A) (37inch).
Disconnect the flexible cables (SS41, SS42, SS43 and
SS44) (42inch).
3. Remove the screws (×6
) and remove the SS-Board.
13
TH-37PA60H / TH-37PA60M / TH-42PA60A / TH-42PA60H / TH-42PA60M / TH-42PA60MT

Table of Contents

Related product manuals